53 8 m² 3 pok. balkon miejsce w hali garażowej

Olsztyn , Marii Zientary-Malewskiej

Mieszkanie
53 m2
3 pokoje

499 000 zł

Treść ogłoszenia

3 pokojowe mieszkanie o pow. 53,8 m², na niskim parterze (brak schodów), z balkonem, z miejscem w hali garażowej, przy ul. Marii Zientary-Malewskiej 55C. Niski, trzypiętrowy, ocieplony budynek.. Przed klatką dostępne miejsca parkingowe. Świetna lokalizacja dla osób ceniących sobie ciszę, spokój oraz bliskość natury, rodziny, osób starszych.
Obejrzyj WIRTUALNY SPACER: https://sb360.online/f4tqpv (jeśli nie widzisz spaceru skontaktuj się z pośrednikiem).

LOKALIZACJA:
Mieszkanie przy ul. Zientary-Malewskiej, położone w północno-wschodniej części miasta (Zatorze/Zielona Górka), w pobliżu lasów miejskich. Dojazd do centrum miasta zajmuje zaledwie 10 minut. Dzięki sprawnej komunikacji miejskiej dojazd do pozostałych części miasta jest wygodny i szybki.
Mieszkańcy mają doskonały dostęp do wszelkich udogodnień, jakie oferuje miasto. Bliskość punktów handlowych i usługowych oraz placówek edukacyjnych i służby zdrowia.
W pobliżu las, świetne szlaki rowerowe, jezioro Pereszkowo, w niedalekiej odległości jezioro Trackie.

BUDYNEK:
Budynek 3-piętrowy wybudowany w 2014 roku, wokół którego jest zadbana zieleń. Wejście do budynku bez barier architektonicznych.
Przed budynkiem ogólnodostępne miejsca parkingowe. Cicha i spokojna okolica.

MIESZKANIE:
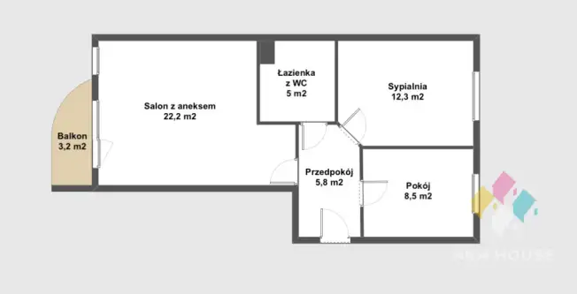
Mieszkanie rozkładowe o pow. 53,8 m², położone na parterze.
Składa się z przedpokoju z bezpośrednim przejściem do salonu z aneksem kuchennym, sypialni, pokoju oraz łazienki z WC.
Powierzchnie pomieszczeń:
- Salon z aneksem kuchennym (22,2 m²)
- Sypialnia (12,3 m²)
- Pokój (8,5 m²)
- Przedpokój (5,8 m²)
- Łazienka z WC (5 m²)
Z salonu wyjście na balkon o pow. ok. 3,2 m².
Okna PCV, układ dwustronny (północ/południe). Na podłogach panele oraz płytki. W łazience pralka.
Ogrzewanie oraz ciepła woda miejskie. Do mieszkania doprowadzony internet.
Do mieszkania przynależy duża piwnica o pow. 6,4 m².

STAN PRAWNY/OPŁATY/DOSTĘPNOŚĆ
Odrębna własność z księgą wieczystą.
Czynsz administracyjny dla 3 osób wynosił ok. 600 zł.
Do ceny mieszkania należy doliczyć miejsce garażowe w hali podziemnej (skrajne) w cenie 30 000 zł.
Administrator budynku - Wspólnota mieszkaniowa "LOKUM"

POŚREDNIK
Jakub Dziadak
tel. 696 900 388
E-mail: [Email protected]

Przedstawiona oferta cenowa ma charakter informacyjny, nie stanowi oferty handlowej w rozumieniu art. 66 § 1 Kodeksu Cywilnego.



Właścicielem ogłoszenia wraz z jej elementami jest NewHouse Łukasz Wróbel oraz podmioty współpracujące.
Wszelkie prawa są zastrzeżone, kopiowanie, rozpowszechnianie oraz korzystanie z niniejszych składowych materiałów ogłoszenia w jakikolwiek inny sposób wykraczający poza dozwolony użytek określony przepisami ustawy z 4 lutego 1994 r. o prawie autorskim i prawach pokrewnych (Dz. U. 1994, nr 24 poz. 83 z późn. zm.) bez zgody NewHouse Łukasz Wróbel lub podmiotów współpracujących jest zabronione i może stanowić podstawę odpowiedzialności cywilnej oraz karnej.
Niniejsze materiały stanowią tajemnicę firmy NewHouse Łukasz Wróbel lub podmiotów współpracujących w rozumieniu ustawy z dnia 16 kwietnia 1993 r. o zwalczaniu nieuczciwej konkurencji (Dz. U. z 2003 r., Nr 153, poz. 1503 z późn. zm.).
Niniejsze ogłoszenie nie stanowi oferty w rozumieniu Kodeksu Cywilnego, lecz ma charakter informacyjny.

Ogłoszenie wysłane z programu dla biur nieruchomości ASARI CRM (asaricrm.com)



Lokalizacja
Olsztyn
warmińsko-mazurskie
Informacje
Powierzchnia: 53 m2
3 pokoje
3 piętra w budynku
Rok budowy: 2014
Numer oferty: 2231/6682/OMS
Garaż
miejsce parkingowe
Powierzchnia dodatkowa
komórka lokatorska
Zalety
domofon
Okolica
szkoła podstawowa
restauracja
jezioro
las
kościół
Kuchnia
w aneksie
Przeznaczenie
mieszkalny
Dodatkowe zalety
piwnica
Kontakt
NewHouse Łukasz Wróbel
Jakub Dziadak
696900388

Podobne oferty

 Olsztyn   Stefana Żeromskiego

Mieszkanie

Olsztyn, Stefana Żeromskiego

Czynsz 785 zł Miejsce parkingowe garaż/miejsce parkingowe Obsługa zdalna Ogrzewanie miejskie Opis Mamy do zaoferowania słoneczne, 64,7 m2, 3 pokojowe...

64 m2
3 pokoje
479 000 zł
7 484 zł/m2
 Olsztyn   Burskiego

Mieszkanie na sprzedaż

Olsztyn, Burskiego

Biuro DOM Nieruchomości oferuje do sprzedaży mieszkanie znajdujące się w Olsztynie przy ul. Burskiego 24, z własnym miejscem postojowym pod...

96 m2
4 pokoje
699 000 zł
7 281 zł/m2
 Olsztyn   Walentego Barczewskiego

34m² 2 pokoje do remontu osiedle Podgrodzie

Olsztyn, Walentego Barczewskiego

REZERWACJA Dwupokojowe mieszkanie do remontu znajdujące się na Osiedlu Podgrodzie. Mieszkanie z dużym potencjałem aranżacyjnym. Idealne dla singla, pary a...

34 m2
2 pokoje
264 000 zł
7 765 zł/m2