balkon blisko zieleni dobra komunikacja z centru

Poznań

Mieszkanie
36 m2
2 pokoje

441 145 zł

Treść ogłoszenia

Ogłoszenie sprzedaży 2 pokojowego mieszkania z balkonem w Poznaniu


Zadzwoń i umów się na obejrzenie inwestycji +48798601102


  • Bezpośrednio od dewelopera

  • Brak PCC

  • Bez prowizji




Lokalizacja

Podolany to lokalizacja zapewniająca bliskość terenów zielonych, a jednocześnie jest dobrze skomunikowana z centrum.



  • autobus - 1 minuta

  • przychodnia - 5 minut

  • tereny zielone - 5 minut

  • szkoła - 5 minut

  • sklepy - 1 minuta







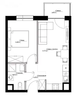
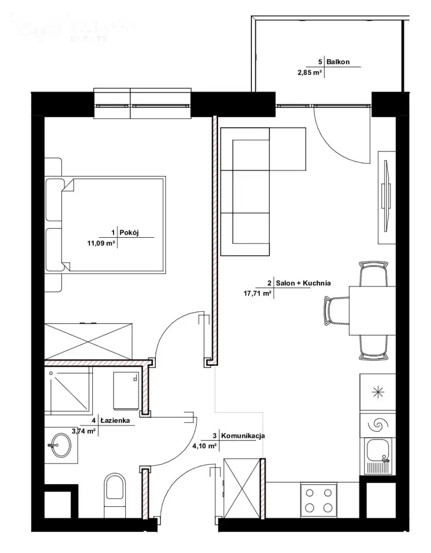
Układ mieszkania



  • Salon + Kuchnia 17,71 m²

  • Pokój - 11,09 m²

  • Łazienka - 3,74 m²

  • Przedpokój - 4,10 m²

  • Balkon - 2,85 m²





w inwestycji



  • windy

  • domofon

  • monitoring

  • wewnętrzny plac zabaw

  • CO miejskie



To miejsce, które daje Ci spokój, komfort i codzienną wygodę.


Termin oddania: I kwartał 2026

Do ceny należy doliczyć miejsce postojowe w hali garażowej.



Spełnij marzenia o nowym mieszkaniu.
Nie czekaj. Zarezerwuj mieszkanie już teraz.


Monika Skotarczak. +48798601102

ZERO prowizji, brak PCC

...
Oferta wystawiona przez Biuro nieruchomości Falcon Estate.
Prezentowane w serwisie oferty nie stanowią oferty handlowej w rozumieniu art. 66 Kodeksu Cywilnego i mogą być nieaktualne.
Lokalizacja
Poznań
dzielnica Podolany
wielkopolskie
Informacje
Powierzchnia: 36 m2
2 pokoje
5 pięter w budynku
Rok budowy: 2026
Numer oferty: FE274573
Zalety
domofon
Media
kanalizacja
Wyposażenie
balkon/taras
Kontakt
Falcon Estate
Monika Skotarczak
798601102

Podobne oferty

 Poznań   Naramowicka

Nowe Horyzonty i Nowa Perspektywa na Naramowicach

Poznań, Naramowicka

Zapraszam do odkrycia dwupokojowego mieszkania w stanie deweloperskim przy ul. Naramowickiej. To wyjątkowa okazja dla osób poszukujących komfortu i spokoju...

43 m2
2 pokoje
661 900 zł
15 393 zł/m2
 Poznań   Jana Henryka Dąbrowskiego

Rodzinne mieszkanie w sercu Jeżyc

Poznań, Jana Henryka Dąbrowskiego

Mieszkanie, w którym żyje się wam wygodnie i bezpiecznie. Dzieci mają blisko do szkoły, do samochodu zjeżdżacie windą, na spacer...

73 m2
3 pokoje
798 946 zł
10 944 zł/m2
 Poznań

gotowe 3 pok Promocja do końca sierpnia

Poznań

Ogłoszenie sprzedaży 3 pokojowego mieszkania w stanie deweloperskim, PoznańPromocjaDla wybranych mieszkań 3 pokojowych miejsce postojowe gratis do końca sierpnia.Zadzwoń i...

65 m2
3 pokoje
746 000 zł
11 477 zł/m2