Czteropokojowe Mieszkanie z Balkonem Mokotów

Warszawa , Bokserska

Mieszkanie
95 m2
4 pokoje

1 586 643 zł

Treść ogłoszenia

Nowoczesna inwestycja zlokalizowana w jednej z najbardziej prestiżowych dzielnic Warszawy.
Zakup bezpośrednio od dewelopera, bez 2% podatku PCC i prowizji.

Atuty inwestycji:
- Inwestycja wyróżnia się nowoczesną architekturą, eleganckimi fasadami oraz wysokim standardem wykończenia.
- Mieszkania zostały zaprojektowane z dbałością o każdy detal, oferując funkcjonalne rozkłady pomieszczeń oraz przestronne balkony, tarasy lub ogródki.
- Inwestycja znajduje się w doskonale skomunikowanym miejscu, co zapewnia szybki dostęp do centrum Warszawy oraz innych kluczowych punktów miasta.
- Dla komfortu mieszkańców w inwestycji przewidziano liczne udogodnienia, takie jak nowoczesna strefa fitness, zielone dziedzińce, plac zabaw dla dzieci oraz całodobowa ochrona.

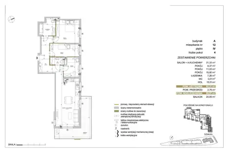
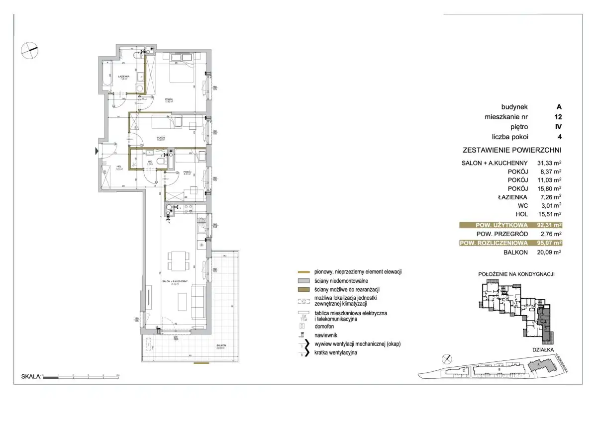
Układ apartamentu:
- salon z aneksem kuchennym,
- 3 sypialnie,
- łazienka,
- toaleta,
- przedpokój,
- balkon.

Dodatkowe informacje:
Miejsce postojowe w hali garażowej: od 45 000 zł
Komórka lokatorska: od 9 000 zł

Piętro: 4/7
Liczba pokoi: 4
Termin realizacji inwestycji: 2Q2026

W razie jakichkolwiek pytań zachęcamy do kontaktu pod podany niżej numer.
Serdecznie zapraszamy na prezentacje inwestycji!

Osoba do kontaktu: Dawid Dragan
Tel. +48 733 266 466

Powyższa oferta ma charakter informacyjny i nie stanowi oferty handlowej w rozumieniu art. 66 §1 Kodeksu Cywilnego.
Lokalizacja
Warszawa
dzielnica Mokotów służewiec
mazowieckie
Informacje
Powierzchnia: 95 m2
4 pokoje
7 pięter w budynku
Rok budowy: 2026
Numer oferty: 206162
Wyposażenie
balkon/taras
Kontakt
Dayton Nieruchomości
Dawid Dragan
733 266 466

Podobne oferty

 Warszawa

Blisko metra Kultowa lokalizacja300m do parku

Warszawa

MDP Partners prezentuje:Przedstawiamy wyjątkową ofertę sprzedaży mieszkania o powierzchni 47,3 m², usytuowanego na 7. piętrze 10-piętrowego budynku, zlokalizowanego w cichej...

47 m2
2 pokoje
699 000 zł
14 872 zł/m2

Apartament premium 72 60 m² 3 pokoje Mokotów

Warszawa

Warszawa Mokotów | Apartament premium 72,60 m² | 3 pokoje | loggia 6,7 m² 0% prowizji | 0% PCC Nowoczesna...

72 m2
3 pokoje
1 220 184 zł
16 947 zł/m2

Mieszkanie 70 m² z imponującym widokiem

Warszawa

Na sprzedaż przestronny dwupoziomowy apartament o powierzchni 70 m², położony w dzielnicy Wola, przy ulicy Rogalińska w Warszawie. 2 słoneczne...

70 m2
2 pokoje
1 800 000 zł
25 714 zł/m2