Nowe 2 pokojowe z balkonem - bez prowizji i PCC

Kraków

Mieszkanie
36 m2
2 pokoje

521 116 zł

Treść ogłoszenia

Nowe 2-pokojowe mieszkanie z dużym balkonem - Kraków, os. Piaski Nowe
Bez prowizji i PCC!

Zakończenie budowy: listopad 2025
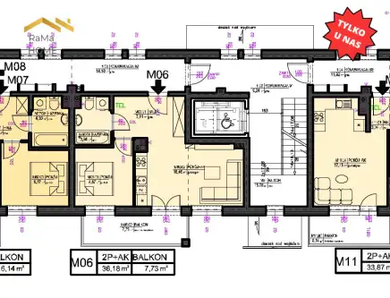
Powierzchnia mieszkania: 36,18 m²
Balkon: 7,73 m²

Nowoczesne, kompaktowe i funkcjonalne mieszkanie w atrakcyjnej inwestycji na os. Piaski Nowe. Idealne dla singla, pary lub jako inwestycja pod wynajem.

Układ mieszkania:
- Salon z aneksem kuchennym (16,46 m²) z wyjściem na balkon
- Sypialnia (8,67 m²) - idealna na wygodne łóżko i szafę
- Przedpokój (7,11 m²) z miejscem na zabudowę
- Łazienka (3,94 m²)
- Duży balkon (7,73 m²) - świetny na poranną kawę i relaks

Udogodnienia dla mieszkańców:
Miejsce postojowe w garażu podziemnym - obowiązkowe: 65 000 zł
Komórka lokatorska - 5 000 zł/m²
Dodatkowe miejsce naziemne - 25 000 zł

Dlaczego warto?
✔ Nowoczesne budownictwo i wysoki standard
✔ Miejsca w garażu podziemnym
✔ Doskonała komunikacja - tramwaj i autobus w pobliżu
✔ Pełna infrastruktura w zasięgu: sklepy, szkoły, punkty usługowe, tereny zielone
✔ Wysoki potencjał inwestycyjny - idealne pod wynajem
✔ Ogrzewanie - MPEiC

Lokalizacja
Osiedle Piaski Nowe - spokojna, zielona część Krakowa z szybkim dojazdem do centrum i innych dzielnic. Bliskość terenów rekreacyjnych oraz pełnej infrastruktury zapewnia komfort codziennego życia. Najbliższy przystanek autobusowy linii 107, 469 i 904 przy ul. Łużyckiej, 2 min spacerem. 

Dostępne metraże
W ofercie mieszkania od 33 do 72 m² - zapytaj o szczegóły!

Oferujemy bezpłatną pomoc w uzyskaniu kredytu hipotecznego - współpracujemy z doświadczonymi ekspertami finansowymi.

Przedstawiona oferta ma charakter informacyjny i nie stanowi oferty handlowej w rozumieniu Art.66 par.1 Kodeksu Cywilnego oraz innych właściwych przepisów prawnych.
Lokalizacja
Kraków
dzielnica Podgórze duchackie
małopolskie
Informacje
Powierzchnia: 36 m2
2 pokoje
4 piętra w budynku
Rok budowy: 2025
Numer oferty: 205548
Zalety
domofon
Media
kanalizacja
Wyposażenie
balkon/taras
Kontakt
RaMa Home
Agnieszka Grela
501431019

Podobne oferty

 Kraków   Gen. Henryka Dąbrowskiego

Nowa InwestycjaStare PodgórzeBez prowizji

Kraków, Gen. Henryka Dąbrowskiego

Nowa inwestycja, bez prowizji, bez podatku. Zakup bezpośrednio od dewelopera. Ul. Dąbrowskiego, Stare Podgórze, Kraków41,36 m2, 2 pokoje, 1 piętroDąbrowskiego...

41 m2
2 pokoje
760 770 zł
18 555 zł/m2
 Kraków   Wadowicka

M w nowej inwestycji nieopodal Ronda Matecznego

Kraków, Wadowicka

Kupujący nie płaci prowizji ani podatku PCC 2%Mam przyjemność zaproponować Państwu mieszkanie w nowo powstającej inwestycji w dzielnicy Stare Podgórze,...

81 m2
5 pokoi
1 246 400 zł
15 388 zł/m2
 Kraków

Jednopokojowe mieszkanie z wydzieloną sypialnią.

Kraków

Prezentowane na sprzedaż mieszkanie może być zarówno doskonałą inwestycją jak i miejscem do życia.  Doskonała lokalizacja, bliskość centrum. Rozwinięta infrastruktura. ...

30 m2
1 pokój
775 000 zł
25 833 zł/m2