Klimatyczne mieszkanie z garażem i ogrodem

Barczewo , Warmińska

Mieszkanie
58 m2
2 pokoje

350 000 zł

Treść ogłoszenia

Nowa cena!!!
Szukasz mieszkania z garażem i ogrodem w Barczewie?
Świetnie trafiłeś!

Lokalizacja
Przedstawiam Państwu mieszkanie położone w Barczewie, przy ulicy Warmińskiej 46.
W najbliższym otoczeniu znajdziemy przedszkola, szkołę, wiele punktów usługowo-handlowych oraz restauracje. Okolica jest dobrze skomunikowana z pozostałymi częściami miasta oraz z pobliskim Olsztynem.
Do centrum Olsztyna dojedziemy w zaledwie 20 minut.

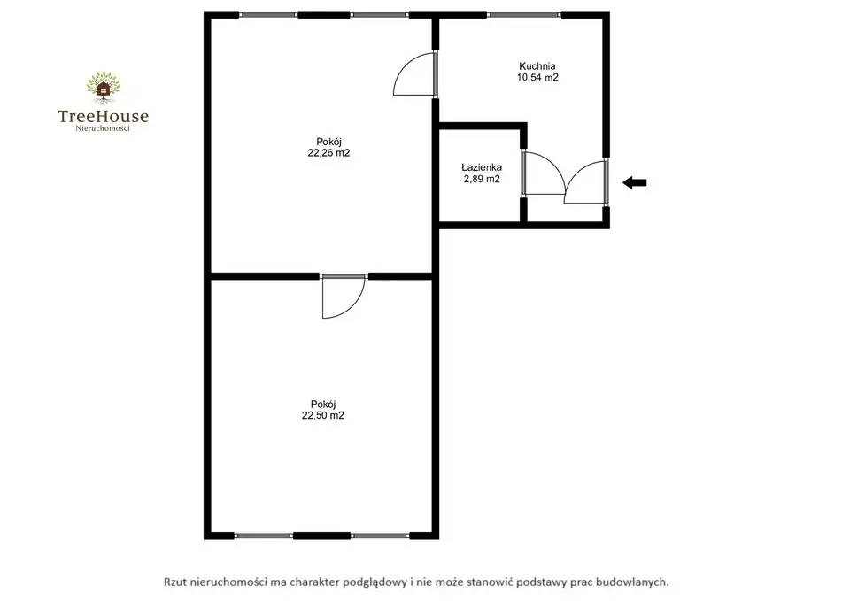
Mieszkanie
Powierzchnia nieruchomości zgodnie z KW wynosi 66,51m² (powierzchnia użytkowa mieszkania wynosi 58,19m², powierzchnia piwnicy 8,32m²).
Mieszkanie znajduje się na parterze w kamienicy z 1927r.
Składa się z:
- oddzielnej kuchni wyposażonej w sprzęt AGD (lodówka, zmywarka, piekarnik, płyta grzewcza, okap)
- łazienki z prysznicem oraz wc
- dwóch dużych pokoi (z możliwością przerobienia na 3 pokoje)

W jednym z pokoi znajduje się kominek, który nadaje wnętrzu uroku i tworzy przyjemną atmosferę, idealną do relaksu i wspólnych chwil. Przestrzeń pokoi jest tak zaplanowana, że umożliwia łatwe przekształcenie jej w dodatkowe pomieszczenie bez konieczności dużych nakładów finansowych.

Na podłogach położone zostały panele oraz terakota.
Instalacja elektryczna jest miedziana. Okna PCV - w salonie trzyszybowe.

Do dyspozycji są 2 piwnice ( pierwsza piwnica o pow. ok. 8,3 m², druga o pow. ok. 3 m²)

Dla właścicieli lokalu wydzielona została zagospodarowana działka, na której znajduje się garaż oraz altana ogrodowa. Obok altany znajduje się miejsce do grillowania, idealne na letnie spotkania i wspólne posiłki na świeżym powietrzu.
Na garażu znajdują się panele fotowoltaiczne, dzięki którym rachunki za prąd w mieszkaniu są niezwykle niskie.

Ogrzewanie pochodzi z kotłowni gazowej, znajdującej się w budynku. Czynsz razem z kosztami ogrzewania i funduszem remontowym wynosi ok. 715zł w przeliczeniu na 2 osoby.
Zarządcą budynku jest wspólnota mieszkaniowa. Wspólnotą zarządza ZBMIN.

Serdecznie zapraszam na prezentację w dzień pokazowy, po uprzednim kontakcie telefonicznym.

Oferta mieszkania dostępna wyłącznie w naszym biurze - TreeHouse Nieruchomości. Współpracujemy również z innymi agencjami nieruchomości

Pomagamy w uzyskaniu bezpiecznego kredytu na zakup nieruchomości.

Opiekun oferty:
Jakub Kaszuba
tel. 784370772
e-mail: [Email protected]





TreeHouse Nieruchomości - Skuteczna Sprzedaż Nieruchomości
ul. Kotańskiego 1, lok. 102, 10-166 Olsztyn
[Email protected]
www.treehouse-nieruchomosci.pl

TreeHouse Nieruchomości - nr 1 w województwie warmińsko-mazurskim w konkursie Lider Otodom 2022


"Niniejsze ogłoszenie nie stanowi oferty w rozumieniu art. 66 par. 1 Kodeksu Cywilnego i ma jedynie charakter informacyjny.
Właścicielem ogłoszenia oraz poszczególnych jego elementów jest TreeHouse Nieruchomości oraz podmioty z nim współpracujące. Wszelkie prawa są zastrzeżone. Kopiowanie, rozpowszechnianie oraz korzystanie z niniejszych materiałów w jakikolwiek inny sposób wykraczający poza dozwolony użytek określony przepisami ustawy z 4 lutego 1994 r. o prawie autorskim i prawach pokrewnych (Dz. U. 1994, nr 24 poz. 83 z późn. zm.) bez pisemnej zgody TreeHouse Nieruchomości lub podmiotów współpracujących jest zabronione i może stanowić podstawę odpowiedzialności cywilnej oraz karnej."

Ogłoszenie wysłane z programu dla biur nieruchomości ASARI CRM (asaricrm.com)



Lokalizacja
Barczewo
warmińsko-mazurskie
Informacje
Powierzchnia: 58 m2
2 pokoje
1 piętro w budynku
Rok budowy: 1927
Numer oferty: 347/12272/OMS
Powierzchnia dodatkowa
komórka lokatorska
Zalety
domofon
Okolica
bank/bankomat
plac zabaw
restauracja
kościół
Kuchnia
oddzielna
Dodatkowe zalety
piwnica
Kontakt
TreeHouse Nieruchomości Spółka z ograniczoną odpowiedzialnością
Jakub Kaszuba
784370772

Podobne oferty

 Barczewo   Wojska Polskiego

Mieszkanie na sprzedaż

Barczewo, Wojska Polskiego

S P R Z E D A N E Oferuję do sprzedaży mieszkanie na I piętrze o powierzchni użytkowej 47,60...

47 m2
3 pokoje
235 000 zł
5 000 zł/m2
 Barczewo   pl. Osiedle Zielone Wzgórze

Rezerwacja Atrakcyjne 3-pokojowe nowe osiedle

Barczewo, pl. Osiedle Zielone Wzgórze

REZERWACJA, REZERWACJA, REZERWACJA Funkcjonalne 3-pokojowe mieszkanie o pow. ok. 59,5 m2 w Barczewie na os. Zielone Wzgórze, położone na 3...

59 m2
3 pokoje
479 000 zł
8 119 zł/m2
 Barczewo   Osiedle Zielone Wzgórze

Mieszkanie na sprzedaż

Barczewo, Osiedle Zielone Wzgórze

REZERWACJA! Biuro Nieruchomości DOM oferuje do sprzedaży dwupoziomowe mieszkanie z tarasem w miejscowości Barczewo na Osiedlu Zielone Wzgórze. Miejscowość oddalona...

80 m2
4 pokoje
569 000 zł
7 113 zł/m2