2 pokoje z balkonem i komórką lokatorską

Szamotuły , Stanisława Staszica

Mieszkanie
55 m2
2 pokoje

422 726 zł

Treść ogłoszenia

Ogłoszenie sprzedaży 3 pokojowego mieszkania w stanie deweloperskim w Szamotułach





  • Bezpośrednio od dewelopera

  • Brak PCC

  • Bez prowizji




Lokalizacja

Szamotuły, to miejscowość doskonale skomunikowana z Poznaniem.
Masz pod ręką sklepy, usługi, przedszkola, szkoły, a jednocześnie bardzo dobry i wygodny dojazd do Poznania, pociągiem lub samochodem.



  • szkoła - 2 minut

  • sklepy - 3 minut

  • stacja PKP - 2 minuty

  • dojazd do Poznania około - 50 minut

  • tereny zielone - 1 minuta

  • przychodnia 2 minuty


Dojazd do Poznania


  • Poznań - 50 minut DW 184 i S1

  • pociągiem 30 minut





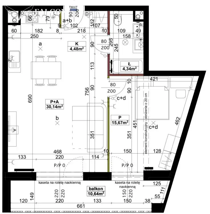
Układ mieszkania



  • salon z aneksem kuchennym - 30,14 m²

  • sypialnia - 15,67 m²

  • łazienka - 4,34 m²

  • korytarz - 4,48 m²

  • balkon - 10,64 m²

  • komórka lokatorska - 6,67 m²




w inwestycji



  • fotowoltaika

  • dla każdego mieszkania komórka lokatorska

  • przestronny balkon lub ogród

  • łazienki mają podgrzewane podłogi

  • miejsce dla rowerów przed blokiem

  • windy

  • miejsca postojowe naziemne

  • panoramiczne okna



Mieszkanie oddane do użytku.


Spełnij marzenia o nowym mieszkaniu.
Nie czekaj. Zarezerwuj mieszkanie

Monika Skotarczak. +48798601102


Dodatkowo



  • pomagamy bezpłatnie w uzyskaniu najkorzystniejszej oferty kredytu hipotecznego,

  • możliwość wykończenia mieszkania pod klucz.




ZERO prowizji, brak PCC.

...
Oferta wystawiona przez Biuro nieruchomości Falcon Estate.
Prezentowane w serwisie oferty nie stanowią oferty handlowej w rozumieniu art. 66 Kodeksu Cywilnego i mogą być nieaktualne.
Lokalizacja
Szamotuły
wielkopolskie
Informacje
Powierzchnia: 55 m2
2 pokoje
4 piętra w budynku
Rok budowy: 2025
Numer oferty: FE655351
Zalety
domofon
Media
kanalizacja
Wyposażenie
balkon/taras
Kontakt
Falcon Estate
Monika Skotarczak
798601102

Podobne oferty

 Szamotuły   Stanisława Staszica

mieszkanie z dużym balkonem widok na zieleń

Szamotuły, Stanisława Staszica

Ogłoszenie sprzedaży 3 pokojowego mieszkania z dużym balkonem  w stanie deweloperskim w Szamotułach Bezpośrednio od dewelopera Brak PCC Bez prowizji...

56 m2
3 pokoje
456 229 zł
8 147 zł/m2
 Szamotuły   Stanisława Staszica

duże mieszkanie z tarasem i komórką lokatorską

Szamotuły, Stanisława Staszica

Ogłoszenie sprzedaży 4 pokojowego mieszkania balkonem i komórką lokatorską w stanie deweloperskim w SzamotułachWysoki standard wykończenia mieszkań Bezpośrednio od dewelopera...

81 m2
4 pokoje
626 780 zł
7 738 zł/m2
 Szamotuły   Stanisława Staszica

3 pokoje z ogrodem

Szamotuły, Stanisława Staszica

Ogłoszenie sprzedaży 3 pokojowego mieszkania z tarasem i ogródkiem + komórka lokatorska w stanie deweloperskim w SzamotułachWysoki standard wykończenia mieszkańBezpośrednio...

69 m2
3 pokoje
536 382 zł
7 774 zł/m2