Przetarg - ul. Szyb Andrzeja 17

Ruda śląska , Szyb Andrzeja

Mieszkanie
61 m2
3 pokoje

193 200 zł

Treść ogłoszenia

TAURON Dystrybucja S.A.

Oddział w Gliwicach

ul. Portowa 14A, 44-102 Gliwice



Adres do korespondencji

Skrytka pocztowa nr 2708

40-337 Katowice



Obsługa klientów

Elektronicznie: tauron-dystrybucja.pl/formularz

Telefonicznie: +48 32 606 0 616



OGŁOSZENIE O SPRZEDAŻY

w Przetargu nieograniczonym



Spółka TAURON Dystrybucja S.A.

z siedzibą w Krakowie, 31–035 Kraków, ul. Podgórska 25A

NIP 6110202860, REGON 230179216, wpisanej do rejestru przedsiębiorców Krajowego Rejestru

Sądowego pod nr KRS 0000073321, przez Sąd Rejonowy dla miasta Krakowa - Śródmieścia XI Wydział

Gospodarczy Krajowego Rejestru Sądowego,

kapitał zakładowy 560 450 156,22 PLN wniesiony w całości



ZAPRASZA

do przetargu pisemnego nieograniczonego na sprzeda Nieruchomości lokalowej nr 6 składającej się z:

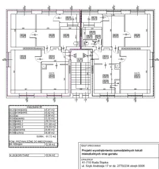
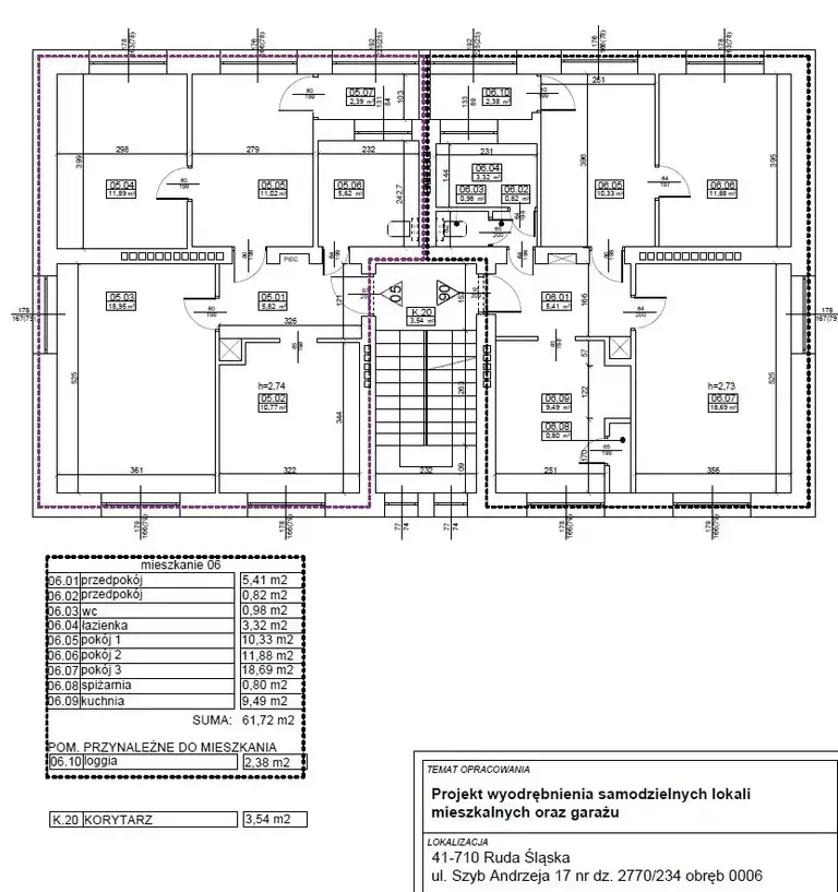
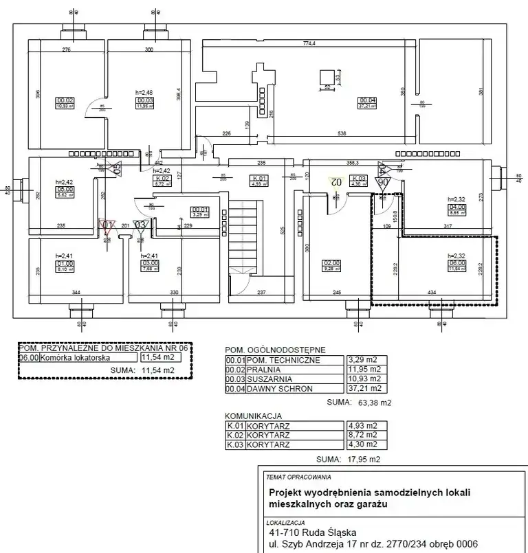
• prawa własności samodzielnego lokalu mieszkalnego nr 6 o powierzchni użytkowej 61,72 m² położonego na drugim piętrze budynku, składającego się z 3 pokoi, kuchni, łazienki, w.c., spiżarni, dwóch przedpokoi oraz pomieszczeń przynależnych – piwnicy o powierzchni 11,54 m 2 oraz loggii o powierzchni 2,38 m²,

• udziału 1596/10000 we współwłasności nieruchomości – działce gruntu nr 2770/234, (obręb 0006 Wirek), o powierzchni całkowitej wynoszącej 1014 m², położonej w Rudzie Śląskiej przy ul. Szyb Andrzeja 17, oraz częściach wspólnych budynku mieszkalnego oraz częściach wspólnych budynku niemieszkalnego - garażu, znajdujących się na Nieruchomości, dla której V Wydział Ksiąg Wieczystych Sądu Rejonowego w Rudzie Śląskiej prowadzi księgę wieczystą nr GL1S/00056373/0, zwanej dalej NIERUCHOMOŚCIĄ.



Współrzędne GPS:

Szerokość geograficzna: 50.27432012145684

Długość geograficzna: 18.878629537422512



Cena wywoławcza Nieruchomości wynosi – 193 200,00 zł netto (słownie: sto dziewięćdziesiąt trzy tysiące dwieście złotych, 00/100).

Sprzedaż Nieruchomości zwolniona jest z podatku VAT, na podstawie art. 43 ust. 1 pkt 10 ustawy o VAT (informacja aktualna na dzień ukazania się ogłoszenia).



Warunkiem przystąpienia do Przetargu nieograniczonego jest wniesienie Wadium.



Termin i miejsce wpłaty Wadium:

Wadium w wysokości 19 320,00 zł (słownie: dziewiętnaście tysięcy trzysta dwadzieścia złotych, 00/100) należy wnieść w formie pieniężnej do dnia 19.08.2025 r. na rachunek bankowy TAURON Dystrybucja S.A. Oddział w Gliwicach: 73 1140 1078 0000 2205 5500 2001

z dopiskiem: „WADIUM –przetarg pisemny nieograniczony na sprzedaż lokalu mieszkalnego nr 6, położonego w Rudzie Śląskiej przy ul. Szyb Andrzeja 17”.

Za datę wniesienia wadium uznaje się datę wpływu środków finansowych na rachunek bankowy Sprzedającego.



Termin i miejsce składania ofert:

Ofertę należy przesłać wyłącznie na adres: TAURON Dystrybucja S.A. Oddział w Gliwicach, Wydział OZ, Skrytka pocztowa nr 2708, 40-337 Katowice, do dnia 20.08.2025 r. do godziny 15:00 (decyduje data i godzina wpływu do kancelarii), w jednej zamkniętej kopercie z podaniem imienia i nazwiska lub nazwy firmy oraz adresu (siedziby firmy) z dopiskiem na kopercie:

„Przetarg pisemny nieograniczony na sprzedaż lokalu mieszkalnego nr 6, położonego w Rudzie Śląskiej przy ul. Szyb Andrzeja 17.” Nie otwierać przed 26.08.2025 r., godz. 12:00.



Termin i miejsce otwarcia ofert:

26.08.2025 r., o godz. 12:00 w Gliwicach przy ul. Portowa 14a w siedzibie TAURON Dystrybucja S.A Oddział w Gliwicach w Budynku 14A, sala konferencyjna nr 139, z zachowaniem kolejności według daty wpływu oferty.



Opis nieruchomości:

Nieruchomość lokalowa nr 6 o powierzchni 61,72 m² zlokalizowana jest na drugim piętrze budynku mieszkalnego wielorodzinnego i składa się z się z 3 pokoi, kuchni, łazienki, wc, spiżarni, 2 przedpokoi oraz pomieszczeń przynależnych – piwnicy o powierzchni 11,54 m 2 oraz loggii o powierzchni 2,38 m². Lokal odcięty od zasilania w energię elektryczną (wybudowany licznik) oraz ogrzewania (w lokalu pozostał bezklasowy piec węglowy oraz nieczynny piec kaflowy).

Nieruchomość posiada udział 1596/10000 we współwłasności nieruchomości – działce gruntu nr 2770/234 (wynoszący 161,83 m²) oraz w częściach wspólnych budynków. Do części wspólnych budynków należy część wspólna budynku mieszkalnego oraz część wspólna budynku garażu (stanowiącego samodzielny lokal i podlegającego odrębnemu obrotowi).

Budynek mieszkalny sześciolokalowy wybudowany jest w technologii tradycyjnej, murowanej z cegły, podpiwniczony, jednoklatkowy. Budynek wyposażony jest w instalacje: wodną, kanalizacyjną, energii elektrycznej.

W podpiwniczeniu budynku zlokalizowane są pomieszczenia: pralni, suszarni, pomieszczenie gospodarcze, dawnego schronu, które służą do użytku wszystkim lokatorom.

Zaświadczenie o samodzielności lokalu mieszkalnego nr 6 wydał Prezydent Miasta Ruda Śląska nr AU.7120.182.2023 w dniu 4.12.2023 r. Dla lokalu zostało wykonane Świadectwo charakterystyki energetycznej nr SCHE/25180/562/2023.

Dostęp do nieruchomości odbywa się bezpośrednio od strony ul. Szyb Andrzeja. Najbliższe otoczenie nieruchomości stanowi zabudowa garażowa, tereny zielone oraz tereny pokopalniane.

Działka nr 2770/234 jest częściowo ogrodzona, nie posiada widocznych znaków granicznych a ewentualne ich wznowienie leży po stronie kupującego.

Nieruchomość położona jest w granicach obowiązywania miejscowego planu zagospodarowania przestrzennego zatwierdzonego uchwałą nr PR.0007.59.2018 Rady Miasta z dnia 22 marca 2018 r.

Zgodnie z zapisami ww. planu, działka 2770/234 położona jest w terenie oznaczonym symbolem 72MWI- tereny zabudowy mieszkaniowej wielorodzinnej.

Przy zawieraniu aktu notarialnego sprzedaży lokalu kupujący przystępować będzie do zawartej uprzednio przez TAURON Dystrybucja S.A. a nabywcą lokalu niemieszkalnego - garażu umowy quoad usum, określającej sposób korzystania z nieruchomości wspólnej objętej KW nr GL1S/00056373/0, na warunkach w niej wymienionych, które polegać będą między innymi na:

• prawie do wyłącznego posiadania i korzystania z części wspólnych budynku mieszkalnego przez każdoczesnych właścicieli lokali mieszkalnych wyodrębnionych w budynku mieszkalnym, ponoszenia kosztów jego utrzymania w tym wszelkich napraw, konserwacji, remontów itp.,

• prawie do wyłącznego posiadania i korzystania z części wspólnych garażu przez każdoczesnych właścicieli lokalu garażowego, ponoszenia kosztów jego utrzymania w tym wszelkich napraw, konserwacji, remontów itp.,

• uprawniony do wyłącznego korzystania z części wspólnych budynku mieszkalnego zrzeka się prawa do korzystania z części wspólnych garażu zastrzeżonych do wyłącznego korzystania przez właściciela rzeczonego garażu,

• uprawniony do wyłącznego korzystania z części wspólnych garażu zrzeka się prawa do korzystania części wspólnych budynku mieszkalnego zastrzeżonych do wyłącznego korzystania przez właścicieli wyodrębnionych lokali w tym budynku mieszkalnym.



Służebności

1. Po terenie nieruchomości- działce nr 2770/234 przebiegają linie kablowe niskiego napięcia oraz zlokalizowane są dwa złącza kablowe o łącznej powierzchni służebności wynoszącej 29 m².

Dla wyżej opisanych urządzeń zostanie ustanowiona na czas nieoznaczony na rzecz spółki: TAURON Dystrybucja Spółka Akcyjna z siedzibą w Krakowie (dalej zwana: TD S.A.) - nieodpłatna służebność przesyłu polegająca na:

1) prawie pozostawienia, funkcjonowania, eksploatacji, remontu, budowy, przebudowy i korzystania z urządzeń elektroenergetycznych służących do dystrybucji energii elektrycznej, tj. dwóch odcinków podziemnej linii kablowej niskiego napięcia i dwóch złączy kablowych ZK – 2 i ZK - 4P położonych na nieruchomości zlokalizowanej w Rudzie Śląskiej przy ul. Szyb Andrzeja 17 na działce nr 2770/234 zapisanej w księdze wieczystej GL1S/00056373/0, prowadzonej przez Sąd Rejonowy Wydział V Ksiąg Wieczystych w Rudzie Śląskiej w pasie służebności o powierzchni 29 m² (słownie: dwadzieścia dziewięć metrów kwadratowych), które zaznaczono na załączniku mapowym;

2) prawie do dystrybucji energii elektrycznej za pośrednictwem wyżej wymienionych Urządzeń;

3) prawie dokonywania przez TD S.A. lub osoby działające w jego imieniu czynności związanych z realizacją praw określonych w pkt. 1) i 2) polegających w szczególności na dokonywaniu oględzin, przeglądów, kontroli, pomiarów, napraw, konserwacji, modernizacji, demontażu, rozbiórki, wymiany, odbudowy, usuwaniu awarii i jej skutków, a także innych niezbędnych prac związanych z ich eksploatacją i wymianą;

4) prawie całodobowego, nieutrudnionego dostępu (wejścia, wjazdu, przechodu, przejazdu, dojścia, dojazdu), pracowników TD S.A. oraz osób i podmiotów działających z upoważnienia TD S.A., wraz z niezbędnym sprzętem, do przedmiotowych urządzeń elektroenergetycznych;

5) powstrzymywaniu się przez każdoczesnych właścicieli, posiadaczy i użytkowników nieruchomości od działań, które utrudniłyby lub uniemożliwiłyby dostęp do wyżej wymienionych Urządzeń, umieszczania obiektów budowlanych oraz innego zagospodarowania nieruchomości, zagrażającego funkcjonowaniu urządzeń elektroenergetycznych, a także od innych działań w jakikolwiek sposób pozostających w sprzeczności z funkcjonowaniem tych Urządzeń lub dostępem do nich.

2. Na terenie nieruchomości – działki nr 2770/234 wyznaczono obszar o powierzchni 115 m², który stanowi dostęp do działki numer 2771/234, będącej w użytkowaniu wieczystym firmy Nieruchomości KW Sp. z o.o. z siedzibą w Katowicach, której to spółce przysługuje prawo do ustanowienia służebności gruntowej.



Termin i miejsce, w którym można uzyskać informacje dotyczące przedmiotu przetargu:

Dodatkowe informacje można uzyskać pod nr tel. 32 303 54 22 lub 32 303 54 27.

Nieruchomość można oglądać w dni robocze w terminie do dnia 13.08.2025r. w godz. od 9:00 do 12:00, po uprzednim skontaktowaniu się pod wyżej wskazanymi nr telefonów.



Podpisanie umowy sprzedaży nieruchomości odbędzie się w Kancelarii Notarialnej zaproponowanej przez Spółkę.

Wszystkie koszty zakupu nieruchomości ponosi nabywca w tym w szczególności: wynagrodzenia notariusza (taksa notarialna), podatek PCC oraz koszty wpisów do ksiąg wieczystych. Szczegółowe warunki Przetargu zostały udostępnione są na stronie internetowej: www.nieruchomosci.tauron.pl



Kontakt:
TAURON Dystrybucja SA
tel: (32) 303 54 22
[Email protected]


Ogłoszenie wysłane z programu dla biur nieruchomości ASARI CRM (asaricrm.com)



Lokalizacja
Ruda śląska
śląskie
Informacje
Powierzchnia: 61 m2
3 pokoje
Numer oferty: 11514/3186/OMS
Dodatkowe zalety
piwnica
Kontakt
AMK Portal Sp. z o.o.
TAURON Dystrybucja SA
(32) 303 54 22

Podobne oferty

 Ruda śląska   Jerzego Ziętka

Promocja do połowy stycznia 3 pokoje balkon

Ruda śląska, Jerzego Ziętka

NOWE APARTAMENTY W RUDZIE ŚLĄSKIEJ W DOSKONAŁEJ LOKALIZACJI ! KUPUJĄCY NIE PŁACI PROWIZJI I PODATKU PCC 2% ! IDEALNY PRODUKT...

54 m2
3 pokoje
358 776 zł
6 644 zł/m2
 Ruda śląska   Jerzego Ziętka

Promocja do połowy stycznia 4 pokoje ogródek

Ruda śląska, Jerzego Ziętka

NOWE APARTAMENTY W RUDZIE ŚLĄSKIEJ W DOSKONAŁEJ LOKALIZACJI ! KUPUJĄCY NIE PŁACI PROWIZJI I PODATKU PCC 2% ! IDEALNY PRODUKT...

65 m2
4 pokoje
471 256 zł
7 250 zł/m2
 Ruda śląska   Alojzego Jankowskiego

KAWALERKA DO REMONTU W ŚWIETNEJ LOKALIZACJI

Ruda śląska, Alojzego Jankowskiego

KAWALERKA W BLOKU PO TERMOMODERNIZACJI   ŚWIETNY PRODUKT INWESTYCYJNY! USTAWNY UKŁAD  DUŻA WIDNA KUCHNIA  ATRAKCYJNA CENA    Oferujemy Państwu NIESPEŁNA 32m2 na...

31 m2
1 pokój
149 000 zł
4 806 zł/m2