Lokal 126m² - oddzielne wejście ROI 9%

Ostróda , Jana Pawła Ii

Komercyjne
126 m2

625 000 zł

Treść ogłoszenia

Rewelacyjny Lokal w Galerii Mazurskiej z najemcą

ZAPRASZAM DO ZŁOŻENIA OFERTY

Atrakcyjnie położony lokal z prywatnym wyjściem na zewnątrz w Galerii Mazurskiej

Lokalizacja:
Galeria Mazurska - największa galeria w centrum Ostródy, położona przy ruchliwej ulicy, blisko przystanki komunikacji miejskiej, stacja kolejowa, bulwary nad jeziorem. Pełna infrastruktura piesza wraz punktami spotkań i rekreacji.

„Galeria Mazurska” to około 50 sklepów i ponad 17 000 m² powierzchni. Znajduje się tu także Aquapark, duży supermarket i kręgielnia. Galeria przez cały rok przyciąga rzesze mieszkańców i turystów. Na dolnym poziomie znajduje się 180 miejsc parkingowych i więcej na ulicach

Nieruchomości:
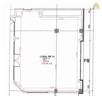
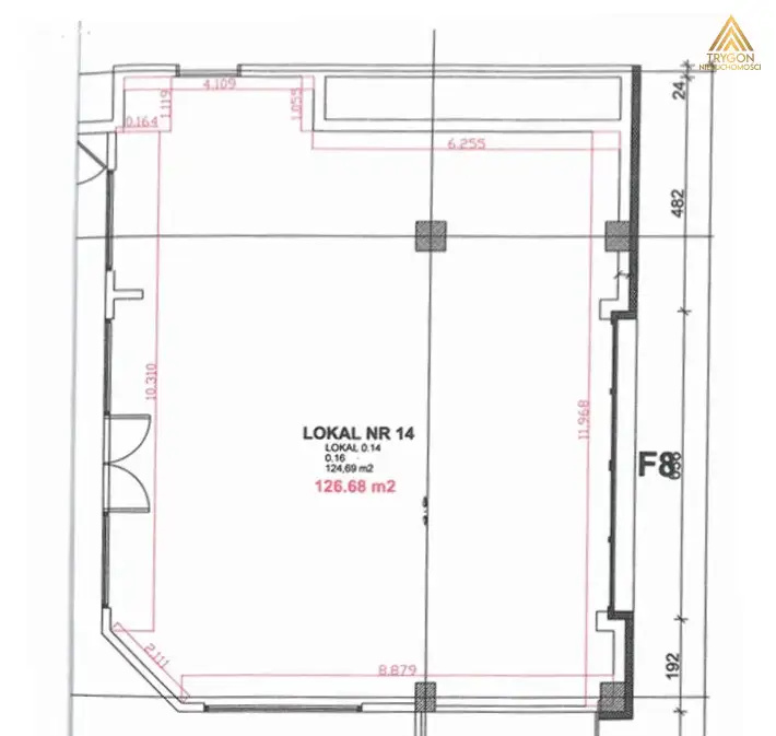
Lokal zlokalizowany jest na poziomie galerii głównej, bezpośrednio przy jednych z głównych drzwi galerii. Przestrzeń jest dobrze zlokalizowana na krzyżówce dwóch alejek i posiada duże okna z dwóch stron z ponad standardową możliwością ekspozycji reklamy oraz dodatkowo dużą witrynę wychodzące na ulicę z drzwiami zewnętrznymi. Prywatne wyjście na ulicę daje dodatkowe możliwości otwarcia lokalu poza godzinami działania galerii.
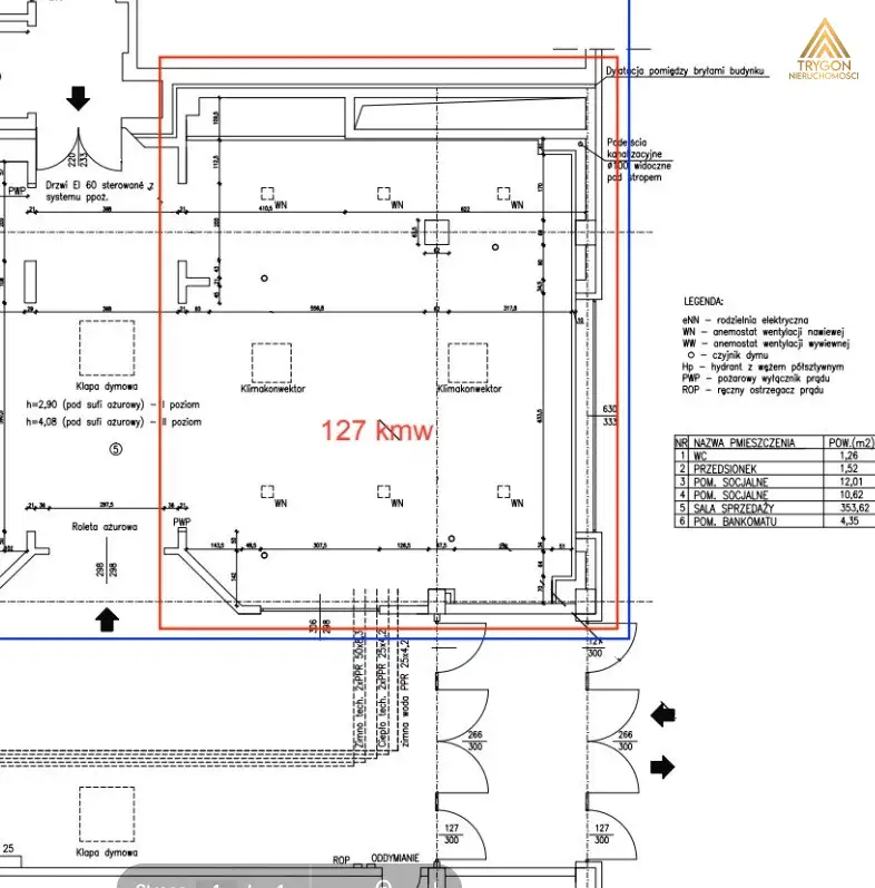
Całkowita powierzchnia wynosi 127 m². Można w nim prowadzić dowolną działalność gospodarczą. Otwarta przestrzeń pozwala na dowolną adaptację.
Ogrzewanie, nawiewne z klimakonwektorów, (funkcja chłodzenia i ogrzewania)

Status własności: Pełna własność z KW wraz z prawem własności w gruncie na którym stoi galeria.
Lokal jest wynajmowany, możliwość przejęcia umowy najmu.

Cena: 625000 ZŁ do negocjacji

Zapraszam do kontaktu
533021120
[Email protected]">[Email protected]

Powyższa oferta ma charakter informacyjny i nie stanowi oferty handlowej w rozumieniu art. 66 §1 Kodeksu Cywilnego.
Lokalizacja
Ostróda
warmińsko-mazurskie
Informacje
Powierzchnia: 126 m2
Rok budowy: 2013
Numer oferty: 461370
Umiejscowienie
centrum handlowe
Kontakt
Trygon Nieruchomości
Przemysław Daćko
533021120

Podobne oferty

 Ostróda   Plac 1000-lecia

Lokal na sprzedaż

Ostróda, Plac 1000-lecia

Oferuję na sprzedaż lokal użytkowy o powierzchni 77,9 m2 znajdujący się na parterze budynku mieszkalno-usługowego przy ulicy 1000-lecia w Ostródzie....

79 m2
389 000 zł
4 924 zł/m2
 Ostróda   Adama Mickiewicza

Lokal na sprzedaż

Ostróda, Adama Mickiewicza

Jeżeli szukasz miejsca, w którym możesz mieszkać i jednocześnie prowadzić własny biznes, koniecznie zapoznaj się z moją ofertą! Oferuję na...

60 m2
3 pokoje
349 000 zł
5 817 zł/m2
 Ostróda   Jana Pawła Ii

Lokal 126m² - oddzielne wejście ROI 9%

Ostróda, Jana Pawła Ii

Rewelacyjny Lokal w Galerii Mazurskiej z najemcąZAPRASZAM DO ZŁOŻENIA OFERTYAtrakcyjnie położony lokal z prywatnym wyjściem na zewnątrz w Galerii MazurskiejLokalizacja:Galeria...

126 m2
625 000 zł
4 960 zł/m2