3 pokoje z balkonem zieleń dobra komunikacja

Poznań , Jasielska

Mieszkanie
54 m2
3 pokoje

589 638 zł

Treść ogłoszenia

Ogłoszenie sprzedaży 3 pokojowego mieszkania z balkonem w Poznaniu


Zadzwoń i umów się na obejrzenie inwestycji +48798601102




  • Bezpośrednio od dewelopera

  • Brak PCC

  • Bez prowizji





Lokalizacja

Podolany, to lokalizacja zapewniająca bliskość terenów zielonych, a jednocześnie jest dobrze skomunikowana z centrum.



  • autobus - 1 minuta

  • przychodnia - 5 minut

  • tereny zielone - 5 minut

  • szkoła - 5 minut

  • sklepy - 1 minuta







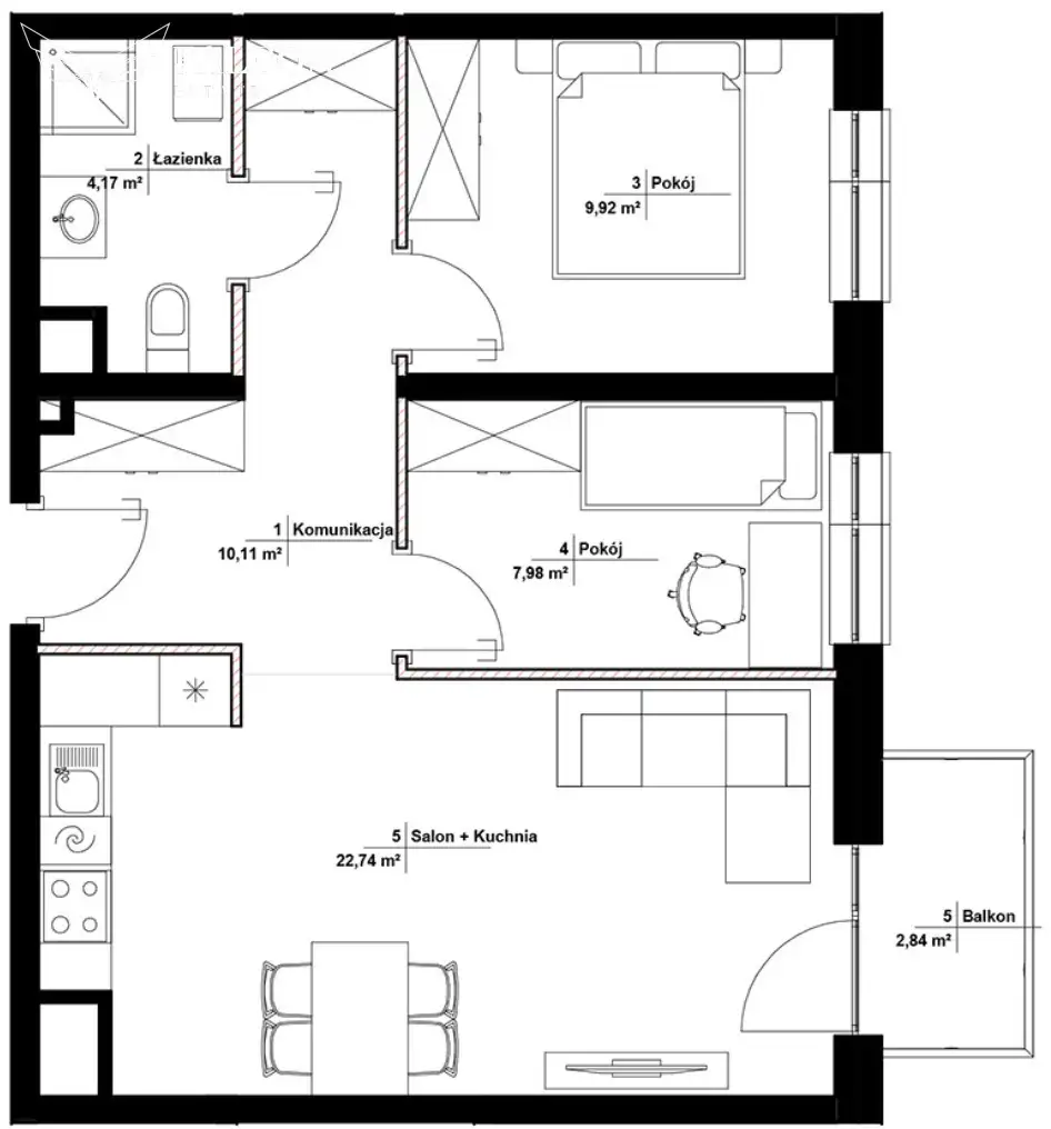
Układ mieszkania




  • salon + aneks kuchenny - 22,74 m²

  • pokój - 9,92 m²

  • pokój - 7,98 m²

  • łazienka - 4,17 m²

  • przedpokój - 10,11 m²

  • balkon - 2,84 m²




w inwestycji



  • windy

  • domofon

  • monitoring

  • wewnętrzny plac zabaw

  • CO miejskie


To miejsce, które daje Ci spokój, komfort i codzienną wygodę.



Termin oddania: I kwartał 2026
Do ceny należy doliczyć miejsce postojowe w hali garażowej.




Spełnij marzenia o nowym mieszkaniu.
Nie czekaj, zarezerwuj mieszkanie już teraz.


Monika Skotarczak. +48798601102

ZERO prowizji, brak PCC

...
Oferta wystawiona przez Biuro nieruchomości Falcon Estate.
Prezentowane w serwisie oferty nie stanowią oferty handlowej w rozumieniu art. 66 Kodeksu Cywilnego i mogą być nieaktualne.
Lokalizacja
Poznań
dzielnica Podolany
wielkopolskie
Informacje
Powierzchnia: 54 m2
3 pokoje
5 pięter w budynku
Rok budowy: 2025
Numer oferty: FE815159
Zalety
domofon
Media
kanalizacja
Wyposażenie
balkon/taras
Kontakt
Falcon Estate
Monika Skotarczak
798601102

Podobne oferty

 Poznań

Mieszkanie na najwyższym piętrze w nowym wieżowcu

Poznań

Zakochasz się w widoku z okna! Zapraszam do oglądania gotowego przestronnego mieszkania na ostatnim 17 piętrze. Cechy mieszkania:# loggia 5,4m2...

45 m2
2 pokoje
600 000 zł
13 333 zł/m2
 Poznań   Jasielska

Jasne gotowe do zamieszkania antresola taras

Poznań, Jasielska

Ogłoszenie sprzedaży 2 pokojowego mieszkania z antresolą w Poznaniu.Mieszkanie jest wykończone pod klucz, gotowe do zamieszkania.Zadzwoń i umów się na...

42 m2
2 pokoje
610 611 zł
14 538 zł/m2
 Poznań   Jasielska

2 pokoje z ogrodem na Podolanach

Poznań, Jasielska

Ogłoszenie sprzedaży 2 pokojowego mieszkania z ogródkiem w PoznaniuZadzwoń i umów się na obejrzenie inwestycji +48798601102 Bezpośrednio od dewelopera Brak...

35 m2
2 pokoje
425 884 zł
12 168 zł/m2