GRATKA DLA INWESTORA 2 mieszkania w cenie jednego

Lublin , Nadbystrzycka

Mieszkanie
135 m2
6 pokoi

999 999 zł

Treść ogłoszenia

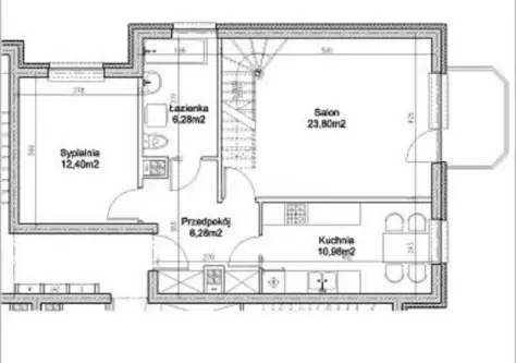
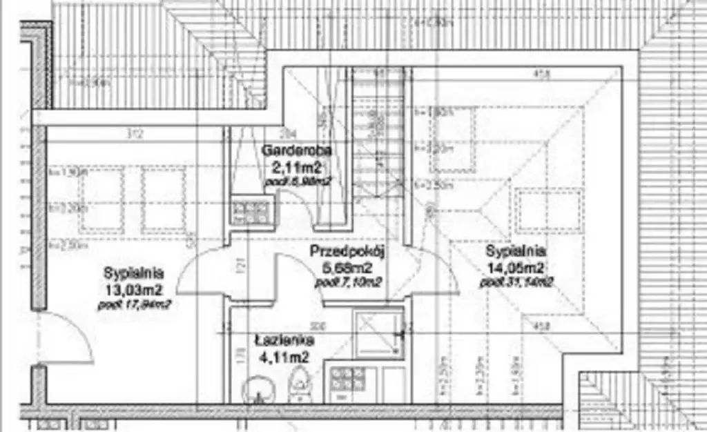
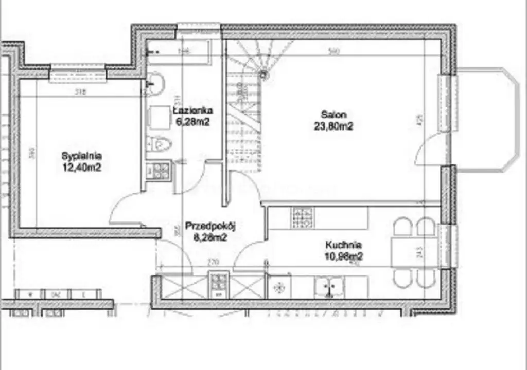
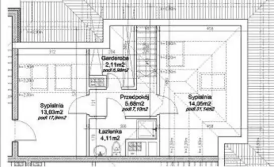
GRATKA DLA INWESTORA . Na sprzedaż mieszkanie inwestycyjne o powierzchni ok.135 m² liczonej po podłodze ( w KW 101m²). Mieszkanie wybudowane w roku 2008 składa się z dwóch lokali 3 pokojowych z oddzielnymi kuchniami na piętrze III i IV do których jest bezpośredni dostęp z klatki schodowej. Mieszkanie jest zlokalizowane jest w budynku przy ul.Nadbystrzyckiej 74 w odległości 15 min od Politechniki.

Mieszkanie zostało wyremontowane w 2025 roku. Obydwa lokale są oddzielnie opomiarowane ( prąd -oddzielne umowy z PGE, woda , ogrzewanie) . Na podział mieszkania została wydana zgoda wspólnoty mieszkaniowej. Oferta szczególnie interesująca dla inwestora zajmującego się wynajmem . Mieszkanie na poziomie 3 ( okna plastikowe) zostało zaaranżowane 3 pokojami, kuchnią w aneksie oraz łazienką z oknem . Na górnym poziomie znajdują się także 3 niezależne pokoje, kuchnia z oknem i łazienką. W górnym mieszkaniu w fazie pierwotnej adaptacji zostały dołożone 2 okna połaciowe co umożliwiło doświetlenie pomieszczeń. Wszystkie okna połaciowe FAKRO- 3 szybowe (NOWE !!) wymienione w czasie remontu. W wyremontowanych łazienkach zostały zastosowane odpływy liniowe. Do mieszkania na oddzielnej KW znajduje się garaż na poziomie -1, o wysokości 4m umożliwia to zaaranżowania go antresolą. Garaż w cenie 75 000- zakup nie jest obligatoryjny .
Zapraszam do kontaktu  osoby zainteresowane zakupem !
Kupujący ponosi koszty prowizji  Biura Nieruchomości.


Czy wiesz, że możemy przygotować dla Ciebie prezentację on-line nieruchomości? Skontaktuj się z naszym Agentem i zapytaj o szczegóły.

Pomimo, iż Doradcy Metrohouse przykładają szczególną staranność do rzetelnego prezentowania informacji o nieruchomości, nie zawsze jest możliwa weryfikacja wszystkich danych przekazanych od osób trzecich. Niniejsza prezentacja oferty nie jest ofertą w rozumieniu Kodeksu Cywilnego i ma charakter wyłącznie informacyjny.
Lokalizacja
Lublin
dzielnica Rury
lubelskie
Informacje
Powierzchnia: 135 m2
6 pokoje
4 piętra w budynku
Rok budowy: 2005
Numer oferty: SMDACA138
Zalety
domofon
Dodatkowe zalety
meble
Wyposażenie
balkon/taras
Kontakt
METROHOUSE
Krzysztof Złotucha
+48699585250

Podobne oferty

 Lublin

Lublin

Do sprzedania 3-pokojowe mieszkanie usytuowane na 3. piętrze wieżowca w atrakcyjnej lokalizacji - Czuby Południowe. GOTOWE DO WEJŚCIA. Budynek jest...

62 m2
3 pokoje
500 000 zł
8 065 zł/m2
 Lublin   Wrońska

Mieszkania

Lublin, Wrońska

Kupujący nie płaci podatku PCC. Bez prowizji dla biura nieruchomości. Oferujemy do sprzedaży mieszkanie o powierzchni 47,94 mkw - 2...

47 m2
2 pokoje
522 546 zł
11 118 zł/m2
 Lublin

3 pokoje z tarasem na Czechowie

Lublin

Trzypokojowe mieszkanie o powierzchni 77,26 m2 na 2 piętrze w 7-piętrowym budynku na nowoczesnym osiedlu na Czechowie w Lublinie.To idealna...

77 m2
3 pokoje
710 792 zł
9 231 zł/m2