OGŁOSZENIE O PRZETARGU - Juliusza Słowackiego 19

Lubań , Juliusza Słowackiego

Mieszkanie
61 m2
2 pokoje

167 000 zł

Treść ogłoszenia

Lubań, dnia 17 września 2025 roku





GGNiR.6840.8.2.2024





O G Ł O S Z E N I E



Na podstawie art. 37 ust.1, art. 38 ust.1, ust.2, art. 40 ust.1 pkt 1), ust.3 ustawy z dnia 21 sierpnia 1997 r. o gospodarce nieruchomościami (Dz.U. z 2024 roku, poz. 1145 ze zm.), § 13 Rozporządzenia Rady Ministrów z dnia 14 września 2004 roku w sprawie sposobu i trybu przeprowadzania przetargów oraz rokowań na zbycie nieruchomości (Dz.U. z 2021 roku, poz. 2213 ze zm.), §3 ust. 2 pkt 1) Uchwały Nr XXXII/221/2020 Rady Miasta Lubań z dnia 30 grudnia 2020 roku w sprawie zasad gospodarowania nieruchomościami stanowiącymi własność Gminy Miejskiej Lubań (Dz. Urz. Woj. Doln. z 2021 roku, poz. 244 ze zm.), Zarządzenia Nr 160/2025 Burmistrza Miasta Lubań z dnia 22 lipca 2025 roku w sprawie podania do publicznej wiadomości wykazu nieruchomości stanowiących własność Gminy Miejskiej Lubań przeznaczonych do sprzedaży w formie przetargu





B U R M I S T R Z M I A S T A L U B A Ń

o g ł a s z a

pierwszy przetarg ustny nieograniczony



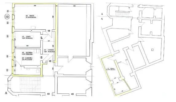
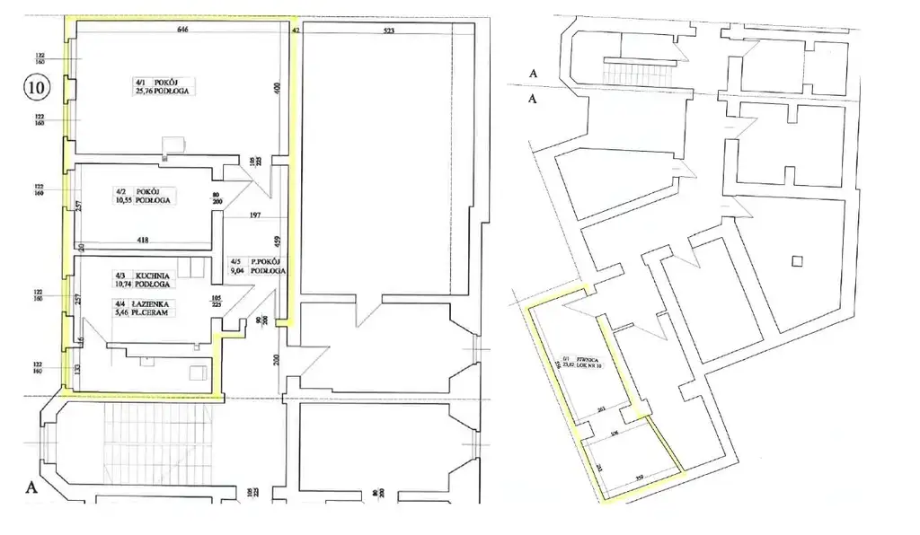
na sprzedaż lokalu mieszkalnego Nr 10 znajdującego się w budynku położonym w Lubaniu przy ul. Juliusza Słowackiego 19 wraz z udziałem we współwłasności nieruchomości gruntowej (działka nr 20, AM 2, Obręb III o powierzchni 405 m², JG1L/00019953/1)

¨ Juliusza Słowackiego 19/10



Przedmiotowy lokal mieszkalny o powierzchni użytkowej 61,55 m² położony jest na czwartej kondygnacji – poddaszu użytkowym wielorodzinnego budynku mieszkalnego zlokalizowanego w Lubaniu przy ul. Juliusza Słowackiego 19 i składa się z pokoju o powierzchni 25,76 m²; pokoju o powierzchni 10,55 m²; kuchni o powierzchni 10,74 m²; łazienki z wc o powierzchni 5,46 m² i przedpokoju o powierzchni 9,04 m². Do lokalu przynależy pomieszczenie przynależne, tj. piwnica o powierzchni 23,82 m².



Udział ułamkowy przypisany do przedmiotowego lokalu mieszkalnego z pomieszczeniem przynależnym we współwłasności części wspólnych budynku i nieruchomości gruntowej wynosi 7,23% (723/10000).



Przedmiotowa nieruchomość nie jest obciążona długami, prawami ani roszczeniami na rzecz osób trzecich.



Układ funkcjonalny lokalu korzystny. Podłogi w mieszkaniu drewniane, częściowo wyłożone wykładzinami podłogowymi. Stolarka okienna z pcv, drzwi drewniane płycinowe. Ogrzewanie lokalu – piecowe. Wysokość pomieszczeń mieszkalnych 2,60 m. Lokal mieszkalny z pomieszczeniem przynależnym o przeciętnej funkcjonalności z uwagi na wejście do łazienki z wc przez kuchnię. Przedmiotowy lokal mieszkalny znajduje się w stanie wymagającym kapitalnego remontu. Wymiany na nowe wymagają wszystkie instalacje wewnętrzne (instalacja elektryczna, wodna, kanalizacyjna i gazowa – w dniu wyceny lokal nie posiada przyłącza instalacji elektrycznej i gazowej). Nowego rozwiązania wymaga system ogrzewania lokalu, ponieważ znajdujący się w nim piec kaflowy znajduje się w złym stanie technicznym. Wymiana instalacji wymusi wykonanie nowych tynków oraz okładzin ścian. Wymiany na nowe wymagają okna, drzwi wewnętrzne, zewnętrzne oraz wykładziny podłogowe.



Nieruchomość gruntowa zabudowana wielorodzinnym budynkiem mieszkalnym przy ulicy Juliusza Słowackiego 19 zlokalizowana jest w pośredniej strefie lokalizacyjnej miasta Lubania, bezpośrednio przy ulicy Juliusza Słowackiego. Budynek w zabudowie zwartej, trzykondygnacyjny, z poddaszem użytkowym i strychem, w całości podpiwniczony. Budynek wzniesiony w technologii tradycyjnej na przełomie XIX i XX wieku jako typowy budynek mieszkalny. Budynek wyposażony jest w instalacje: energii elektrycznej, wodną (sieć miejska), kanalizacyjną (sieć miejska), gazową, telekomunikacyjną, ogrzewanie lokali mieszkalnych – indywidualne dla lokali.



Zgodnie z Uchwałą nr LXXIV/433/2023 Rady Miasta Lubań z dnia 30 maja 2023 r. w sprawie uchwalenia miejscowego plan zagospodarowania przestrzennego obszaru położonego w zachodniej części miasta Lubań, przedmiotowa nieruchomość zabudowana budynkiem wielorodzinnym, położona jest na obszarze oznaczonym symbolem planu 1.2MW-U – tereny zabudowy mieszkaniowej wielorodzinnej lub usług, - granicy strefy "b" ochrony konserwatorskiej - budynki znajdujące się w gminnej ewidencji zabytków - granicy strefy ochrony archeologicznej



Lokal mieszkalny Nr 10 można oglądać od poniedziałku do piątku w godzinach od 12.00 do 14.00 po uprzednim telefonicznym umówieniu terminu z Dyrektorem Administracji Mieszkań Komunalnych w Lubaniu, 59–800 Lubań Plac Szarych Szeregów 4 ( tel. 75 722 26 58).



Cena wywoławcza nieruchomości stanowi kwota 167.000,00 zł (słownie: sto sześćdziesiąt siedem tysięcy złotych 00/100), na którą składa się:



¨ Cena lokalu mieszkalnego - 164.925,00 zł, tj. 98,7575 % ceny

¨ Cena ułamkowej części gruntu - 2.075,00 zł, tj. 1,2425 % ceny



Wadium 20.000,00 zł (słownie: dwadzieścia tysięcy złotych 00/100).



Przetarg odbędzie się w dniu 22 października 2025 roku (środa) o godzinie 11:00 w budynku Urzędu Miasta Lubania, ul. 7 Dywizji 14, I piętro, sala Nr 11.

Zgodnie z §14 pkt.3 Rozporządzenia Rady Ministrów z dnia 14 września 2004 roku w sprawie sposobu i trybu przeprowadzenia przetargów oraz rokowań na zbycie nieruchomości (Dz. U. z 2021 roku, poz. 2213 ze zm.), postąpienie ustalone zostanie z uczestnikami przetargu i nie może wynosić mniej niż 1% ceny wywoławczej, z zaokrągleniem w górę do pełnych dziesiątek złotych. Licytacji podlegać będzie stawka wywoławcza. Przetarg jest ważny bez względu na liczbę uczestników, jeżeli chociaż jeden uczestnik zaoferuje cenę o co najmniej jedno postąpienie powyżej ceny wywoławczej.



Warunkiem wzięcia udziału w przetargu jest wpłacenie wadium najpóźniej do dnia 15 października 2025 roku włącznie na rachunek bankowy Urzędu Miasta Lubań Nr 60 2030 0045 1110 0000 0080 6550 prowadzony przez BNP Paribas Bank Polska S.A. Oddział Lubań ul. 7 Dywizji 14. Dla wpłat gotówkowych dokonywanych w Monetia Sp.z.o.o. ul. 7 Dywizji 3 w Lubaniu od dnia 12.07.2021r. pobierana jest prowizja w wysokości:

- 3,00 zł od wpłat do 1.000,00 zł

- 0,3% wpłacanej kwoty od wpłat powyżej 1.000,00 zł.



W tytule wpłaty wadium oprócz danych uczestnika przetargu należy dopisać: „Przetarg lokal Juliusza Slowackiego 19/10”.



Wadium należy wnieść w pieniądzu – gotówką lub przelewem na podany powyżej rachunek bankowy Urzędu Miasta Lubań. W przypadku wpłacenia wadium w formie przelewu bankowego wpłata powinna być dokonana odpowiednio wcześniej, tak aby w dniu 15 października 2025 roku wadium znajdowało się na rachunku bankowym Urzędu Miasta Lubań. Za datę wniesienia wadium uważa się datę wpływu środków na rachunek Urzędu Miasta Lubań.



W przypadku osób fizycznych pozostających w związku małżeńskim i posiadających wspólność ustawową, wadium na przetarg należy wnosić przez oboje małżonków (w tytule wpłaty należy podać imiona i nazwiska osób przystępujących do przetargu).



Wadium wpłacone przez uczestnika przetargu, który wygrał przetarg, zalicza się na poczet ceny nabycia nieruchomości w dniu zapłaty pełnej ceny należności. Pozostałym uczestnikom przetargu wadium zostanie zwrócone w ciągu trzech dni od dnia zamknięcia przetargu.

Wadium ulega przepadkowi w razie uchylenia się uczestnika, który przetarg wygrał od podpisania umowy notarialnej.



Warunkiem udziału w przetargu jest wniesienie wadium w podanym wyżej terminie oraz:

- w przypadku, gdy uczestnikiem przetargu jest osoba fizyczna pozostająca w związku małżeńskim, konieczne jest złożenie oświadczenia o obowiązującym w małżeństwie ustroju majątkowym. Jeżeli nabycie nieruchomości ma nastąpić do majątku wspólnego, warunkiem dopuszczenia do przetargu jest: osobiste stawiennictwo obojga małżonków do przetargu lub przedłożenie pisemnej zgody współmałżonka na dokonanie czynności prawnych związanych z udziałem w przetargu, przy czym podpis powinien być poświadczony notarialnie. Jeżeli zbycie nieruchomości ma nastąpić do majątku osobistego, warunkiem dopuszczenia do przetargu jest przedłożenie wypisu aktu notarialnego ustanawiającego rozdzielność majątkową lub – odpis orzeczenia sądowego ustanawiającego rozdzielność majątkową lub pisemne oświadczenie obojga małżonków o nabywaniu nieruchomości do majątku osobistego jednego z nich z podpisami poświadczonymi notarialnie.

Osoba wyłoniona w wyniku przetargu jako nabywca nieruchomości, przy zawarciu notarialnej umowy sprzedaży, obowiązana jest przedłożyć w formie aktu notarialnego pisemną zgodę współmałżonka na zawarcie umowy sprzedaży, na warunkach ustalonych w przetargu. Wymóg ten nie obowiązuje, jeżeli małżonkowie przystąpią do podpisania notarialnej umowy sprzedaży,

- w przypadku, gdy uczestnikiem przetargu jest osoba fizyczna prowadząca działalność w formie spółki cywilnej – okazanie umowy spółki, REGON-u spółki, odpowiedniej uchwały pozwalającej na odpłatne nabycie nieruchomości bądź stosownego umocowania do działania w imieniu spółki (pozwalające na odpłatne nabycie nieruchomości),

- w przypadku, gdy uczestnikiem przetargu jest osoba fizyczna prowadząca działalność gospodarczą – ważny dokument potwierdzający tożsamość oraz aktualne zaświadczenie o wpisie do Centralnej Ewidencji i Informacji o Działalności Gospodarczej,

- w przypadku, gdy uczestnikiem przetargu jest osoba prawna lub podmiot nie posiadający osobowości prawnej, a prowadzący działalność gospodarczą – przedłożenie aktualnego odpisu z Krajowego Rejestru Sądowego oraz odpowiedniej uchwały wyrażającej zgodę na wzięcie udziału w przetargu i nabycie nieruchomości. Za aktualne uważa się odpisy z KRS sporządzone nie wcześniej niż 1 miesiąc przed dniem przetargu, jak również informacje odpowiadające odpisowi aktualnemu na podstawie art. 4 ust 4aa ustawy z dnia 20 sierpnia 1997 roku o Krajowym Rejestrze Sądowym (Dz.U. z 2025r., poz. 869 ze zm.) wygenerowane nie wcześniej niż 1 miesiąc przed dniem przetargu,

- w przypadku, gdy uczestnikiem przetargu jest osoba będąca cudzoziemcem – uzyskanie zezwolenia Ministra Spraw Wewnętrznych i Administracji na nabycie w/w nieruchomości z uwzględnieniem art. 8 ustawy z dnia 24 marca 1920 roku o nabywaniu nieruchomości przez cudzoziemców (Dz.U. z 2017 r., poz. 2278, ze zm.), a w przypadku wygrania przetargu, okazanie komisji przetargowej promesy lub zezwolenia. Jeżeli nabycie nieruchomości przez cudzoziemca nie wymaga zezwolenia Ministra Spraw Wewnętrznych, nabywca zobowiązany jest do złożenia oświadczenia w tym zakresie w notarialnej umowie nabycia.



W przypadku, gdy osoba zainteresowana wzięciem udziału w przetargu, która spełniła warunku udziału nie może stawić się osobiście w dniu przetargu, wskazana przez nią osoba powinna okazać stosowne pełnomocnictwo. W przypadku umocowania do nabycia nieruchomości pełnomocnictwo powinno określać przedmiot czynności oraz rodzaj czynności. W pełnomocnictwie należy zatem wskazać, iż pełnomocnik jest umocowany do nabycia w imieniu mocodawcy i na rzecz mocodawcy nieruchomości stanowiących przedmiot przetargu. Pełnomocnictwo do udziału w przetargu powinno być stwierdzone dokumentem z podpisem urzędowo poświadczonym (pełnomocnictwo notarialne).



Wraz z pełnomocnictwem należy przedłożyć dowód wniesienia opłaty skarbowej w wysokości 17,00 zł (słownie: siedemnaście złotych 00/100), której należy dokonać na rachunek bankowy Nr 11 2030 0045 1110 0000 0289 2350. Od obowiązku wnoszenia opłaty skarbowej można być zwolnionym w przypadku, gdy pełnomocnikiem strony jest rodzina, zstępni, wstępni lub rodzeństwo.







Wysokość opłat i terminy ich wnoszenia:



Lokal + grunt – 100% ceny wylicytowanej na przetargu;



100% ceny uzyskanej w przetargu za lokal mieszkalny i grunt płatne przez nabywcę najpóźniej w dniu zawarcia aktu notarialnego, przed jego podpisaniem.



Poza wylicytowaną ceną za lokal mieszkalny i grunt nabywca zobowiązany jest do pokrycia kosztów zawarcia aktu notarialnego i opłat sądowych.



Zgodnie z zapisami ustawy z dnia 11 marca 2004 roku o podatku od towarów i usług (Dz. U. z 2025 roku, poz. 775 ze zm.) sprzedaż lokalu wraz z udziałem we współwłasności nieruchomości gruntowej zwolniona jest z uiszczenia podatku VAT.



Informacje o zaliczkach i innych opłatach związanych z utrzymaniem nieruchomości wspólnej dotyczących przedmiotowego lokalu można uzyskać u zarządcy budynku, którym jest Wspólnota S.C. Zarządzanie i Administrowanie Nieruchomościami z siedzibą 59–800 Lubań ul. Spółdzielcza 13.



O terminie i miejscu zawarcia umowy sprzedaży nabywca zostanie powiadomiony w ciągu 21 dni od daty zamknięcia przetargu.

Jeżeli nabywca nieruchomości nie stawi się bez usprawiedliwienia w miejscu i terminie oznaczonym w zawiadomieniu, Burmistrz Miasta Lubań może odstąpić od zawarcia aktu notarialnego, a wpłacone wadium nie podlega zwrotowi.

Przetarg może być odwołany po uprzednim podaniu do publicznej wiadomości ważnych przyczyn jego odwołania.



Ogłoszenie dostępne jest na tablicy ogłoszeń w siedzibie Urzędu Miasta Lubań ul. 7 Dywizji 14, na stronie internetowej www.luban.pl w zakładce „Nieruchomości”, na stronie internetowej Biuletynu Informacji Publicznej Urzędu Miasta Lubań http://bip.miastoluban.pl oraz w Wydziale Gospodarki Gruntami, Nieruchomościami i Rolnictwa Urzędu Miasta Lubań ul. 7 Dywizji 14, I piętro, pokój Nr 5, Tel.: + 48 75 646 44 22.



Szczegółowe informacje o przetargu można uzyskać w Wydziale Gospodarki Gruntami, Nieruchomościami i Rolnictwa Urzędu Miasta Lubania, ul. 7 Dywizji 14, I piętro, pokój Nr 5, tel. + 48 75 646 4422.





BURMISTRZ

MIASTA LUBAŃ

Grzegorz Wieczorek



Kontakt:
Urząd Miasta Lubań
tel: 75 646 44 22
[Email protected]


Ogłoszenie wysłane z programu dla biur nieruchomości ASARI CRM (asaricrm.com)



Lokalizacja
Lubań
dolnośląskie
Informacje
Powierzchnia: 61 m2
2 pokoje
4 piętra w budynku
Numer oferty: 11686/3186/OMS
Kuchnia
z oknem
Kontakt
AMK Portal Sp. z o.o.
Urząd Miasta Lubań
75 646 44 22

Podobne oferty

 Lubań   Juliusza Słowackiego

Przetarg

Lubań, Juliusza Słowackiego

Lubań, dnia 22 maja 2024 roku GGNiR.6840.8.12.2023 O G Ł O S Z E N I E Na podstawie art....

68 m2
2 pokoje
206 000 zł
3 029 zł/m2
 Lubań   Kolejowa

Mieszkanie

Lubań, Kolejowa

Lubań, dnia 27 lutego 2025 roku GGNiR.6840.8.7.2024 OGŁOSZENIE Na podstawie art. 37 ust.1, art. 38 ust.1, ust.2, art. 40 ust.1...

36 m2
2 pokoje
150 000 zł
4 167 zł/m2
 Lubań   Jarosława Dąbrowskiego

Mieszkanie

Lubań, Jarosława Dąbrowskiego

Lubań, dnia 02 października 2025 roku GGNiR.6840.8.6.2024 OGŁOSZENIE Na podstawie art. 37 ust.1, art. 38 ust.1, ust.2, art. 40 ust.1...

85 m2
3 pokoje
312 000 zł
3 671 zł/m2