45m² 2 pokoje spokojne osiedle

Giżycko , Daszyńskiego

Mieszkanie
45 m2
2 pokoje

215 000 zł

Treść ogłoszenia

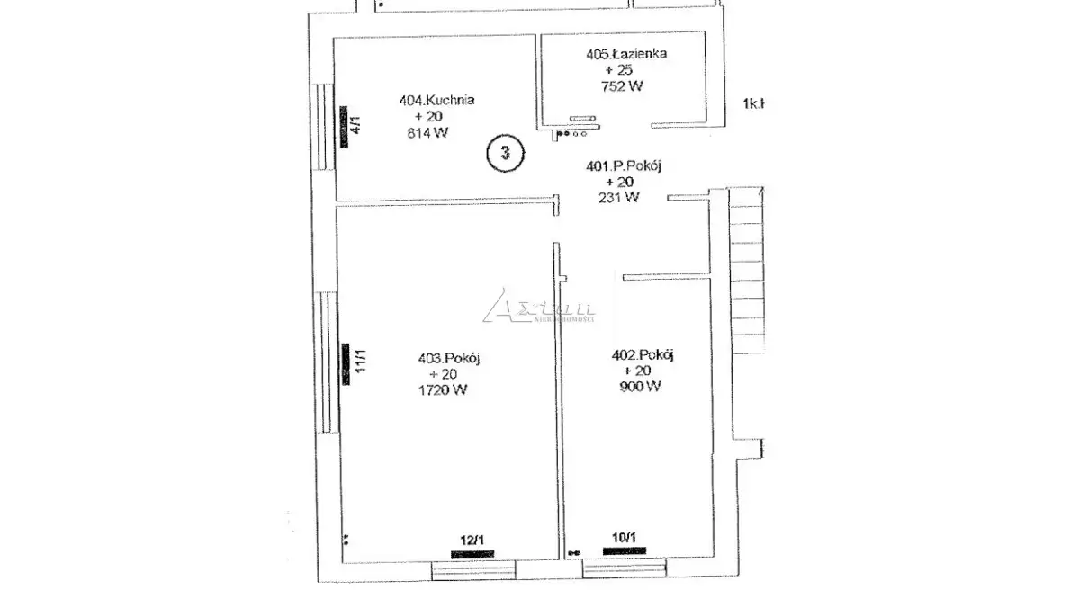
Mieszkanie 2 pokojowe o powierzchni 45 m², zlokalizowane przy ulicy Daszyńskiego 
Kupujący nie płaci prowizji.
Bardzo funkcjonalny rozkład.
Mieszkanie składa się z:
- salonu
- sypialni
- oddzielnej kuchni
- łazienki z WC
- przedpokoju 
- balkon
Do mieszkania przynależy piwnica 4m²
Miejsca parkingowe przed budynkiem.
Forma własności: odrębna własność lokalu.

Ciche i spokojne osiedle, pełna infrastruktura.
W pobliżu przedszkole, szkoła, sklepy, usługi

 Zapraszam na prezentację.

Wskaźnik rocznego zapotrzebowania na energię użytkową (EU): 109.5 kWh/(m² · rok).
Wskaźnik rocznego zapotrzebowania na energię końcową (EK): 141.6 kWh/(m² · rok).
Wskaźnik rocznego zapotrzebowania na nieodnawialną energię pierwotną (EP): 185.5 kWh/(m² · rok).
Jednostkowa wielkość emisji CO2 (E CO2): 0.04833 t CO2/(m² · rok).
Udział odnawialnych źródeł energii w rocznym zapotrzebowaniu na energię końcową (U OZE): 0 %.


--Treść niniejszego ogłoszenia nie stanowi oferty handlowej w rozumieniu Kodeksu Cywilnego--
Lokalizacja
Giżycko
warmińsko-mazurskie
Informacje
Powierzchnia: 45 m2
2 pokoje
4 piętra w budynku
Rok budowy: 1974
Numer oferty: AX012477
Zalety
domofon
Media
kanalizacja
Dodatkowe zalety
piwnica
Wyposażenie
balkon/taras
Kontakt
AXTON Nieruchomości
Mirosław Treszczyński
791333444

Podobne oferty

 Giżycko   3 Maja

Apartament wysoki standard 5 pokoi Giżycko

Giżycko, 3 Maja

Wyjątkowy dwupoziomowy apartament w Giżycku, 500 m od plaży, w nowym budownictwie klasy premium i wysokim standardzie wykończenia. Pow. 108,9...

108 m2
5 pokoi
1 400 000 zł
12 963 zł/m2
 Giżycko   Daszyńskiego

45m² 2 pokoje spokojne osiedle

Giżycko, Daszyńskiego

Mieszkanie 2 pokojowe o powierzchni 45 m2, zlokalizowane przy ulicy Daszyńskiego Kupujący nie płaci prowizji.Bardzo funkcjonalny rozkład.Mieszkanie składa się z:-...

45 m2
2 pokoje
229 500 zł
5 100 zł/m2
 Giżycko   Daszyńskiego

45m² 2 pokoje spokojne osiedle

Giżycko, Daszyńskiego

Mieszkanie 2 pokojowe o powierzchni 45 m2, zlokalizowane przy ulicy Daszyńskiego Kupujący nie płaci prowizji.Bardzo funkcjonalny rozkład.Mieszkanie składa się z:-...

45 m2
2 pokoje
215 000 zł
4 778 zł/m2