Ruczaj ustawne mieszkanie z ogródkiem 90m²

Kraków

Mieszkanie
54 m2
3 pokoje

801 000 zł

Treść ogłoszenia

Zakup mieszkania bez prowizji i podatku pcc.
Inwestycja jest gotowa, zapraszam na prezentację 7 dni w tygodniu.


Oferuję do sprzedaży gotowe mieszkanie 3-pokojowe w budynku 2-piętrowym na Ruczaju.
Inwestycja ulokowana jest na kameralnym i cichym osiedlu z wygodnym dojazdem do pozostałych dzielnic Krakowa. Budynki cechują się przemyślanym i spójnym projektem z zadbaną zielenią w częściach wspólnych.


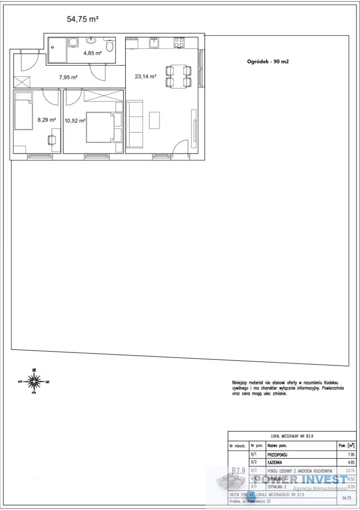
Mieszkanie znajduje się na parterze. Lokal ma powierzchnię 54,75 m i składa się z:

- salonu z aneksem kuchennym
- sypialni
- sypialni
- łazienki
- przedpokoju
- ogródka 90 m²


Mieszkanie jest w stanie deweloperskim, do własnej aranżacji*
*Współpracujemy z renomowanymi firmami wykończeniowymi. Zachęcamy do skorzystania z bezpłatnej konsultacji.



Lokalizacja:

- doskonały dostęp do komunikacji miejskiej (200 m do przystanku autobusowego "Bunscha", 1 przystanek autobusowy do zajezdni tramwajowo-autobusowej "Czerwone Maki")
- w pobliżu liczne supermarkety - Lidl, Market Point, kompleks handlowy Atut Czerwone Maki, siłownia a także restauracje,
- 4 przystanki komunikacją miejską do Kampusu UJ
- w okolicy bogate zaplecze dydaktyczne - żłobki i przedszkola, szkoła podstawowa
- w sąsiedztwie tereny zielone oraz rekreacyjne
- cicha i spokojna okolica, w sąsiedztwie niska zabudowa mieszkalna


Dodatkowe informacje dotyczące mieszkania oraz całej inwestycji:

- w każdym mieszkaniu ogrzewanie podłogowe, brak grzejników
- klimatyzacja wraz z jednostkami zewnętrzną oraz wewnętrzną w salonie
- okna 3-szybowe z filtrami antysmogowymi
- pierwszorzędny standard wykończenia części wspólnych z użyciem wysokiej jakości materiałów budowlanych
- w garażu podziemnym nie ma platform, wszystkie miejsca są wyznaczone na płycie garażowej



Do każdego mieszkania przynależy miejsce postojowe w garażu podziemnym - zakup obligatoryjny (ceny od 40 000 zł).
Istnieje możliwość zakupu komórki lokatorskiej.


Nasi eksperci finansowi z Power Finance chętnie pomogą w uzyskaniu najlepszego kredytu na rynku.


Przedstawiona oferta ma charakter informacyjny i nie stanowi oferty handlowej w rozumieniu Art.66 par.1 Kodeksu Cywilnego.


W razie dodatkowych pytań pozostaję do dyspozycji.
Angelina Rojkowicz





Ogłoszenie wysłane z programu dla biur nieruchomości ASARI CRM (asaricrm.com)



Lokalizacja
Kraków
dzielnica Ruczaj
małopolskie
Informacje
Powierzchnia: 54 m2
3 pokoje
2 piętra w budynku
Rok budowy: 2024
Numer oferty: 27090/7649/OMS
Garaż
miejsce parkingowe
Zalety
domofon
teren ogrodzony
Okolica
centrum handlowe
przedszkole
plac zabaw
szkoła podstawowa
restauracja
kościół
Kuchnia
w aneksie
Przeznaczenie
mieszkalny
Dodatkowe zalety
monitoring
Kontakt
POWER HOLDING Sp. z o.o.
Angelina Rojkowicz
+48 575 222 841

Podobne oferty

3 pokoje balkon77m² Prądnik Biay Do odbioru

Kraków, Piaszczysta

Kupujący nie płaci prowizji dla pośrednika oraz podatku PCC2% I speak English - please contact me for more informations. Termin...

77 m2
3 pokoje
907 920 zł
11 791 zł/m2
 Kraków

Kawalerka na Kazimierzu dla inwestora

Kraków

Na sprzedaż kawalerka na Kazimierzu, idealna pod inwestycje na wynajem krótkoterminowy.  Oferowane na sprzedaż mieszkanie znajduje się na II piętrze...

31 m2
1 pokój
899 000 zł
29 000 zł/m2
 Kraków   Edwarda Szymańskiego

mieszkanie 3 pokoje (43 55 m²) - bez prowizji

Kraków, Edwarda Szymańskiego

Rynek Pierwotny – ukończenie inwestycji Kwiecień 2025 – sprzedawane w stanie deweloperskim Sprzedaż zwolniona jest dodatkowych prowizji oraz podatku PCC,...

43 m2
3 pokoje
522 600 zł
12 153 zł/m2