3 pokojowe mieszkanie na Czechowie

Lublin

Mieszkanie
52 m2
3 pokoje

738 252 zł

Treść ogłoszenia

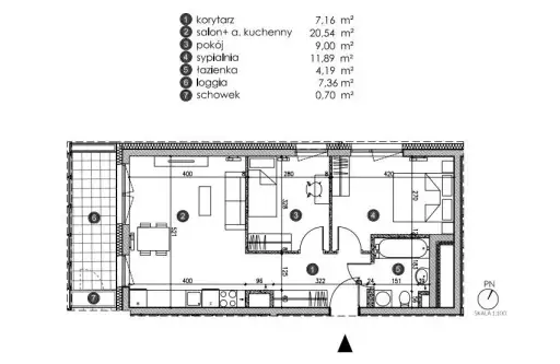
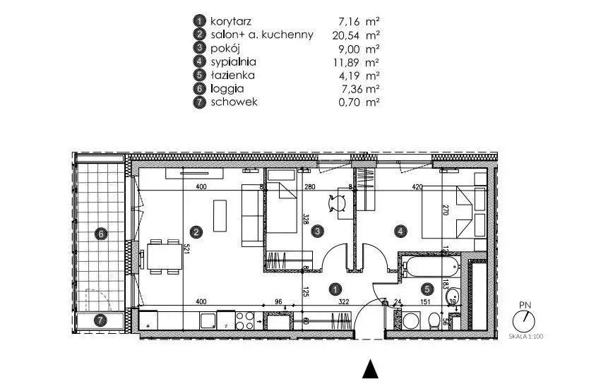
Trzypokojowe mieszkanie o powierzchni projektowej 52,77 m² na 8 piętrze w 10 piętrowym bloku na Czechowie.

Opis mieszkania:
-Pokój dzienny o pow. 20.54 m² z wyjściem na balkon o pow. 7,36 m²
-2 Pokoje o pow. 9,00 m² , 11,89 m²
-Łazienka o pow. 4,19 m²
-Przedpokój o pow. 7,16 m²
-Schowek na balkonie o pow. 0,70 m²

Dodatkowe informacje:
Miejsce postojowego w garażu podziemnym w cenie 50 000 zł, miejsce podwójne 80 000 zł

MEDIA:
ogrzewanie sieć miejska, woda, prąd

Termin realizacji: kwiecień 2026

Atuty inwestycji:
- nowoczesna architektura, technologia i ergonomiczne rozwiązanie,
- certyfikat BREEAM - wiodące na świecie pakiet systemów oceny i ceryfikacji budynków. Zapewnia spójną weryfikację wszystkich typów aktywów pod kątem zrównoważonego rozwoju i wpływu na środowisko.
- inteligentne mieszkania SMART HOME: oświetlenie, czujki, ruchu, dymu, zalania,
- zaplecze handlowo - usługowe.
- 1 hektar parku
- lobby z recepcją
- obiekt monitorowany

Lokalizacja:
Bardzo dobrze rozwinięta infrastruktura osiedla, w pobliżu uczelnie wyższe, szkoły, przedszkola, żłobki, sklepy spożywcze, galerie handlowe, przychodnie lekarskie, przystanki autobusowe oraz tereny zielone

*jeśli potrzebujesz pomocy eksperta w dobraniu finansowania zakupu nieruchomości, skontaktuj się z opiekunem oferty.

Ofertę przygotowała i prezentuje:
Patrycja Czarnik 791689906
Licencjonowany pośrednik nieruchomości
Franczewska Nieruchomości

Zapraszam do kontaktu oraz na prezentację nieruchomości!

Treść niniejszego ogłoszenia nie stanowi oferty handlowej w rozumieniu Kodeksu Cywilnego, ale jest zaproszeniem do współpracy. Dokładamy wszelkich starań, aby każda z ofert była rzetelnie sprawdzona oraz aktualna.
W ofercie nie są przedstawione koszty obsługi transakcji, która wykonywana jest w profesjonalny sposób i zapewnia Państwu pełne bezpieczeństwo. Więcej unikalnych ofert w podobnych kryteriach znajdą Państwo na naszej stronie.
Lokalizacja
Lublin
lubelskie
Informacje
Powierzchnia: 52 m2
3 pokoje
10 pięter w budynku
Rok budowy: 2026
Numer oferty: 491297191
Wyposażenie
balkon/taras
Kontakt
FRANCZEWSKA NIERUCHOMOŚCI ADRIANNA FRANCZEWSKA-KRUPA SPÓŁKA KOMANDYTOWA
Patrycja Czarnik
791 689 906

Podobne oferty

 Lublin   NOWY ŚWIAT

Dwupokojowe mieszkanie dzielnica Dziesiąta

Lublin, NOWY ŚWIAT

Na sprzedaż dwupokojowe mieszkanie w dobrym stanie zlokalizowane w dzielnicy Dziesiąta. Na sprzedaż dwupokojowe mieszkanie położone na wysokim parterze przy...

46 m2
2 pokoje
415 000 zł
9 022 zł/m2
 Lublin

2 pokojowe mieszkanie Ponikwoda Dożynkowa

Lublin

Zapraszam na prezentację!Czteropokojowe mieszkanie o powierzchni projektowej 41,15 m2 na 1 piętrze w 3 piętrowym budynku. Opis mieszkania: Pokój dzienny...

41 m2
3 pokoje
460 676 zł
11 236 zł/m2
 Lublin

Mieszkanie w Kameralnym budynku przy Peowiaków

Lublin

Nowoczesne mieszkanie 37,33 m² w Centrum Lublina - ul. Peowiaków | Kameralny budynek premiumNa sprzedaż wyjątkowe mieszkanie o powierzchni 37,33...

37 m2
1 pokój
615 945 zł
16 647 zł/m2