Na pograniczu Szemudu z Donimierzem 146 złm²

Donimierz , Nowinki

Działka
1359 m2

199 000 zł

Treść ogłoszenia

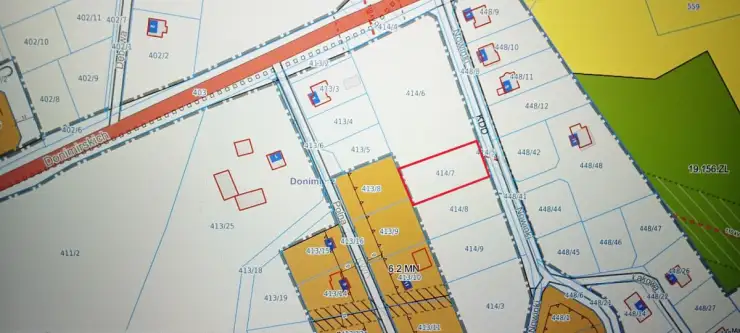
Piękna działka nr 414/7, równa, płaska, z uzbrojeniem położona na  pograniczu Szemudu i Donimierza, przy ulicy Nowinki, w gminie Szemud, w powiecie wejherowskim o powierzchni 1359 m².
Na teren wydane zostały warunki zabudowy - budowa budynku mieszkalnego jednorodzinnego.
MEDIA:
-prąd w drodze przy działce,
-wodociąg gminny w drodze przy działce,
-kanalizacja w drodze przy działce.
Działka nasłoneczniona, bez drzew i nasadzeń, w kształcie prostokąta, słońce pada na potencjalny ogród.
Przystanek autobusowy ok. 50 m od działki, przy drodze asfaltowej prowadzącej do Szemudu.
Do centrum Szemudu 1,4 km.
Atrakcyjna cena 146 zł/m².
Do węzła Trasy Kaszubskiej ok. 3 km.
Zapraszam na prezentację.
Pośrednik odpowiedzialny za realizację umowy upr. zaw. Nr 16346. OFERUJEMY POMOC W UDZIELANIU KREDYTÓW. PORÓWNAJ OFERTĘ 26 BANKÓW. ZADZWOŃ ! ! !


Lokalizacja
Donimierz
pomorskie
Informacje
Powierzchnia: 1359 m2
Numer oferty: EC592583
Ogrodzenie
brak
Kontakt
Biuro Nieruchomości Gruszka
Mariusz Gruszka
698454484

Podobne oferty

 Donimierz   Górki

Działka z WZ Donimierz k. Szemuda ładny widok

Donimierz, Górki

Ostatnia działka pod zabudowę jednorodzinną (nr ewidencyjny 142/18)   o powierzchni 1000 m2, położona w Donimierzu, przy ulicy Górki, w powiecie...

1000 m2
170 000 zł
170 zł/m2
 Donimierz   Piekiełko

Gospodarstwo w Donimierzu dom z dużą działką

Donimierz, Piekiełko

Nieruchomość gruntowa (SIEDLISKO) zabudowana domem wolnostojącym o powierzchni 19300 m2, położona w Donimierzu, w powiecie wejherowskim, w gminie Szemud.W skład...

19300 m2
1 198 000 zł
62 zł/m2
 Donimierz

Działka 2128 m² Donimierz gm. Szemud

Donimierz

Działka na sprzedaż o powierzchni 2128 m2 położona w miejscowości Donimierz gmina Szemud. Złożony wniosek o wydanie warunków zabudowy na...

2128 m2
230 000 zł
108 zł/m2