Działka

Suwałki , Nowosądecka

Działka

54 000 zł

Treść ogłoszenia

Prezydent Miasta Suwałk

ogłasza przetarg ustny nieograniczony

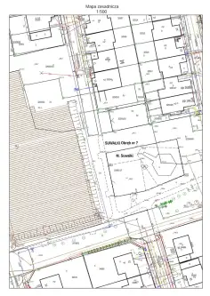
na sprzedaż nieruchomości niezabudowanej, stanowiącej własność Miasta Suwałk oznaczonej działką nr 32591/16 o powierzchni 0,0208 ha, położonej przy ul. Nowosądeckiej w Suwałkach, wchodzącej w skład nieruchomości oznaczonej księgą wieczystą nr SU1S/00030588/7. Na działkę zawarta jest umowa dzierżawy gruntu do dnia 30.11.2025 roku. Nieruchomość sprzedaje się z cesją praw i obowiązków wynikających z zawartej umowy. Działka zgodnie z miejscowym planem zagospodarowania przestrzennego osiedla Hańcza w części ograniczonej ulicami: Leśną, Raczkowską, Bydgoską, Wojska Polskiego oraz terenem wojskowym zamkniętym w Suwałkach zatwierdzonym Uchwałą IV/40/2024 Rady Miejskiej w Suwałkach z dnia 31.07.2024 roku objęta jest konturem 22MNS - teren zabudowy mieszkaniowej jednorodzinnej szeregowej lub grupowej. Nieruchomość przeznaczona jest do sprzedaży w drodze przetargu ustnego nieograniczonego.



Cena wywoławcza: 54 000 zł brutto (słownie: pięćdziesiąt cztery tysiące złotych).

Wadium: 5 400 zł (słownie: pięć tysięcy czterysta złotych).

Przetarg przeprowadzony zostanie na podstawie przepisów ustawy z dnia 21 sierpnia 1997 r. o gospodarce nieruchomościami oraz rozporządzenia Rady Ministrów z dnia 14 września 2004 roku w sprawie sposobu i trybu przeprowadzania przetargów oraz rokowań na zbycie nieruchomości.


Przetarg odbędzie się w dniu 23 października 2025 roku o godz. 10:00 w siedzibie Urzędu Miejskiego w Suwałkach przy ul. Mickiewicza 1 w sali nr 146.



Warunkiem wzięcia udziału w przetargu jest:

- wpłacenie wadium w podanej wyżej wysokości na rachunek Urzędu Miejskiego w Suwałkach nr 76 1240 5211 1111 0000 4929 8215 Bank Pekao S.A. Oddział w Suwałkach do dnia 20 października 2025 roku. W tym dniu kwota wadium musi być uznana na rachunku Urzędu. Komisja przetargowa przed otwarciem przetargu stwierdzi wniesienie wadium przez uczestników przetargu;

- złożenie, przed otwarciem przetargu, pisemnego oświadczenia o zapoznaniu się z treścią ogłoszenia o przetargu oraz przedmiotem przetargu;

- w przypadku uczestnictwa w przetargu osoby prawnej – przedłożenie aktualnego wypisu z rejestru, właściwych pełnomocnictw sporządzonych notarialnie, dowodów tożsamości osób reprezentujących podmiot;

- w przypadku uczestnictwa w przetargu osoby fizycznej – osobiste stawiennictwo w dniu przetargu z dowodem tożsamości lub reprezentowanie przez pełnomocnika na podstawie pełnomocnictwa sporządzonego notarialnie;

- w przypadku uczestnictwa w przetargu jednego ze współmałżonków – przedłożenie pisemnej zgody drugiego małżonka na nabycie nieruchomości z podpisem notarialnie poświadczonym. Osoby pozostające w związku małżeńskim, a zamierzające nabyć nieruchomość z majątku odrębnego zobowiązane są złożyć stosowne oświadczenie. Osoby nie pozostające w związku małżeńskim zobowiązane są złożyć komisji przetargowej przed przystąpieniem do przetargu pisemne oświadczenie, iż nie pozostają w związku małżeńskim.

W przypadku uchylenia się nabywcy od zawarcia umowy sprzedaży wadium nie podlega zwrotowi.

Koszty sporządzenia umowy notarialnej ponosi nabywca.

Szczegółowych informacji dotyczących przetargu udziela Wydział Geodezji i Gospodarki Nieruchomościami Urzędu Miejskiego w Suwałkach przy ul. Mickiewicza 1, pokój nr 141; telefon (87) 562-81-41.





Klauzula informacyjna RODO

Zgodnie z art. 13 ust. 1 i 2 rozporządzenia Parlamentu Europejskiego i Rady (UE) 2016/679 z dnia 27 kwietnia 2016 r. w sprawie ochrony osób fizycznych w związku z przetwarzaniem danych osobowych i w sprawie swobodnego przepływu takich danych oraz uchylenia dyrektywy 95/46/WE (ogólne rozporządzenie o ochronie danych) (Dz. Urz. UE L 119 z 04.05.2016, str. 1), dalej „RODO”, informuję, że:

a) Administratorem Pani/Pana danych osobowych jest: Urząd Miejski w Suwałkach, z siedzibą przy ul. Mickiewicza 1, 16-400 Suwałki, 087 – 562 80 00 reprezentowany przez Prezydenta Miasta Suwałk.

b) Inspektorem ochrony danych osobowych w Urzędzie Miejskim w Suwałkach jest Pan Rafał Luto, [Email protected].

c) Pani/Pana dane osobowe przetwarzane będą w celu przeprowadzenia procedury przetargowej związanej ze sprzedażą nieruchomości zgodnie z przepisami ustawy z dnia 21 sierpnia 1997 r. o gospodarce nieruchomościami.

d) Dane nie będą udostępniane podmiotom innym niż uprawnione na podstawie przepisów prawa oraz podmiotom, którym dane zostały powierzone do przetwarzania.

e) Pani/Pana dane osobowe mogą być przekazywane wyłącznie organom władzy publicznej oraz podmiotom wykonującym zadania publiczne lub działającym na zlecenie organów władzy publicznej, w zakresie i w celach, które wynikają z przepisów powszechnie obowiązującego prawa oraz innym podmiotom, które na podstawie stosownych umów podpisanych z administratorem przetwarzają dane osobowe.

f) Dane osobowe będą przechowywane przez okres niezbędny do realizacji zadania, do którego dane zostały zebrane, a następnie przez czas oraz w zakresie wymaganym przez przepisy prawa (ustawa z dnia 14 lipca 1983 r. o narodowym zasobie archiwalnym i archiwach, Dz. U. z 2020 r. poz. 164 t.j.; Rozporządzenie Prezesa Rady Ministrów z dnia 18 stycznia 2011 r. w sprawie instrukcji kancelaryjnej, jednolitych rzeczowych wykazów akt oraz instrukcji w sprawie organizacji i zakresu działania archiwów zakładowych, Dz. U. z 2011 r., Nr 14, poz. 67).

g) Osoba, której dane dotyczą ma prawo dostępu do treści swoich danych, ich sprostowania, ograniczenia przetwarzania. Nie przysługuje prawo do usunięcia, do przenoszenia oraz sprzeciwu wobec przetwarzania danych.

h) Osoba, której dane osobowe są przetwarzane ma prawo wnieść skargę do Prezesa Urzędu Ochrony Danych Osobowych w związku z przetwarzaniem danych.

i) Podanie danych wynika z przepisów ustawy i jest obowiązkowe. Ich niepodanie uniemożliwi udział w postępowaniu przetargowym. Podanie danych w celach kontaktowych jest dobrowolne, służy usprawnieniu komunikacji.

j) Dane nie będą podlegały zautomatyzowanemu podejmowaniu decyzji, w tym profilowaniu.



Kontakt:
Urząd Miasta Suwałki
tel: (87) 562-81-41
[Email protected]


Ogłoszenie wysłane z programu dla biur nieruchomości ASARI CRM (asaricrm.com)



Lokalizacja
Suwałki
podlaskie
Informacje
Numer oferty: 42852/3186/OGS
Kontakt
AMK Portal Sp. z o.o.
Urząd Miasta Suwałki
(87) 562-81-41

Podobne oferty

Działka

Suwałki, Bakałarzewska

Prezydent Miasta Suwałk ogłasza trzeci przetarg ustny nieograniczony na sprzedaż nieruchomości niezabudowanej, stanowiącej własność Miasta Suwałk oznaczonej działką nr 31266/6...

m2
2 200 000 zł
 Suwałki   Teofila Noniewicza

Działka

Suwałki, Teofila Noniewicza

Prezydent Miasta Suwałk ogłasza trzeci przetarg ustny nieograniczony na sprzedaż nieruchomości zabudowanej, stanowiącej własność Miasta Suwałk oznaczonej działką nr geod....

m2
480 000 zł
 Suwałki

Działka

Suwałki

Prezydent Miasta Suwałk ogłasza przetarg ustny nieograniczony na sprzedaż następującej nieruchomości stanowiącej własność Miasta Suwałk: 1. Oznaczona działką nr 31946/17...

m2
239 000 zł