Kawalerka w Bloku z Balkonem TOP lokalizacja

Głogów , Armii Krajowej

Mieszkanie
32 m2
1 pokój

189 000 zł

Treść ogłoszenia

Kawalerka z balkonem w bloku po termomodernizacji - Głogów, ul. Armii Krajowej
Idealna do remontu lub odświeżenia!

Przestronne wnętrze i funkcjonalny układ
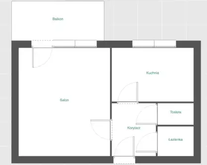
Na sprzedaż przestronna kawalerka o powierzchni 32 m², położona na 3. piętrze w 4-piętrowym bloku przy ul. Armii Krajowej w Głogowie. Mieszkanie posiada funkcjonalny układ pomieszczeń, składa się z dużego pokoju z wyjściem na balkon, oddzielnej kuchni, przedpokoju, łazienki oraz osobnego WC. Do mieszkania przynależy również piwnica, co zapewnia dodatkową przestrzeń do przechowywania.

Stan techniczny - do remontu lub odświeżenia
Mieszkanie wymaga remontu lub odświeżenia, co daje możliwość aranżacji według własnego gustu. Instalacja elektryczna oraz wodno-kanalizacyjna została wymieniona. Okna PCV zapewniają dobrą izolację termiczną i akustyczną.

Budynek i okolica
Blok po termomodernizacji, zadbany i ocieplony. Klatka schodowa odnowiona, czysta i dobrze utrzymana. Teren wokół budynku zagospodarowany, z licznymi miejscami parkingowymi.

Atrakcyjna lokalizacja
Mieszkanie znajduje się w świetnie skomunikowanej części miasta, w pobliżu „Zielonego Rynku”. W okolicy liczne sklepy, przychodnia lekarska, apteka, punkty usługowe, a także przedszkola, szkoły i place zabaw. Blisko do przystanków komunikacji miejskiej, co ułatwia szybki dojazd do innych części Głogowa.

Koszty utrzymania
Czynsz wynosi 480 zł miesięcznie i obejmuje ogrzewanie miejskie, wywóz śmieci (dla 1 osoby), fundusz remontowy oraz utrzymanie czystości w budynku.

FREE HOME biuro nieruchomości Głogów - Skontaktuj się z nami, aby umówić się na prezentację tej nieruchomości!
Lokalizacja
Głogów
dolnośląskie
Informacje
Powierzchnia: 32 m2
1 pokoje
4 piętra w budynku
Rok budowy: 1988
Numer oferty: FH581135
Dodatkowe zalety
piwnica
Wyposażenie
balkon/taras
Kontakt
FREE HOME nieruchomości
Grzegorz Łukasik
+48 537 264 666

Podobne oferty

 Głogów   Gustawa Morcinka

Wysoki standard wykończenia 2 pok z balkonem blok

Głogów, Gustawa Morcinka

Ustawne 2-pokojowe mieszkanie znajduje się na trzecim piętrze w czteropiętrowym bloku przy ulicy Gustawa Morcinka, w cichej i zielonej części...

43 m2
2 pokoje
335 000 zł
7 791 zł/m2
 Głogów   Plutona

Jasne mieszkanie z widokiem i pełnym wyposażeniem

Głogów, Plutona

Mieszkanie z PANORAMICZNYM WIDOKIEM na miasto i zachody słońca - 2 pokoje, 49 m²Prezentujemy Państwu wyjątkowe, 2-pokojowe mieszkanie o powierzchni...

49 m2
2 pokoje
235 000 zł
4 796 zł/m2
 Głogów   Orbitalna

2 pokoje z balkonem w bloku po Remoncie TOP

Głogów, Orbitalna

KOMFORT NA KOPERNIKU! 2 POKOJE Z KLIMATYZACJĄ I GARDEROBĄ | ORBITALNAPrezentujemy Państwu niezwykle komfortowe i funkcjonalne mieszkanie o powierzchni 50...

50 m2
2 pokoje
285 000 zł
5 700 zł/m2