Kamienica na sprzedaż Siedlce ul. Kochanowskiego

Siedlce , Kochanowskiego

Komercyjne
429 m2

2 995 000 zł

Treść ogłoszenia

Na sprzedaż kamienica w doskonałej lokalizacji w centrum Siedlec, przy ul. Kochanowskiego.

Budynek z przedwojennym charakterem, który nadaje mu unikalną atmosferę i historyczną wartość. W 2015 roku przeprowadzono rozbudowę parteru z wykorzystaniem pustaka gazobetonowego oraz odnowiono elewację.

Szczegóły nieruchomości:

    Powierzchnia całkowita: 429 m²
    Powierzchnia użytkowa: 388 m²
    Powierzchnia działki: 331 m²
    Ogrzewanie: miejskie

W kamienicy znajdują się lokale użytkowe, w których obecnie prowadzone są różnorodne działalności gospodarcze, co czyni ją atrakcyjną inwestycją. Możliwość przejęcia najemców – do uzgodnienia.

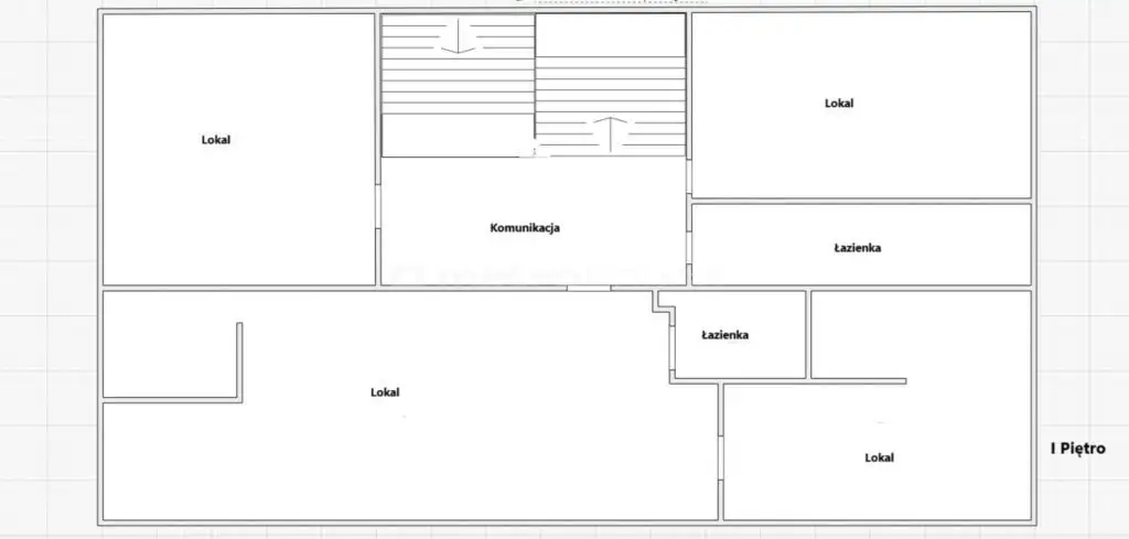
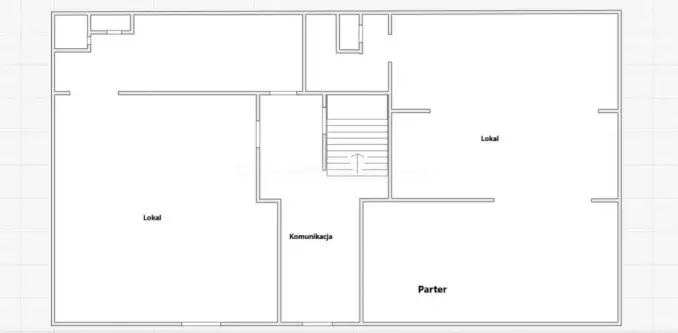
Układ pomieszczeń:

    Parter: 2 lokale o łącznej powierzchni użytkowej 190 m², rozdzielone strefą komunikacyjną (korytarz i klatka schodowa).
    I piętro: 4 lokale o łącznej powierzchni 119 m².
    Poddasze: 81 m², podzielone na 2 lokale.

Zalety nieruchomości:

    Atrakcyjna lokalizacja w sercu miasta.
    Historyczna architektura z potencjałem do adaptacji.
    Możliwość dalszego wynajmu lokali użytkowych.
    Bliskość do komunikacji miejskiej oraz innych punktów usługowych.
    Dostęp do parkingu przed budynkiem oraz na terenie posesji.

Kamienica zapewnia niezależne wejście na wyższe kondygnacje, co ułatwia dostęp dla najemców. To doskonała okazja zarówno dla inwestorów, jak i dla osób szukających lokalu do własnej działalności. Zapraszam do kontaktu w celu umówienia się na prezentację nieruchomości!


Czy wiesz, że możemy przygotować dla Ciebie prezentację on-line nieruchomości? Skontaktuj się z naszym Agentem i zapytaj o szczegóły.

Pomimo, iż Doradcy Metrohouse przykładają szczególną staranność do rzetelnego prezentowania informacji o nieruchomości, nie zawsze jest możliwa weryfikacja wszystkich danych przekazanych od osób trzecich. Niniejsza prezentacja oferty nie jest ofertą w rozumieniu Kodeksu Cywilnego i ma charakter wyłącznie informacyjny.
Lokalizacja
Siedlce
mazowieckie
Informacje
Powierzchnia: 429 m2
2 piętra w budynku
Rok budowy: 1935
Numer oferty: SLHUVE574
Kontakt
METROHOUSE
Karolina Wolińska
+48699585108

Podobne oferty

 Siedlce   3 Maja

Przetarg - ul. 3 Maja 36

Siedlce, 3 Maja

Ogłoszenie Siedlecka Spółdzielnia Mieszkaniowa w Siedlcach ogłasza przetarg nieograniczony (licytację) na zbycie lokalu użytkowego nr 76 w budynku przy ul....

75 m2
337 500 zł
4 500 zł/m2
 Siedlce   Bohaterów Getta

Siedlce, Bohaterów Getta

Na sprzedaż lokal handlowo-usługowy w samym centrum miasta Siedlce przy ul. Bohaterów Getta! Lokal znajduje się przy ruchliwej ulicy z...

84 m2
1 pokój
329 000 zł
3 917 zł/m2
 Siedlce   Bolesława Chrobrego

Przetarg - ul. Chrobrego 11

Siedlce, Bolesława Chrobrego

Ogłoszenie Siedlecka Spółdzielnia Mieszkaniowa w Siedlcach ogłasza przetarg nieograniczony (licytację) na zbycie lokalu użytkowego nr 112 w budynku przy ul....

55 m2
387 800 zł
7 051 zł/m2