Przetarg - ul. Kolejowa

Iłowa , Kolejowa

Działka

98 862 zł

Treść ogłoszenia

ZARZĄD POWIATU ŻAGAŃSKIEGO DZIAŁAJĄC

na podstawie art. 38 ust. 1 i 2 ustawy o gospodarce nieruchomościami z dnia 21 sierpnia 1997 r. (Dz.U.2024.1145 t.j.)

Ogłasza VI przetarg ustny nieograniczony na sprzedaż nieruchomości stanowiącej własność Powiatu Żagańskiego





Lp.

Położenie i opis nieruchomości, nr działki, powierzchnia

Księga wieczysta/ obciążenia i zobowiązania

Przeznaczenie w planie zagospodarowania przestrzennego

Cena wywoławcza nieruchomości/ Wadium

Godzina przetargu

1.

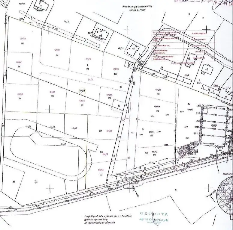
Obręb 0001 miasta Iłowa, ul. Kolejowa (działka nr 494/46 o pow. 0,1768 ha wraz z udziałem 1/14 w działce nr 494/51 o pow. 0,3007 ha)

Działka nr 494/46 (użytek RVI o pow. 0,1615 ha, W-RVI o pow. 0,0153 ha) stanowi nieruchomość gruntową niezabudowaną, niezagospodarowaną, nieogrodzoną, oddzieloną od strony północnej od działek sąsiednich murem z cegły, nieuzbrojoną (sieć wodna, kanalizacyjna i energii elektrycznej przebiega w działce drogi publicznej nr 705 oraz w drodze wewnętrznej stanowiącej działkę nr 494/10). Teren o płaskim ukształtowaniu i regularnym kształcie zbliżonym do trapezu, porośnięty intensywnie roślinnością trawiastą, wzdłuż zachodniej granicy działki zajęty dzikim zadrzewieniem w większości bez wartości użytkowej. W zachodniej części działki pozostałości słupków betonowych i siatki metalowej, rów i elementy przepustu betonowego. Dojazd do drogi publicznej zapewniony będzie przez działkę oznaczoną nr 494/51 stanowiącą drogę wewnętrzną.

KW ZG1G/00013973/3

Nieruchomość będąca przedmiotem sprzedaży obciążona jest trwałym zarządem ustanowionym na rzecz Zespołu Szkół Ponadpodstawowych (poprzednio Ponadgimnazjalnych) w Iłowej. W stosunku do nieruchomości będącej przedmiotem sprzedaży zostanie niezwłocznie wygaszony trwały zarząd na rzecz Zespołu Szkół Ponadpodstawowych w Iłowej po pozytywnym rozstrzygnięciu przetargu.


Dla działki oznaczonej nr 494/51

prowadzona jest Księga Wieczysta nr

ZG1G/00064275/2 – brak obciążeń i

zobowiązań dla zbywanej działki

Brak obowiązującego planu zagospodarowania przestrzennego. W oparciu o zmianę „studium uwarunkowań i kierunków zagospodarowania przestrzennego miasta i gminy Iłowa” uchwalonej przez Radę Miejską w Iłowej w dniu 29.03.2017 r. uchwałą nr 260/7/XXXV/17 działka położona jest na terenie w części oznaczonej symbolem MU jako tereny zabudowy mieszkaniowo – usługowej, zabudowy produkcyjnej oraz usługowej. Dla nieruchomości przed podziałem tj. dla działki nr 494/33 była wydana przez Burmistrza Iłowej decyzja nr 33/2023 o warunkach zabudowy dla inwestycji polegającej na budowie 16 budynków mieszkalnych jednorodzinnych wraz z infrastrukturą techniczną.

Cena wywoławcza:

98 862,00 zł,

do której zostanie doliczony podatek VAT


Wadium:

19 700,00 zł


9.00





2.

Obręb 0001 miasta Iłowa, ul. Kolejowa (działka nr 494/50 o pow. 0,1397 ha wraz z udziałem 1/14 w działce nr 494/51 o pow. 0,3007 ha)

Działka nr 494/50 (użytek RVI o pow. 0,1263 ha, W-RVI o pow. 0,0134 ha) stanowi nieruchomość gruntową zabudowaną budynkiem gospodarczym w złym stanie technicznym – przeznaczonym do rozbiórki (budynek o konstrukcji murowanej z cegły, 1-kondygnacyjny, dach jednospadowy o pow. zabudowy 11 m²), niezagospodarowaną, nieogrodzoną oddzieloną od strony północnej od działek sąsiednich murem z cegły, nieuzbrojoną (sieć wodna, kanalizacyjna i energii elektrycznej przebiega w działce drogi publicznej nr 705 oraz w drodze wewnętrznej stanowiącej działkę nr 494/10). Teren o płaskim ukształtowaniu i regularnym kształcie zbliżonym do prostokąta, porośnięty intensywnie roślinnością trawiastą, w zachodniej części działki zajęty dzikim zadrzewieniem bez wartości użytkowej za wyjątkiem sześciu drzew z gatunku dąb. Dojazd do drogi publicznej zapewniony będzie przez działkę oznaczoną nr 494/51 stanowiącą drogę wewnętrzną.

KW ZG1G/00013973/3

Nieruchomość będąca przedmiotem sprzedaży obciążona jest trwałym zarządem ustanowionym na rzecz Zespołu Szkół Ponadpodstawowych (poprzednio Ponadgimnazjalnych) w Iłowej. W stosunku do nieruchomości będącej przedmiotem sprzedaży zostanie niezwłocznie wygaszony trwały zarząd na rzecz Zespołu Szkół Ponadpodstawowych w Iłowej po pozytywnym rozstrzygnięciu przetargu.


Dla działki oznaczonej nr 494/51

prowadzona jest Księga Wieczysta nr

ZG1G/00064275/2 – brak obciążeń i

zobowiązań dla zbywanej działki

Brak obowiązującego planu zagospodarowania przestrzennego. W oparciu o zmianę „studium uwarunkowań i kierunków zagospodarowania przestrzennego miasta i gminy Iłowa” uchwalonej przez Radę Miejską w Iłowej w dniu 29.03.2017 r. uchwałą nr 260/7/XXXV/17 działka położona jest na terenie w części oznaczonej symbolem MU jako tereny zabudowy mieszkaniowo – usługowej, zabudowy produkcyjnej oraz usługowej. Dla nieruchomości przed podziałem tj. dla działki nr 494/33 była wydana przez Burmistrza Iłowej decyzja nr 33/2023 o warunkach zabudowy dla inwestycji polegającej na budowie 16 budynków mieszkalnych jednorodzinnych wraz z infrastrukturą techniczną.

Cena wywoławcza:

88 123,00 zł,

do której zostanie doliczony podatek VAT


Wadium:

17 600,00 zł


9.30




3.

Obręb 0001 miasta Iłowa, ul. Kolejowa (działka nr 494/52 o pow. 0,1542 ha wraz z udziałem 1/14 w działce nr 494/51 o pow. 0,3007 ha)

Działka nr 494/52 (użytek RVI o pow. 0,1429 ha, W-RVI o pow. 0,0113 ha) stanowi nieruchomość gruntową niezabudowaną, niezagospodarowaną, nieogrodzoną – przy zachodniej granicy działki pozostałości słupków betonowych i siatki metalowej oraz rów melioracyjny, nieuzbrojoną (sieć wodna, kanalizacyjna i energii elektrycznej przebiega w działce drogi publicznej nr 705 oraz w drodze wewnętrznej stanowiącej działkę nr 494/10). Teren o płaskim ukształtowaniu i regularnym kształcie zbliżonym do prostokąta, porośnięty intensywnie roślinnością trawiastą, w północno-zachodniej i zachodniej części działki zajęty dzikim zadrzewieniem bez wartości użytkowej. Dojazd do drogi publicznej zapewniony będzie przez działkę oznaczoną nr 494/51 stanowiącą drogę wewnętrzną.

KW ZG1G/00013973/3

Nieruchomość będąca przedmiotem sprzedaży obciążona jest trwałym zarządem ustanowionym na rzecz Zespołu Szkół Ponadpodstawowych (poprzednio Ponadgimnazjalnych) w Iłowej. W stosunku do nieruchomości będącej przedmiotem sprzedaży zostanie niezwłocznie wygaszony trwały zarząd na rzecz Zespołu Szkół Ponadpodstawowych w Iłowej po pozytywnym rozstrzygnięciu przetargu.


Dla działki oznaczonej nr 494/51

prowadzona jest Księga Wieczysta nr

ZG1G/00064275/2 – brak obciążeń i

zobowiązań dla zbywanej działki

Brak obowiązującego planu zagospodarowania przestrzennego. W oparciu o zmianę „studium uwarunkowań i kierunków zagospodarowania przestrzennego miasta i gminy Iłowa” uchwalonej przez Radę Miejską w Iłowej w dniu 29.03.2017 r. uchwałą nr 260/7/XXXV/17 działka położona jest na terenie w części oznaczonej symbolem MU jako tereny zabudowy mieszkaniowo – usługowej, zabudowy produkcyjnej oraz usługowej. Dla nieruchomości przed podziałem tj. dla działki nr 494/33 była wydana przez Burmistrza Iłowej decyzja nr 33/2023 o warunkach zabudowy dla inwestycji polegającej na budowie 16 budynków mieszkalnych jednorodzinnych wraz z infrastrukturą techniczną

Cena wywoławcza:

87 894,00 zł,

do której zostanie doliczony podatek VAT


Wadium:

17 500,00 zł


10.00




4.

Obręb 0001 miasta Iłowa, ul. Kolejowa (działka nr 494/54 o pow. 0,1692 ha wraz z udziałem 1/14 w działce nr 494/51 o pow. 0,3007 ha)

Działka 494/54 (użytek RVI o pow. 0,1692 ha) stanowi nieruchomość gruntową niezabudowaną, niezagospodarowaną, nieogrodzoną, nieuzbrojoną (sieć wodna, kanalizacyjna i energii elektrycznej przebiega w działce drogi publicznej nr 705 oraz w drodze wewnętrznej stanowiącej działkę nr 494/10). Teren o płaskim ukształtowaniu i regularnym kształcie zbliżonym do prostokąta, porośnięty intensywnie roślinnością trawiastą, częściowo dzikim zadrzewieniem bez wartości użytkowej. Dojazd do drogi publicznej zapewniony będzie przez działkę oznaczoną nr 494/51 stanowiącą drogę wewnętrzną.

KW ZG1G/00013973/3

Nieruchomość będąca przedmiotem sprzedaży obciążona jest trwałym zarządem ustanowionym na rzecz Zespołu Szkół Ponadpodstawowych (poprzednio Ponadgimnazjalnych) w Iłowej. W stosunku do nieruchomości będącej przedmiotem sprzedaży zostanie niezwłocznie wygaszony trwały zarząd na rzecz Zespołu Szkół Ponadpodstawowych w Iłowej po pozytywnym rozstrzygnięciu przetargu.

Dla działki oznaczonej nr 494/51

prowadzona jest Księga Wieczysta nr

ZG1G/00064275/2 – brak obciążeń i

zobowiązań dla zbywanej działki

Brak obowiązującego planu zagospodarowania przestrzennego. W oparciu o zmianę „studium uwarunkowań i kierunków zagospodarowania przestrzennego miasta i gminy Iłowa” uchwalonej przez Radę Miejską w Iłowej w dniu 29.03.2017 r. uchwałą nr 260/7/XXXV/17 działka położona jest na terenie w części oznaczonej symbolem MU jako tereny zabudowy mieszkaniowo – usługowej, zabudowy produkcyjnej oraz usługowej. Dla nieruchomości przed podziałem tj. dla działki nr 494/33 była wydana przez Burmistrza Iłowej decyzja nr 33/2023 o warunkach zabudowy dla inwestycji polegającej na budowie 16 budynków mieszkalnych jednorodzinnych wraz z infrastrukturą techniczną

Cena wywoławcza:

102 043,00 zł,

do której zostanie doliczony podatek VAT


Wadium:

20 400,00 zł

10.30





I przetarg ustny nieograniczony odbył się 01.10.2024 r., 02.10.2024 r., II przetarg ustny nieograniczony odbył się 04.11.2024 r., III przetarg ustny nieograniczony odbył się 19.12.2024 r., IV przetarg ustny nieograniczony odbył się 10.02.2025 r., V przetarg ustny nieograniczony odbył się 31.03.2025 r., VI przetarg ustny nieograniczony odbędzie się 23.05.2025 r. w Starostwie Powiatowym w Żaganiu przy ul. Jana Pawła II 9, pokój nr 104.



Warunkiem przystąpienia do przetargu jest wpłacenie wadium do dnia 19.05.2025 r. w wymaganej wysokości i do tego dnia winno znajdować się na koncie Starostwa Powiatowego w Żaganiu - PKO Bank Polski S.A. 96 1020 5402 0000 0602 0336 8206. Wpłacone wadium przez uczestnika, który wygra przetarg zalicza się na poczet ceny nabycia nieruchomości.



Ogłoszenie o przetargu zostanie umieszczone na tablicy ogłoszeń Starostwa Powiatowego w Żaganiu, na stronie internetowej www.powiatzaganski.pl; www.bip.powiatzaganski.pl; www.monitorurzedowy.pl; W przetargu mogą brać udział osoby fizyczne i osoby prawne jeżeli wpłacą wadium w terminie wyznaczonym w ogłoszeniu przetargu i okażą się dowodem osobistym, który będzie legitymował osobę fizyczną lub w przypadku osoby prawnej dokument potwierdzający wpis do rejestru przedsiębiorców (aktualny odpis z krajowego rejestru sądowego) lub stosowne pełnomocnictwo uprawniające do działania w imieniu osoby fizycznej lub prawnej. Zgodnie z art. 37 ustawy z dnia 25 lutego 1964 r. Kodeks rodzinny i opiekuńczy (Dz.U.2020.1359 t.j.) do dokonania czynności prawnej prowadzącej do zbycia, obciążenia, odpłatnego nabycia lub użytkowania wieczystego nieruchomości, potrzebna jest zgoda drugiego małżonka w przypadku wspólności ustawowej. Ważność umowy, która została zawarta przez jednego z małżonków bez wymaganej zgody drugiego zależy od potwierdzenia umowy przez drugiego małżonka. Brak wyrażenia zgody przez jednego ze współmałżonków przy zawieraniu aktu notarialnego będzie skutkował przepadkiem wniesionego wadium a przetarg czynić się będzie za niebyły. Podmioty będące cudzoziemcami muszą wykazać stosowne zezwolenie wydane w trybie przepisów ustawy z dnia 24 marca 1920 r o nabywaniu nieruchomości przez cudzoziemców. Wylicytowana cena nieruchomości podlega zapłacie w takim terminie, aby najpóźniej w przeddzień zawarcia umowy notarialnej wymagana kwota znajdowała się na koncie Starostwa Powiatowego. Koszty związane ze sporządzeniem umowy notarialnej i opłaty sądowej spoczywają na nabywcy. Niedotrzymanie terminu zawarcia umowy sprzedaży powodują przepadek wadium, a przetarg czyni się za niebyły. O terminie zawarcia umowy sprzedaży w formie aktu notarialnego nabywca zostanie powiadomiony w terminie 21 dni od dnia rozstrzygnięcia przetargu. Wszelkie dodatkowe informacje o przetargu można uzyskać w Starostwie Powiatowym w Żaganiu ul. Jana Pawła II nr 9 pokój 106, tel. 068 477 58 00.



WICESTAROSTA

Mariusz Kurgły



Klauzula informacyjna art. 13 RODO ogłoszenie o przetargu na sprzedaż.

W związku z realizacją zadań wynikających z ustawy o gospodarce nieruchomościami, w tym sprzedaży nieruchomości co związane jest z pozyskiwaniem danych osobowych, uprzejmie informujemy, że:


1) Administratorem danych osobowych, czyli podmiotem decydującym o celach i środkach przetwarzania danych osobowych zawartych we wszelkich dokumentach złożonych w odpowiedzi na niniejsze ogłoszenie (dane oferenta) i pozostałych dokumentach wymaganych do zawarcie umowy po rozstrzygnięciu przetargu jest Starosta Żagański, ul. Dworcowa 39, 68-100 Żagań, tel: 68 477 79 01, mail: starostwo@powiatzaganski.

2) Kontakt z Inspektorem Ochrony Danych w Starostwie Powiatowym w Żaganiu możliwy jest pod adresem email (adres email): [Email protected]

3) Jako Administrator, w celu przeprowadzania kwalifikacji i udziału w przetargu oraz w celu ewentualnego zawarcia umowy dzierżawy/sprzedaży, jej realizacji, dokonywania rozliczeń, windykacji należności i zawarcia innych umów w związku z realizacją tej umowy, a także w celach związanych z obowiązkiem ewidencji korespondencji kierowanej z/do Starostwa Powiatowego w Żaganiu i w celu obowiązku archiwizacji dokumentacji, będziemy przetwarzać dane osobowe zawarte we wszelkich dokumentach złożonych w odpowiedzi na niniejsze ogłoszenie oraz pozostałych dokumentach wymaganych do zawarcie umowy po rozstrzygnięciu przetargu, w związku z realizacją postępowania na podstawie ustawy z dnia 21 sierpnia 1997 r. o gospodarce nieruchomościami (Dz.U. 2024.1145 j. t.) i aktów wykonawczych do niej wydanych, co stanowi o zgodnym z prawem przetwarzaniu danych osobowych w oparciu o przesłanki legalności, o których mowa w art. 6 ust. 1 lit. b i lit. c Rozporządzenia Parlamentu Europejskiego i Rady (UE) 2016/679 z dnia 27 kwietnia 2016 r. w sprawie ochrony osób fizycznych w związku z przetwarzaniem danych osobowych i w sprawie swobodnego przepływu takich danych oraz uchylenia dyrektywy 95/46/WE (ogólne rozporządzenie o ochronie danych) (Dz.U. UE. L. z 2016 r. Nr 119, str. 1) dalej jako RODO.

4) Dane osobowe zawarte we wszelkich dokumentach złożonych w odpowiedzi na niniejsze ogłoszenie i pozostałych dokumentach wymaganych do zawarcie umowy po rozstrzygnięciu przetargu będą przetwarzane przez okres przewidziany przepisami prawa, w tym przez okres przechowywania dokumentacji określony w przepisach powszechnych w zakresie archiwizacji dokumentów

5) Dane osobowe mogą być udostępniane innym podmiotom, jeżeli obowiązek taki będzie wynikać z przepisów prawa. Do danych ww. oferentów i dzierżawcy/nabywcy mogą też mieć dostęp podmioty przetwarzające dane w naszym imieniu, np. podmioty świadczące pomoc prawną, usługi informatyczne, usługi niszczenia dokumentów, archiwizacji, jak również inni administratorzy danych osobowych przetwarzający dane we własnym imieniu, np. podmioty prowadzące działalność pocztową lub kurierską.

6) Zgodnie z RODO, każdej osobie, której dane przetwarzamy w celach określonych powyżej przysługuje: a) prawo dostępu do swoich danych osobowych oraz otrzymania ich kopii; b) prawo do sprostowania (poprawiania) swoich danych osobowych; c) ograniczenia przetwarzania danych osobowych. Zgodnie z RODO, każdej osobie, której dane przetwarzamy przysługuje prawo do wniesienia skargi do Prezesa Urzędu Ochrony Danych Osobowych. Zgodnie z RODO osobom, których dane przetwarzamy w wyżej określonych celach nie przysługuje: a) w związku z art. 17 ust. 3 lit. b, d lub e RODO prawo do usunięcia danych osobowych; b) prawo do przenoszenia danych osobowych, o którym mowa w art. 20 RODO; c) na podstawie art. 21 RODO prawo sprzeciwu, wobec przetwarzania danych osobowych, gdyż podstawą prawną przetwarzania Pani/Pana danych osobowych jest art. 6 ust. 1 lit. c RODO.

7) Podanie przez oferentów danych ma charakter dobrowolny, ale jest niezbędne do udziału w przetargu i zawarcia umowy po jego rozstrzygnięciu, zgodnie z przepisami ustawy z dnia 21 sierpnia 1997 r. o gospodarce nieruchomościami (Dz.U. 2024.1145 j. t.) i aktów wykonawczych do niej wydanych.

8) Starosta nie przewiduje przekazywania danych osobowych do państwa trzeciego (tj. państwa, które nie należy do Europejskiego Obszaru Gospodarczego obejmującego Unię Europejską, Norwegię, Liechtenstein i Islandię), ani do organizacji międzynarodowych.



Kontakt:
Starostwo Powiatowe w Żaganiu
tel: 68 477 58 00
[Email protected]


Ogłoszenie wysłane z programu dla biur nieruchomości ASARI CRM (asaricrm.com)



Lokalizacja
Iłowa
lubuskie
Informacje
Numer oferty: 41761/3186/OGS
Kontakt
AMK Portal Sp. z o.o.
Starostwo Powiatowe w Żaganiu
68 477 58 00

Podobne oferty

 Iłowa   Kolejowa

Działka

Iłowa, Kolejowa

ZARZĄD POWIATU ŻAGAŃSKIEGO DZIAŁAJĄC na podstawie art. 38 ust. 1 i 2 ustawy o gospodarce nieruchomościami z dnia 21 sierpnia...

m2
98 862 zł
 Iłowa   Kolejowa

Przetarg - ul. Kolejowa

Iłowa, Kolejowa

ZARZĄD POWIATU ŻAGAŃSKIEGO DZIAŁAJĄC na podstawie art. 38 ust. 1 i 2 ustawy o gospodarce nieruchomościami z dnia 21 sierpnia...

m2
102 043 zł
 Iłowa   Kolejowa

Przetarg - ul. Kolejowa

Iłowa, Kolejowa

ZARZĄD POWIATU ŻAGAŃSKIEGO DZIAŁAJĄC na podstawie art. 38 ust. 1 i 2 ustawy o gospodarce nieruchomościami z dnia 21 sierpnia...

m2
88 976 zł