3 Pokoje 48m² Wrotków

Lublin

Mieszkanie
48 m2
3 pokoje

449 000 zł

Treść ogłoszenia

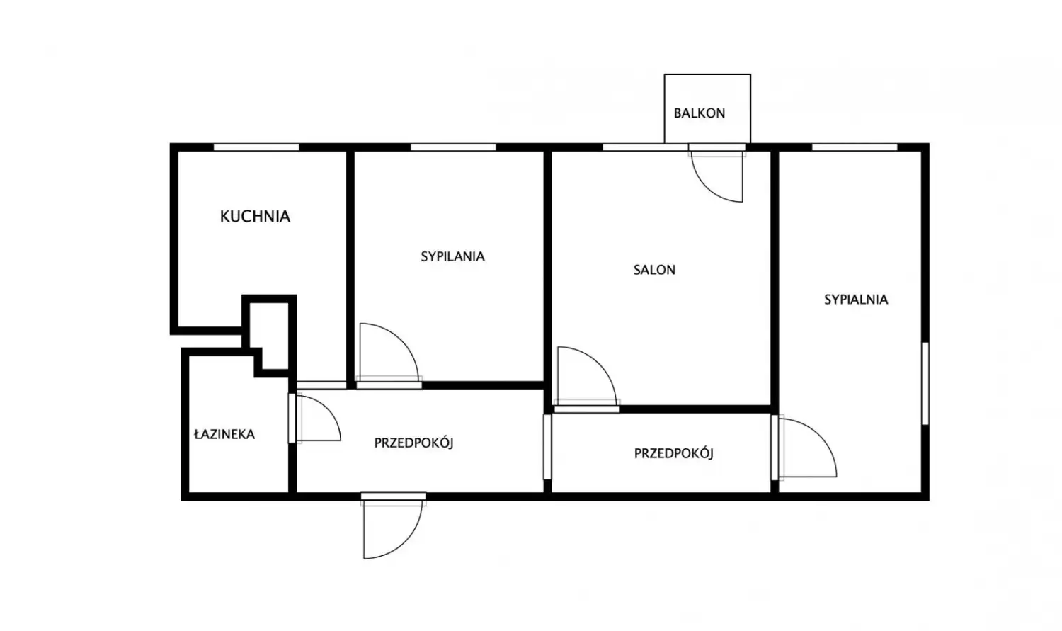
Na sprzedaż trzypokojowe mieszkanie o powierzchni 48 m² usytuowane na 4 piętrze w 10 piętrowym bloku w dzielnicy Wrotków,
przy ul. Samsonowicza.

Idealna lokalizacja dla rodziny lub osób szukających mieszkania na wynajem.
Mieszkanie składa się:
Salon/sypialnia - 10,90 m² z wyjściem balkon - 1,2 m²
Pokój/sypialnia - 9,55 m²
Pokój/sypialnia - 8,80 m²
Kuchnia - 6,10 m²
Łazienka - 2,55 m²
Przedpokój
Do mieszkania przynależy piwnica o pow. około 2 m² oraz balkon
Ciepła woda oraz c.o. z sieci miejskiej (w mieszkaniu brak piecyka gazowego).
Nowa instalacja elektryczna
Czynsz wynosi 500 zł/ 0 osób zgłoszonych (zawiera zaliczkę na C.O., wodę, FR, WŚ). Opłaty dodatkowe prąd i gaz.
W pobliżu niezbędna do życia infrastruktura jak sklepy, markety, szkoły podstawowe, przystanek MPK,
W pobliżu Zalew Zemborzycki.

Forma własności mieszkania: Spółdzielcze Własnościowe z Księga Wieczystą
Mieszkanie wolne od zaraz!!

Zapraszam na prezentację w celu zapoznania się z tą wyjątkową ofertą.
Rafał Grzegorczyk

510 311 630


:: Oferta wysłana z programu mediaRent (media-rent.eu) ::
Lokalizacja
Lublin
dzielnica Wrotków
lubelskie
Informacje
Powierzchnia: 48 m2
3 pokoje
10 pięter w budynku
Rok budowy: 1978
Numer oferty: 5164/BNK/MS-240580
Dojazd
asfalt
Dodatkowe zalety
meble
Wyposażenie
balkon/taras
Kontakt
mai3ja_bnkwadrat
Rafał Grzegorczyk
510 311 630

Podobne oferty

 Lublin

3 pokoje ul .Szeligowskiego ostatnie piętro

Lublin

Trzypokojowe mieszkanie o pow. 62,75 m2 na 5 p w 5 piętrowym bloku przy ul. Szeligowskiego.Zestawienie powierzchni:Pokój dzienny z kuchnią...

62 m2
3 pokoje
699 800 zł
11 287 zł/m2
 Lublin

3 pokoje na Ponikwodzie okolice Dożynkowej 2026r.

Lublin

Trzypokojowe mieszkanie o powierzchni projektowej 65,47 m2 położone na trzecim piętrze w budynku z wystawą okien na zachód i północ....

65 m2
3 pokoje
621 965 zł
9 569 zł/m2
 Lublin

2 pokojowe mieszkanie z ogródkiem deweloperskie

Lublin

Dwupokojowe mieszkanie o powierzchni projektowej 38,53 m2 na parterze / 5 p.Opis mieszkania:-Pokój dzienny z aneksem kuchennym o pow. 18,84...

38 m2
2 pokoje
528 824 zł
13 916 zł/m2