Przestronne Jasne Funkcjonalne Spokojna okolica

Warszawa

Mieszkanie
54 m2
3 pokoje

790 000 zł

Treść ogłoszenia

MDP Partners prezentuje:
Wyjątkowa Oferta!

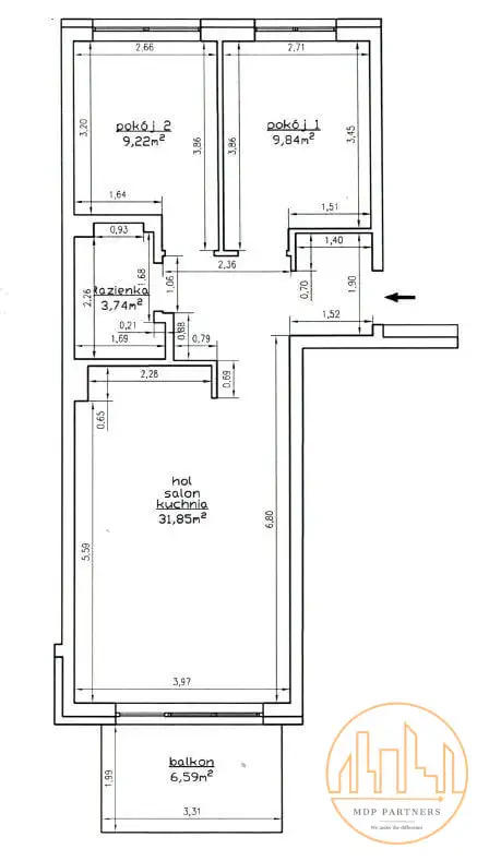
Przestronne, jasne i funkcjonalne 3-pokojowe mieszkanie o powierzchni 54,65m² + balkon, zlokalizowane na warszawskiej zielonej Białołęce..

Kameralne i spokojne osiedle z niską zabudową z 2016r.

Mieszkanie znajduje się na 1 piętrze i składa się z:
✅ Przestronnego salonu
✅ Oddzielnej kuchni w funkcjonalnym układzie z wyposażeniem AGD
✅ Przytulnych dwóch sypialni,
✅ W pełni wyposażonej łazienki z prysznicem,
✅ Praktycznego przedpokoju z szafą,
✅ Balkonu, idealnego na poranną kawę.
____________________________________
Rozkład pokoi zapewnia dużą prywatność i komfort mieszkania.

Dodatkowe udogodnienia:
*2xMiejsce parkingowe w garażu podziemnym (40.000PLN/szt) zakup nie obligatoryjny

Idealne dla rodziny z dziećmi lub jako inwestycja kapitału.

Stan prawny: Pełna własność z KW (można posiłkować się kredytem przy zakupie mieszkania)

Pierwotnie mieszkanie miało połączony salon z aneksem kuchennym, ale właściciel postawił ścianę wydzielając osobno kuchnię. Jest możliwość powrotu do stanu początkowego.

OKOLICA:
Wszystkie potrzebne punkty w okolicy. Piękne tereny gdzie możesz spacerować, jeździć na rowerze czy po prostu cieszyć się spokojem natury. W najbliższej odległości znajdują się:
przystanki autobusowe, sklep Lewiatan, sklep ogólnospożywczy, apteka, przedszkola i żłobki, szkoła podstawowa, przychodnia, i inne. Wygodny dojazd do metra Kondratowicza, metra Bródno oraz Centrum Handlowego Targówek, IKEA, Decathlon.

Wjazd na osiedle przez szlaban. Teren monitorowany wraz z garażem podziemnym. Strefa zielona wokół budynku utrzymywana przez ogrodnika. Plac zabaw zamknięty z dostępem tylko dla mieszkańców budynku.

Cena do negocjacji!

Zapraszamy do kontaktu i na prezentację:
Jakub Karwowski | MDP Partners

MDP Partners oferuje nabywcom obsługę prawną transakcji i jej bezpieczną finalizację, oraz pomoc w sfinansowaniu każdego rodzaju nieruchomości.
Lokalizacja
Warszawa
dzielnica Białołęka kobiałka
mazowieckie
Informacje
Powierzchnia: 54 m2
3 pokoje
3 piętra w budynku
Rok budowy: 2016
Numer oferty: 284299
Zalety
domofon
Media
kanalizacja
Wyposażenie
balkon/taras
Kontakt
MDP Partners
Jakub Karwowski
531 620 270

Podobne oferty

 Warszawa   Saska

Apartament w kamienicy 92 m² Stara Saska Kępa

Warszawa, Saska

Tylko w Infinity Space, oferta na wyłączność!Mam przyjemność zaprezentować Państwu apartament o powierzchni 92 m2, znajdujący się na ostatniej kondygnacji...

92 m2
4 pokoje
2 392 000 zł
26 000 zł/m2
 Warszawa

cicha okolica blisko promenada garaż

Warszawa

MDP Partners prezentuje: Nowoczesne, świeżo odświeżone mieszkanie 2-pokojowe na Gocławiu - ul. Mariana PisarkaNa sprzedaż jasne i ciche mieszkanie o...

52 m2
2 pokoje
892 000 zł
17 154 zł/m2
 Warszawa

dwa pokoje dostępne od zaraz

Warszawa

For EN version please scroll down, zapraszam do telefonicznego umawiania spotkań, również w dniu otwartym, kupujący nie płacą prowizji! 2-pokojowe...

43 m2
2 pokoje
650 250 zł
15 122 zł/m2