Dom wolnostojacy 5 pokoi Ciecierzyn

Niemce

Dom
160 m2
5 pokoi

939 000 zł

Treść ogłoszenia

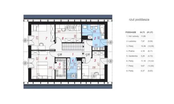
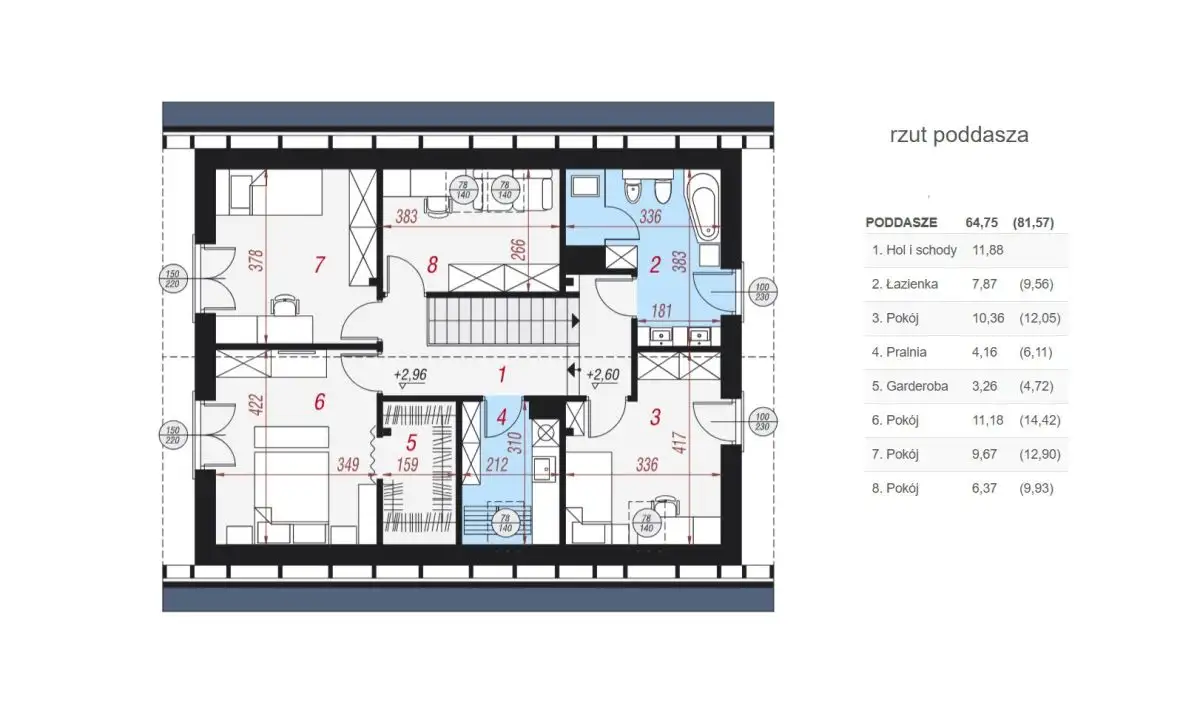
Dom wolnostojący 5 pokoi wybudowany i wyposażony w wysokim standardzie deweloperskim. Termin oddania lipiec 2025. Powierzchnia 160 m² na działce 500 m². w gminie Niemce, woj. lubelskie.
Parter:
- Salon z aneksem kuchennym i wyjściem na taras
- Toaleta
- Wiatrołap
- Kotłownia ze spiżarką
- Garaż na 1 samochód
Piętro
- 4 sypialnie w tym jedna z garderobą
- Duża łazienka
- Pralnia
- Hol
Ponadto
- Rekuperacja
- Klimatyzacja
- Zasilenie pod fotowoltaikę
- Światłowód
- Podjazd i opaska z kostki brukowej
- Dach - blachodachówka grafitowa
- Droga dojazdowa utwardzona ( udział w drodze )
- Instalacje: antenowa, internetowa, klimatyzacja, pod fotowoltaikę.
Media
Prąd z ,,siłą", ogrzewanie - pompa ciepła, wodociąg, szambo.

Ofertę przygotowała i prezentuje:
Urszula Daniewska 663 689 910
Franczewska Nieruchomości

Zapraszam do kontaktu oraz na prezentację nieruchomości!

Treść niniejszego ogłoszenia nie stanowi oferty handlowej w rozumieniu Kodeksu Cywilnego, ale jest zaproszeniem do współpracy. Zespół ekspertów z Franczewska Nieruchomości dokłada starań, aby każda z ofert była rzetelnie sprawdzona oraz aktualna.
Jako agencja nieruchomości pobieramy za usługę pośrednictwa wynagrodzenie. Usługa jest wykonywana w profesjonalny sposób i zapewnia Państwu pełne bezpieczeństwo. Więcej unikalnych ofert w podobnych kryteriach znajdą Państwo na naszej stronie.






Lokalizacja
Niemce
lubelskie
Informacje
Powierzchnia: 160 m2
5 pokoje
1 piętro w budynku
Rok budowy: 2025
Numer oferty: 939738
Ogrzewanie
pompa ciepła
Ogrodzenie
siatka
Kontakt
FRANCZEWSKA NIERUCHOMOŚCI ADRIANNA FRANCZEWSKA-KRUPA SPÓŁKA KOMANDYTOWA
Urszula Daniewska
663 689 910

Podobne oferty

 Niemce

DOM - 6 POKOI - DZIAŁKA 1800 m - NIEMCE

Niemce

Do sprzedania dom (171,40 m2 powierzchni użytkowej) z 2008 roku w miejscowości Niemce, posadowiony na działce o powierzchni 1800 m2....

242 m2
6 pokoi
899 000 zł
3 715 zł/m2
 Niemce

Dom wolnostojacy 5 pokoi Ciecierzyn

Niemce

Dom wolnostojący 5 pokoi wybudowany i wyposażony w wysokim standardzie deweloperskim. Termin oddania lipiec 2025. Powierzchnia 160 m2 na działce...

160 m2
5 pokoi
939 000 zł
5 869 zł/m2
 Niemce

Nowy dom 5 pokoi Niemce Ciecierzyn

Niemce

Dom w zabudowie bliźniaczej 5 pokoi ( lewa połowa ) wybudowany i wyposażony w wysokim standardzie deweloperskim. Termin oddania lipiec...

146 m2
5 pokoi
860 000 zł
5 890 zł/m2