Lokal handlowo-usługowy 126m² - oddzielne wejście

Ostróda , Jana Pawła Ii

Komercyjne
126 m2

720 000 zł

Treść ogłoszenia

Atrakcyjnie położony lokal z prywatnym wyjściem na zewnątrz w Galerii Mazurskiej

Lokalizacja:
Galeria Mazurska - największa galeria w centrum Ostródy, położona przy ruchliwej ulicy, blisko przystanki komunikacji miejskiej, stacja kolejowa, bulwary nad jeziorem. Pełna infrastruktura piesza wraz punktami spotkań i rekreacji.

„Galeria Mazurska” to około 50 sklepów i ponad 17 000 m² powierzchni. Znajduje się tu także Aquapark, duży supermarket i kręgielnia. Galeria przez cały rok przyciąga rzesze mieszkańców i turystów. Na dolnym poziomie znajduje się 180 miejsc parkingowych i więcej na ulicach

Nieruchomości:
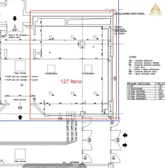
Lokal zlokalizowany jest na poziomie galerii głównej, bezpośrednio przy jednych z głównych drzwi galerii. Przestrzeń jest dobrze zlokalizowana na krzyżówce dwóch alejek i posiada duże okna z dwóch stron z ponad standardową możliwością ekspozycji reklamy oraz dodatkowo dużą witrynę wychodzące na ulicę z drzwiami zewnętrznymi. Prywatne wyjście na ulicę daje dodatkowe możliwości otwarcia lokalu poza godzinami działania galerii.
Całkowita powierzchnia wynosi 127 m². Można w nim prowadzić dowolną działalność gospodarczą. Otwarta przestrzeń pozwala na dowolną adaptację.
Ogrzewanie, nawiewne z klimakonwektorów, (funkcja chłodzenia i ogrzewania)

Status własności: Pełna własność z KW wraz z prawem własności w gruncie na którym stoi galeria.
Lokal jest wynajmowany, możliwość przejęcia umowy najmu.

Cena: 720.000 zł do negocjacji
Cena/m²: 5700 zł/m² 

Zapraszam do kontaktu
533021120
[Email protected]
Lokalizacja
Ostróda
warmińsko-mazurskie
Informacje
Powierzchnia: 126 m2
Rok budowy: 2013
Numer oferty: 114423
Umiejscowienie
centrum handlowe
Kontakt
Trygon Nieruchomości
Przemysław Daćko
533021120

Podobne oferty

 Ostróda

Lokal na sprzedaż

Ostróda

Oferuję na sprzedaż lokal użytkowy o powierzchni 148,2m2 znajdujący się na parterze budynku mieszkalno-usługowego przy ulicy Zamkowej w Ostródzie. Budynek...

148 m2
750 000 zł
5 068 zł/m2
 Ostróda   Jana Pawła Ii

Lokal handlowo-usługowy 126m² - oddzielne wejście

Ostróda, Jana Pawła Ii

Atrakcyjnie położony lokal z prywatnym wyjściem na zewnątrz w Galerii MazurskiejLokalizacja:Galeria Mazurska - największa galeria w centrum Ostródy, położona przy...

126 m2
699 000 zł
5 548 zł/m2
 Ostróda   Jana Pawła Ii

Lokal usługowy 126m² - oddzielne wejście

Ostróda, Jana Pawła Ii

PRYWATNA LICYTACJA, LOKAL JEST WOLNY OD ZADŁUŻEŃ I JAKICHKOLWIEK OBCIĄŻEŃ - KSIĘGA WIECZYSTA CZYSTA.CENA WYWOŁAWCZA 400000 ZŁZAPRASZAM DO ZŁOŻENIA OFERTYWŁAŚCICIEL...

126 m2
400 000 zł
3 175 zł/m2