Duży dom wolnostojący 15km od Centrum Poznania

Garby

Dom
212 m2
7 pokoi

1 350 000 zł

Treść ogłoszenia

Wiejskie powietrze zaledwie 15km od Starego Browaru, obietnica ciszy i bliskości natury.
Obecny stan budynku to surowy otwarty. Bryła czeka na klienta, żeby dopasować do jego indywidualnych sugestii. Deweloper zobowiązuje się do oddania kluczy w przeciągu roku od podpisania umowy wstępnej.
Wokół tereny zielone, spokojna okolica. Na ogrodzonym terenie stoją tylko 3 domy. Dolina Michałówki w podpoznańskich Garbach to jedna z tych idyllicznych enklaw, otoczonych lasem i kojącą zielenią. 
Przystanek autobusowy w odległości 1000m od domu.
Dom z elektrycznymi roletami i fotowoltaiką. Wykorzystanie pompy ciepła (centralne ogrzewanie i woda), ogrzewanie podłogowe w całym domu.
Parter: wyjątkowa strefa dzienna, wyposażona w liczne przeszklenia z wyjściem na ogród, otwarta kuchnia płynnie połączona z jadalnią o łącznej powierzchni prawe 55 m², dodatkowa sypialnia, garderoba i łazienka, a także wiatrołap prowadzący do garażu oraz pomieszczenia gospodarczego.
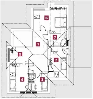
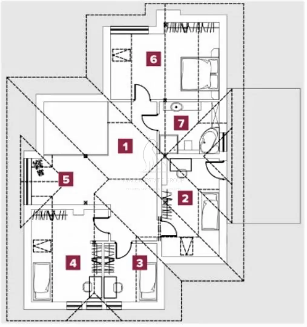
Piętro: 4 ustawne sypialnie, łazienka oraz otwarta przestrzeń na gabinet.
Budynki budowane są w technologii tradycyjnej - ściany murowane z pustaków ceramicznych/silikatowych.
Ocieplenie ścian styropianem o grubości 20cm , poniżej powierzchni terenu ze styropianu XPS.
Pokrycie dachów dachówką ceramiczną - docieplenie wełną o grubości 25 cm pomiędzy krokwiami.
Elewacje wykończone zostaną tynkiem cienkowarstwowym silikonowym.
Kolorystyka budynków utrzymana będzie z przewagą bieli - elewacja i antracytu/szarego - okna, kominy, dachówka, fragmenty elewacji.
Teren na zewnątrz budynków ogrodzony z 3 stron płotem panelowym (oprócz strony frontowej), podjazdy, ścieżki i taras wyłożony z kostki brukowej.
Wykończenia wnętrza obejmuje m.in.: tynki maszynowe gipsowe, instalacje elektryczne z osprzętem, rozprowadzona instalacja RTV/internetowa.
Lokalizacja
Garby
wielkopolskie
Informacje
Powierzchnia: 212 m2
7 pokoje
2 piętra w budynku
Rok budowy: 2025
Numer oferty: 285002
Ogrzewanie
pompa ciepła
Kontakt
Etalon Estate Group
Natalia Zaitseva
+48 602 280 084