2 Pokoje 49 m² Winda Balkon Świdnik

Świdnik

Mieszkanie
49 m2
2 pokoje

375 000 zł

Treść ogłoszenia

Na sprzedaż 2 pokojowe mieszkanie o powierzchni 49 m² w Świdniku.
Mieszkanie znajduję się w wieżowcu, usytuowane na 6 piętrze z 10. Blok z 1975 r., wyposażony w 3 windy.
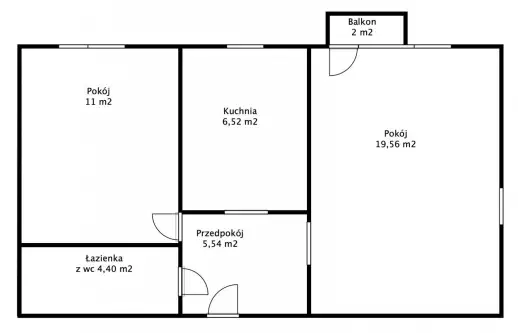
W powierzchni 49 m² znajduję się :
- Salon - 19,56 m²
- Kuchnia 6,52 m²
- Oddzielna sypialnia - 11 m²
- Przedpokój - 5,54 m²
- Łazienka z WC - 4,40 m²

Do mieszkania przynależy piwnica o pow. 3,40 m²
Czynsz w wysokości 550zł/2os.

W pobliżu Galeria Venus, szkoły, sąd, apteki, Biedronka
JEŻELI SZUKASZ FINANSOWANIA TEGO MIESZKANIA, WSPÓŁPRACUJĘ ZE SKUTECZNYM DORADCĄ KREDYTOWYM,
USŁUGA KREDYTOWA JEST BEZPŁATNA.
Zapraszam na prezentacje.
Remigiusz Baran
514807941



:: Oferta wysłana z programu mediaRent (media-rent.eu) ::
Lokalizacja
Świdnik
lubelskie
Informacje
Powierzchnia: 49 m2
2 pokoje
10 pięter w budynku
Rok budowy: 1975
Numer oferty: 5092/BNK/MS-240443
Zalety
domofon
Dodatkowe zalety
meble
Wyposażenie
lodówka
pralka
balkon/taras
Kontakt
mai3ja_bnkwadrat
Remigiusz Baran
514807941

Podobne oferty

Mieszkanie

Świdnik, 3 Maja

Świdnik, dnia 04.12.2023 r. WINP.7125.4.2023 Burmistrz Miasta Świdnik ogłasza drugi przetarg ustny nieograniczony 1. Na sprzedaż lokalu mieszkalnego nr 30,...

42 m2
2 pokoje
235 000 zł
5 595 zł/m2
 Świdnik

2 Pokoje 48 m² Świdnik Centrum

Świdnik

OFERTA TYLKO U NAS W BIURZE! Na sprzedaż 2 pokojowe mieszkanie o powierzchni 48 m2, usytuowane na 2 piętrze w...

48 m2
2 pokoje
360 000 zł
7 500 zł/m2
 Świdnik   Niepodległości

Mieszkanie

Świdnik, Niepodległości

Burmistrz Miasta Świdnik ogłasza pierwszy przetarg ustny nieograniczony 1. Na sprzedaż lokalu mieszkalnego nr 12 o powierzchni użytkowej 51,40 m2,...

51 m2
2 pokoje
305 000 zł
5 980 zł/m2