Nieruchomość na biznes czy mieszkanie w Centrum?

Lublin

Komercyjne
75 m2

944 375 zł

Treść ogłoszenia

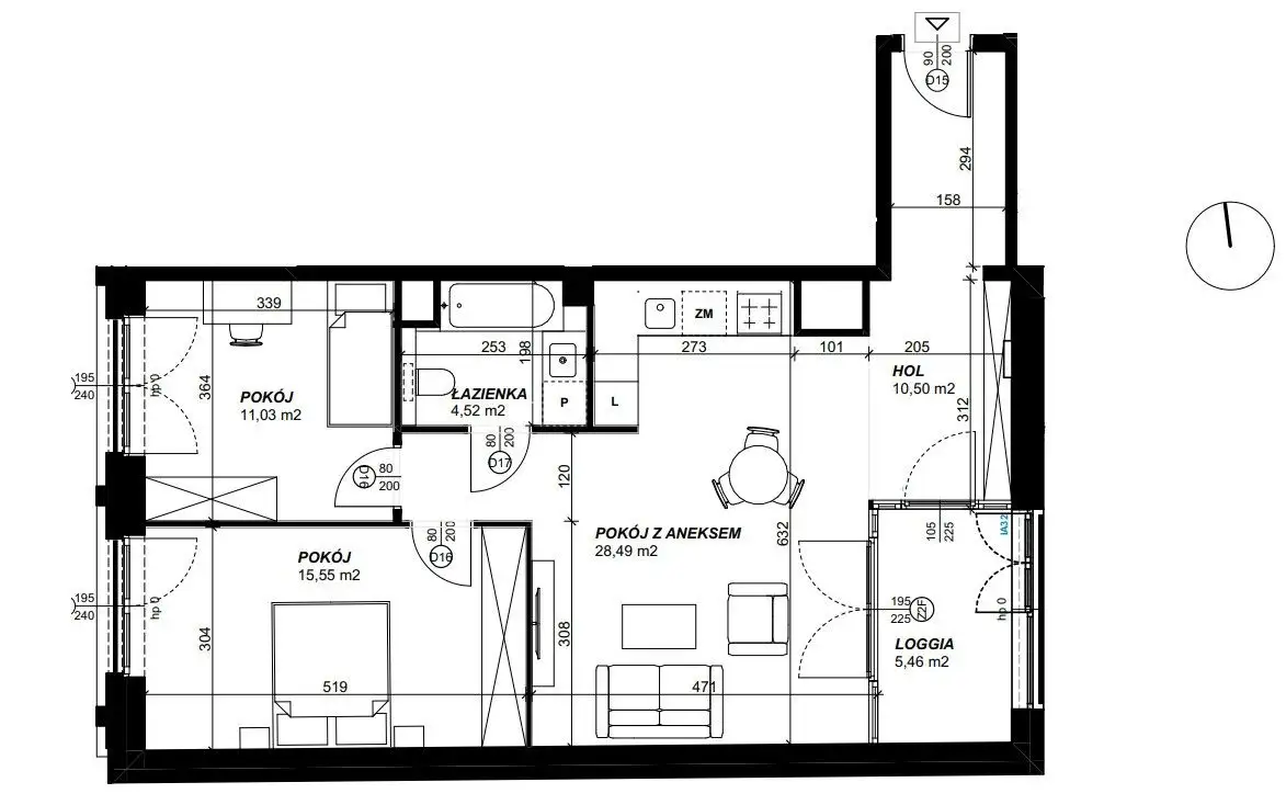
Lokal mieszkalny który może pełnić funkcję lokalu usługowego o pow. 75,55 m² na II p./VIII p.
Lokal mieszkalny posiada przyłącza pod klimatyzację, ogrzewanie podłogowe oraz panoramiczne okna.

Zestawienie powierzchni:
-Pomieszczenie o pow. 28,5 m² z aneksem kuchennym i loggią 5,5 m²
-Pomieszczenie o pow. 11,03 m²,
-Pokój o pow. 15,55 m²,
-Łazienka o pow. 4,52 m²,
-Hol o pow. 10,50 m²,

Miejsce postojowe w parkingu podziemnym w cenie 99000 zł 

Wystawa okien - wschód i zachód 
Ponadczasowa, a zarazem nowoczesna architektura o wysokim standardzie wykończenia obejmująca budynek o 9 kondygnacjach nadziemnych i 3 podziemnych, z 2 windami, patio oraz eleganckimi klatkami schodowymi, sięgającymi 2 pięter.

Media:
Ogrzewanie i ciepła woda z sieci miejskiej, prąd, w każdym mieszkaniu klimatyzacja.

Istnieje możliwość wykończenia mieszkania/lokalu ‘pod klucz’ za dodatkową opłatą.

Atuty inwestycji:
- wysoki standard wykończenia
- stolarka aluminiowa
- ogrzewanie podłogowe
- klimatyzacja z jednostkami na dachu
- energooszczędne oświetlenie led
- niektóre lokale posiadają balkony lub tarasy  
- teren inwestycji monitorowany całodobowo
- w każdym mieszkaniu videdomofon
- instalacja tv i internetowa w każdym pokoju 
- sąsiedztwo Ogrodu Saskiego, Centrum Spotkania Kultur, Placu Litewskiego, galerii handlowych, banków, restauracji, instytucji publicznych i kulturalnych.

Ofertę przygotowała i prezentuje:
Patrycja Czarnik 791-689-906
Licencjonowany Pośrednik Nieruchomości
Franczewska Nieruchomości


Zapraszam do kontaktu oraz na prezentację nieruchomości!

Treść niniejszego ogłoszenia nie stanowi oferty handlowej w rozumieniu Kodeksu Cywilnego, ale jest zaproszeniem do współpracy. Dokładamy wszelkich starań, aby każda z ofert była rzetelnie sprawdzona oraz aktualna.
Więcej unikalnych ofert w podobnych kryteriach znajdą Państwo na naszej stronie.

Lokalizacja
Lublin
dzielnica śródmieście
lubelskie
Informacje
Powierzchnia: 75 m2
8 pięter w budynku
Rok budowy: 2024
Numer oferty: 873980447
Umiejscowienie
centrum handlowe
Kontakt
FRANCZEWSKA NIERUCHOMOŚCI ADRIANNA FRANCZEWSKA-KRUPA SPÓŁKA KOMANDYTOWA
Patrycja Czarnik
791 689 906

Podobne oferty

 Lublin

Budynek biurowo-magazynowy 550m² Felin

Lublin

Na wynajem budynek biurowo-magazynowy w świetnej lokalizacji na osiedlu Felin, blisko Felicity. Powierzchnia lokalu wynosi 550,50 m2. budynek parterowy, biurowy...

550 m2
22 pokoi
1 150 000 zł
2 091 zł/m2

Okazja dwupoziomowe mieszkanie lokal usługowy

Lublin, Godebskiego

Lublin, ul. Godebskiego (Wieniawa) Powierzchnia: 147,24 m² (parter + poziom -1 z oknami) Cena: 1 198 000 PLN Metrohouse prezentuje...

147 m2
1 168 000 zł
7 946 zł/m2
 Lublin

Lokal na parterze witryny w centrum 70m² - Lublin

Lublin

Unikalny lokal na sprzedaż, zlokalizowany na parterze nowoczesnego apartamentowca w prestiżowej, centralnej części Lublina. To idealna propozycja dla przedsiębiorców, którzy...

70 m2
953 100 zł
13 616 zł/m2