Warsztat z halą i biurem Olsztyn ul. Tracka 5

Olsztyn , Tracka

Komercyjne
207 m2

799 000 zł

Treść ogłoszenia

Na sprzedaż funkcjonalna nieruchomość o powierzchni użytkowej około 207 m², położona w dobrze skomunikowanej, przemysłowej części Olsztyna – przy ul. Tracka 5.
Budynek parterowy, przystosowany do działalności warsztatowej, z pełnym zapleczem technicznym, biurowym i magazynowym.
Obiekt jest obecnie wynajmowany jako warsztat samochodowy z czterema stanowiskami serwisowymi (sprzedaż bez wyposażenia warsztatowego).
Stan techniczny budynku oraz jego układ pozwalają na kontynuację działalności lub nową adaptację – bez konieczności ponoszenia dodatkowych nakładów inwestycyjnych.

LOKALIZACJA:
Nieruchomość zlokalizowana jest przy ul. Tracka 5 w Olsztynie, w części miasta o ugruntowanej funkcji handlowo-usługowo-produkcyjnej, gdzie działają liczne warsztaty, hurtownie, zakłady techniczne i serwisy.
Dojazd do nieruchomości odbywa się drogą asfaltową, z końcowym odcinkiem wykonanym z płyt betonowych – umożliwiającym swobodny wjazd również dla pojazdów dostawczych i serwisowych.
Dojazd z centrum miasta zajmuje około 10 minut. Przed budynkiem znajduje się utwardzony plac z możliwością parkowania nawet 10 samochodów.

NIERUCHOMOŚĆ:
Budynek parterowy o powierzchni użytkowej około 207 m² znajduje się na działce o powierzchni 383 m². Teren obejmuje zabudowę oraz utwardzony podjazd z przodu budynku, przystosowany do codziennej obsługi serwisowej – z wygodnym dojazdem i manewrowaniem dla pojazdów klientów.
Obiekt został wybudowany w 1976 roku, a w 2015 roku przeszedł kompleksową modernizację, która objęła m.in. wymianę instalacji, modernizację wnętrz, remont elewacji oraz przystosowanie przestrzeni do współczesnych standardów użytkowych.

Lokal charakteryzuje się przejrzystym i praktycznym układem, który został zaadaptowany z myślą o działalności warsztatowej. Jednocześnie jego rozkład oraz infrastruktura techniczna dają szerokie możliwości adaptacyjne – sprawdzi się także jako siedziba firmy usługowej, niewielka produkcja czy przestrzeń magazynowa.

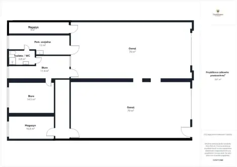
UKŁAD POMIESZCZEŃ: Dwie hale warsztatowe – po około 70 m² każda
Biuro – 14,5 m²
Drugie biuro – 11,9 m²
Pomieszczenie socjalne – 12 m²
Magazyn 1 – 8 m²
Magazyn 2 – 16,8 m²
Toaleta / WC – 3,8 m²

Każda hala posiada osobną bramę wjazdową o dużym świetle, co umożliwia pracę z pojazdami osobowymi, dostawczymi.

MEDIA I INSTALACJE: Prąd trójfazowy (siła)
Woda i kanalizacja miejska
Ogrzewanie olejowe
Internet
Monitoring


INFORMACJE DODATKOWE: Forma własności: budynek stanowi pełną własność
Grunt: użytkowanie wieczyste
Księga wieczysta: prowadzona, bez obciążeń
Udział w drodze dojazdowej: tak
Dostępność: lokal dostępny po okresie wypowiedzenia umowy najmu

MOŻLIWOŚĆ ZAKUPU DWÓCH SĄSIADUJĄCYCH LOKALI!
Prezentowany lokal bezpośrednio sąsiaduje z drugim, również dostępnym w sprzedaży. Istnieje możliwość zakupu obu budynków – łącznie ponad 400 m² powierzchni użytkowej i niemal 1100 m² terenu.
Drugi lokal stanowi niezależny obiekt produkcyjno-usługowy po kapitalnym remoncie, wyposażony w hale, biura, zaplecze socjalne oraz dwustanowiskowy garaż blaszany na utwardzonym placu. To wyjątkowa okazja dla inwestorów lub firm szukających kompleksowego zaplecza operacyjnego w jednej lokalizacji.

Zapraszamy do kontaktu i umówienia się na prezentację.
Z przyjemnością odpowiem na wszystkie pytania i pomogę w przeprowadzeniu bezpiecznej i sprawnej transakcji.
Oferta dostępna wyłącznie w naszym biurze – TreeHouse Nieruchomości.
Współpracujemy również z innymi agencjami.

Opiekun oferty:
Adrian Gazda
Tel. 668 490 115
E-mail: [Email protected]




TreeHouse Nieruchomości - Skuteczna Sprzedaż Nieruchomości
ul. Kotańskiego 1, lok. 102, 10-166 Olsztyn
[Email protected]
www.treehouse-nieruchomosci.pl

TreeHouse Nieruchomości - nr 1 w województwie warmińsko-mazurskim w konkursie Lider Otodom 2022


"Niniejsze ogłoszenie nie stanowi oferty w rozumieniu art. 66 par. 1 Kodeksu Cywilnego i ma jedynie charakter informacyjny.
Właścicielem ogłoszenia oraz poszczególnych jego elementów jest TreeHouse Nieruchomości oraz podmioty z nim współpracujące. Wszelkie prawa są zastrzeżone. Kopiowanie, rozpowszechnianie oraz korzystanie z niniejszych materiałów w jakikolwiek inny sposób wykraczający poza dozwolony użytek określony przepisami ustawy z 4 lutego 1994 r. o prawie autorskim i prawach pokrewnych (Dz. U. 1994, nr 24 poz. 83 z późn. zm.) bez pisemnej zgody TreeHouse Nieruchomości lub podmiotów współpracujących jest zabronione i może stanowić podstawę odpowiedzialności cywilnej oraz karnej."

Ogłoszenie wysłane z programu dla biur nieruchomości ASARI CRM (asaricrm.com)



Lokalizacja
Olsztyn
warmińsko-mazurskie
Informacje
Powierzchnia: 207 m2
1 piętro w budynku
Rok budowy: 1976
Numer oferty: 24/12272/OLS
Kontakt
TreeHouse Nieruchomości Spółka z ograniczoną odpowiedzialnością
Adrian Gazda
668490115

Podobne oferty

 Olsztyn   1 Maja

Lokal na sprzedaż

Olsztyn, 1 Maja

Cena Pierwotna - 990.000zł Lokal 500 metrów do Wysokiej bramy z dwoma wejściami, miejscem w halii garażowej i ładnej okolicy,...

104 m2
1 pokój
927 113 zł
8 915 zł/m2
 Olsztyn   Henryka Sienkiewicza

Klimatyczne mieszkanie z potencjałem

Olsztyn, Henryka Sienkiewicza

Klimatyczne i niepowtarzalne mieszkanie, które urządzisz według własnego pomysłu! Idealnie sprawdzi się jako mieszkanie dla pary bądź rodziny, ale także...

51 m2
3 pokoje
349 000 zł
6 843 zł/m2
 Olsztyn   Jacka Kuronia

Lokal w Olsztynie ul. Kuronia 4

Olsztyn, Jacka Kuronia

Wyjątkowa oferta w Olsztynie!  Na sprzedaż lokal usługowy nr 4 położony w budynku byłych koszar. Budynek po generalnej modernizacji w...

33 m2
2 pokoje
299 000 zł
9 061 zł/m2