Węglin piękne 3 pokoje ogródek 100m²

Lublin

Mieszkanie
56 m2
3 pokoje

793 900 zł

Treść ogłoszenia

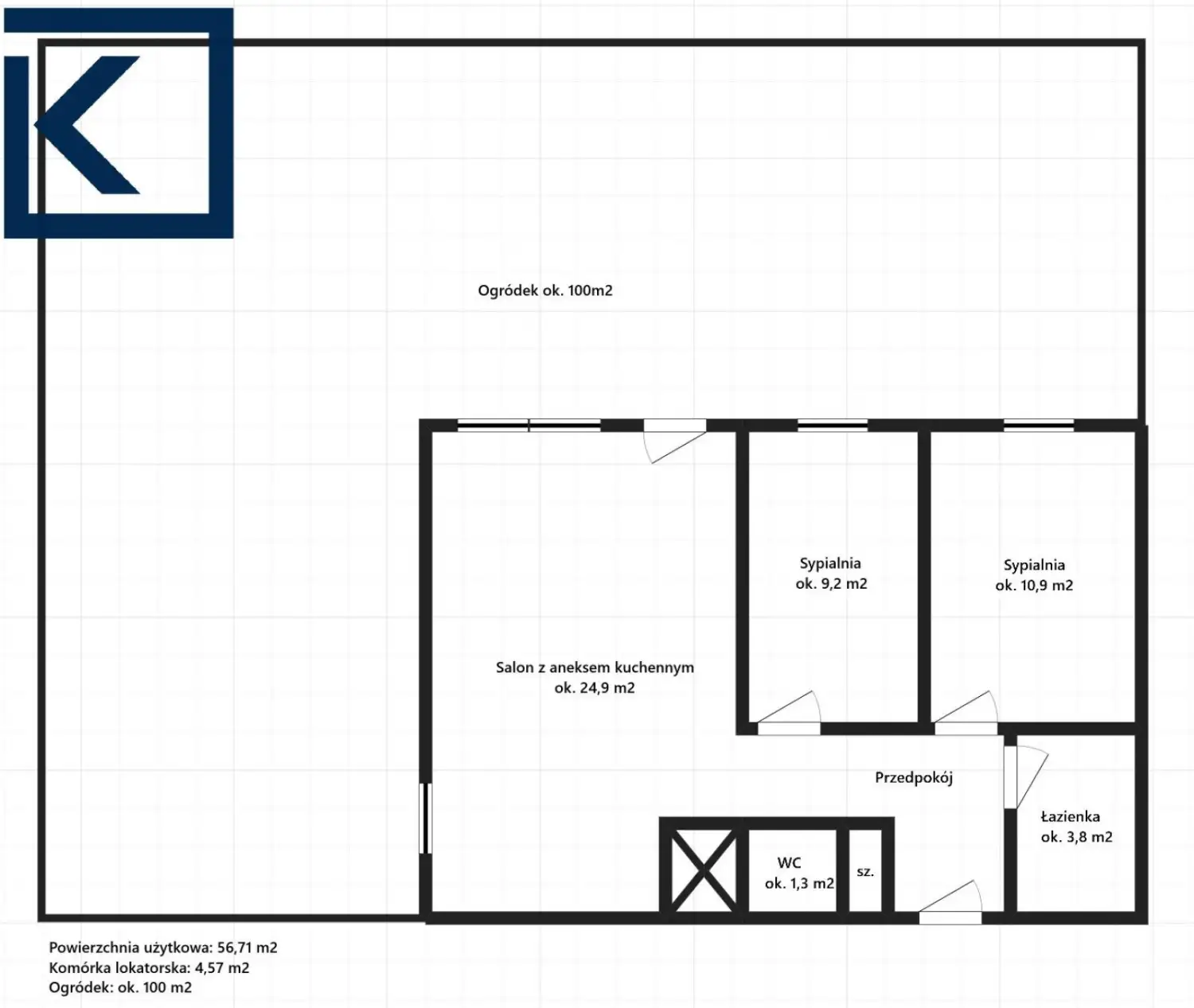
Oferowana nieruchomość to wyjątkowo eleganckie, 3-pokojowe mieszkanie na Węglinie Południowym niewymagające dodatkowych nakładów finansowych.
Mieszkanie z niemal 100-metrowym ogródkiem, wygodnym miejscem postojowym w garażu podziemnym i przestronną komórką lokatorską.

Zapraszam do zapoznania się ze szczegółami:

Powierzchnie: mieszkanie mierzy 56,71 m² i znajduje się na parterze (p. 0/3) bloku z 2019r. z windą; na powierzchnię składają się: salon z aneksem kuchennym, dwie ustawne sypialnie, łazienka z WC, osobna toaleta, przedpokój z pojemną szafą wnękową. Ogródek o powierzchni prawie 100m² stanowi miejsce wypoczynku i zabawy. Mieszkanie zapewnia sporo prywatności - najbliższe okna sąsiedniej nieruchomości w odległości 24m.

Standard wykończenia: zastosowano wysokiej jakości materiały oraz meble, stylowe żyrandole, podłogi wyłożone panelem i gresem szkliwionym, gładzie i sztukateria na ścianach, okna PCV, płytki lustrzane i zabudowa w kuchni (w tym piekarnik, zmywarka, lodówka, okap i płyta indukcyjna), łazienka: wanna z prysznicem i deszczownicą, pralka i suszarka. Rolety wewnętrzne i zewnętrzne. Wyposażenie wraz z meblami, na życzenie, mogą pozostać w mieszkaniu (bez rzeczy osobistych i tv).

Przynależności:
- miejsce postojowe w garażu podziemnym - pierwsze od wyjścia z klatki schodowej, o powierzchni 13,18 m², dodatkowo płatne 60 tys. zł,
- komórka lokatorska o powierzchni 4,57 m² , z półkami i regałami, w cenie 10 tys. zł.

Opłaty eksploatacyjne: przewidywany czynsz przy 2 osobach, łącznie z opłatą za miejsce postojowe, ok. 1000 zł, w czynszu m. in. zaliczki na ciepłą i zimną wodę oraz ogrzewanie centralne z sieci LPEC, fundusz remontowy, wywóz śmieci, eksploatacja stacji uzdatniania wody i in. Dodatkowo płatne media to prąd, ew. internet etc. Brak gazu w mieszkaniu.

Stan prawny: lokal stanowiący odrębną nieruchomość, brak wpisów w dziale III i IV księgi wieczystej, tj. brak służebności, hipotek i in.

Okolica: ciche osiedle w nowoczesnym budownictwie, z placem zabaw, wjazdem na szlaban. W pobliżu liczne obiekty usługowe, w tym gastronomia - m. in.pizzeria, kawiarnia, garmażerka, piekarnia, sklepy typu Stokrotka, Żabka, Biedronka, apteka, paczkomat, Szkoła Podstawowa nr 58 przy ul. Berylowej. Szybki dojazd do obwodnicy Lublina, do najbliższego przystanku komunikacji miejskiej kilka minut pieszo (600m), linie autobusowe (w tym nocna N2) i trolejbusowe pod ręką.

Zapraszam na prezentację !
Wojciech Gocki
tel. 739 007 255


:: Oferta wysłana z programu mediaRent (media-rent.eu) ::
Lokalizacja
Lublin
dzielnica Węglin
lubelskie
Informacje
Powierzchnia: 56 m2
3 pokoje
3 piętra w budynku
Rok budowy: 2019
Numer oferty: 5226/BNK/MS-240729
Zalety
domofon
Dodatkowe zalety
piwnica
meble
Wyposażenie
lodówka
pralka
Kontakt
mai3ja_bnkwadrat
Wojciech Gocki
739007255

Podobne oferty

 Lublin

Mieszkanie dwupoziomowe 6 pok. 74 m² CZUBY.

Lublin

Na sprzedaż dwupoziomowe mieszkanie o powierzchni całkowitej około 120 m2 oraz użytkowej 73.8 m2 w Lublinie. Mieszkanie znajduje się na...

120 m2
6 pokoi
720 000 zł
6 000 zł/m2
 Lublin

Parter - inwestycyjnie - pod wynajem - 4 pokoje

Lublin

Do sprzedania 4 pokojowe mieszkanie zlokalizowane na ul. Rzeckiego w Lublinie - dzielnica Rury (LSM, osiedle im. Bolesława Prusa). Mieszkanie...

62 m2
4 pokoje
579 000 zł
9 339 zł/m2
 Lublin

3 pokoje z tarasem na Czechowie

Lublin

Trzypokojowe mieszkanie o powierzchni 77,26 m2 na 2 piętrze w 7-piętrowym budynku na nowoczesnym osiedlu na Czechowie w Lublinie.To idealna...

77 m2
3 pokoje
710 792 zł
9 231 zł/m2