2 pokojowe mieszkanie z loggia

Poznań , Wagrowska

Mieszkanie
45 m2
2 pokoje

589 000 zł

Treść ogłoszenia

Ogłoszenie sprzedaży 2 pokojowego mieszkania w stanie deweloperskim, Poznań


Zadzwoń, zapytaj +48798601102



  • Bezpośrednio od dewelopera

  • Brak PCC

  • Bez prowizji




Lokalizacja

Starołęka, to ceniona przez mieszkańców okolica, blisko centrum i terenów zielonych.



  • tramwaj - 1 minuta

  • przychodnia - 5 minut

  • tereny zielone - 5 minut

  • szkoła - 5 minut

  • sklepy - 5 minut




Szukasz miejsca w którym poczujesz się naprawdę u siebie? Ten budynek został stworzony z myślą o Tobie i Twoich najbliższych.

Na dachu czeka na Ciebie taras widokowy - idealny, by odpocząć po ciężkim dniu pracy i nacieszyć się widokiem miasta. Jeśli masz dzieci, z pewnością docenisz plac zabaw tuż obok budynku - bezpieczny i pełen przestrzeni do zabawy.

Na co dzień możesz liczyć na wygodę dzięki windom obsługującym wszystkie piętra.
Do dyspozycji masz także rowerownię i wózkownię. Mamy także dla Ciebie podziemne i naziemne miejsca postojowe.

Twoje bezpieczeństwo to dla nas priorytet. W budynku znajduje się wideodomofon, drzwi antywłamaniowe, a całości dopełnia ochrona, która czuwa 24/7.

To miejsce, które daje Ci spokój, komfort i codzienną wygodę.


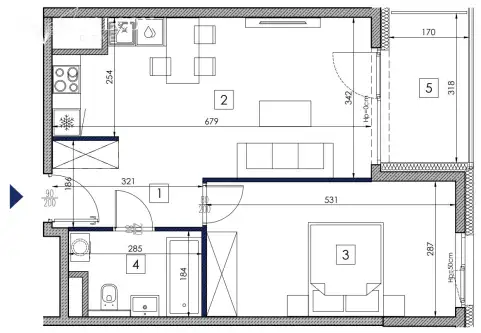
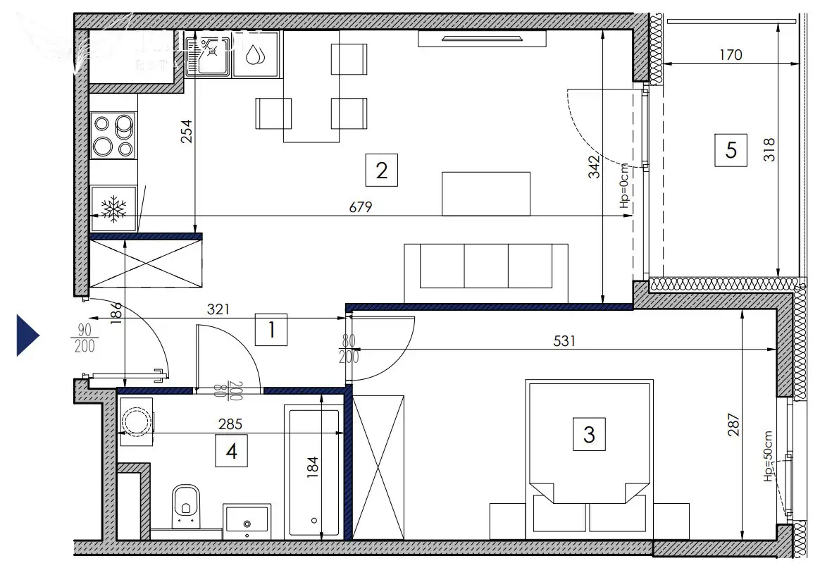
Układ mieszkania



  • salon z aneksem kuchennym - 20,62 m²

  • sypialnia - 15,23 m²

  • łazienka - 4,52 m²

  • hol - 4,87 m²

  • loggia 5,40 m²






Mieszkania są oddane do odbioru. 


Spełnij marzenia o nowym mieszkaniu.
Nie czekaj, zarezerwuj mieszkanie

Monika Skotarczak. +48798601102



Dodatkowo



  • pomagamy bezpłatnie w uzyskaniu najkorzystniejszej oferty kredytu hipotecznego,

  • możliwość wykończenia mieszkania pod klucz.





ZERO prowizji, brak PCC.

...
Oferta wystawiona przez Biuro nieruchomości Falcon Estate.
Prezentowane w serwisie oferty nie stanowią oferty handlowej w rozumieniu art. 66 Kodeksu Cywilnego i mogą być nieaktualne.
Lokalizacja
Poznań
dzielnica Starołęka
wielkopolskie
Informacje
Powierzchnia: 45 m2
2 pokoje
16 pięter w budynku
Rok budowy: 2025
Numer oferty: FE980917
Zalety
domofon
Media
kanalizacja
Kontakt
Falcon Estate
Monika Skotarczak
798601102

Podobne oferty

 Poznań   os. Tysiąclecia

Mieszkanie

Poznań, os. Tysiąclecia

Posiadam na sprzedaż trzypokojowe mieszkanie, w jednej z najlepszych lokalizacji w Poznaniu, na osiedlu Tysiąclecia. Mieszkanie o powierzchni 68,5 m2...

68 m2
3 pokoje
665 000 zł
9 779 zł/m2
 Poznań   Naramowicka

Nowa inwestycja na Winogradach

Poznań, Naramowicka

Naramowicka 172 to wyjątkowy projekt, który oferuje mieszkania idealne zarówno dla singli, jak i rodzin. Wybierz spośród funkcjonalnych kawalerek, mieszkań...

29 m2
1 pokój
335 000 zł
11 552 zł/m2
 Poznań   Jasielska

3 pokoje z dwoma balkonami

Poznań, Jasielska

Ogłoszenie sprzedaży 3 pokojowego mieszkania z dwoma balkonami w PoznaniuZadzwoń i umów się na obejrzenie inwestycji +48798601102 Bezpośrednio od dewelopera...

57 m2
3 pokoje
589 430 zł
10 341 zł/m2