Mieszkanie przy Parku Wilsona

Poznań , Józefa Chełmońskiego

Mieszkanie
63 m2
3 pokoje

730 000 zł

Treść ogłoszenia

Mamy przyjemność zaprezentować wyjątkowe, 3-pok mieszkanie na sprzedaż w sercu Łazarza, w kamienicy z 1905 roku po rewitalizacji, przy ul. Józefa Chełmońskiego.

N I E R U C H O M O Ś Ć
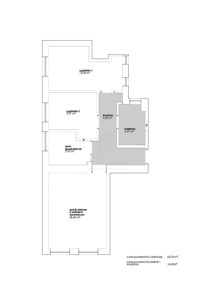
• Powierzchnia: 63 m²
• Układ: 3 pokoje z aneksem w salonie (możliwość zrobienia oddzielnej kuchni)
• Wysokość sufitów: 340 cm - przestronne wnętrza z klimatem kamienicy
• Garderoba - obecnie w miejscu kuchni, ale duża szafa może zmieścić się także w sypialni
• Wysoki parter - wszystkie okna zabezpieczone sztabami antywłamaniowymi, wysoko usytuowane nad ziemią
• Łazienka z oknem - naturalne światło i optymalna wentylacja
• Ogrzewanie: miejskie
• Okna: plastikowe
• Stan: mieszkanie do odświeżenia
• Forma własności: odrębna własność z księgą wieczystą

W Y P O S A Ż E N I E 
Mieszkanie jest sprzedawane bez mebli. Zostają:
• Stałe elementy w łazience: szafka z umywalką, WC, lustro, oświetlenie
• Garderoba: szafy wnękowe
• Oświetlenie: panele LED nad oknami w salonie (imitacja światła dziennego), oczka LED w większości pomieszczeń, lampy wiszące w salonie i przedpokoju
• Firany i zasłony we wszystkich pomieszczeniach
• Obrazy w przedpokoju (mogą zostać)
• Lustro w korytarzu
• Lodówka (10-letnia, w stanie idealnym) - opcjonalnie

Do demontażu: cała kuchnia (meble i blat nie są trwale przymocowane - zostaną usunięte przed sprzedażą, ściany przygotowane i wyrównane).

A T U T Y
• Cisza i spokój - wszystkie okna wychodzą na wewnętrzne podwórze, brak hałasu z ulicy
• Stabilna temperatura - mieszkanie nie nagrzewa się latem, idealne warunki do pracy zdalnej i odpoczynku
• Prywatny parking - na podwórku dla mieszkańców
• Możliwość aranżacji - kuchnia jako aneks w salonie lub osobne pomieszczenie
• Opcja inwestycyjna - projekty przerobienia na 2 niezależne mieszkania, dwie osobne  ksiągi wieczyste

L O K A L I Z A C J A
• Ul. Józefa Chełmońskiego, dzielnica Łazarz, Poznań
• Kilkadziesiąt metrów do parku Wilsona i Palmiarni Poznańskiej
• Blisko park Kasprowicza - idealny na spacery i aktywność fizyczną
• W sąsiedztwie: Biedronka, liczne sklepy i punkty usługowe
• Świetna komunikacja - pomiędzy przystankami na ul. Głogowskiej i Grunwaldzkiej, szybki dojazd do centrum i uczelni
To mieszkanie ma wyjątkowy klimat - połączenie historycznego charakteru kamienicy z ciszą i spokojem otoczenia. Idealne dla osób, które chcą mieszkać w centrum, ale cenią prywatność i komfort.

Cena: 730.000 PLN. 

Zapraszamy do kontaktu i umówienia prezentacji:
+48 602 280 084
Natalia Zaitseva
Etalon Estate Group
www.etalon-estate.pl
Lokalizacja
Poznań
wielkopolskie
Informacje
Powierzchnia: 63 m2
3 pokoje
3 piętra w budynku
Rok budowy: 1905
Numer oferty: 870368
Kontakt
Etalon Estate Group
Natalia Zaitseva
+48 602 280 084

Podobne oferty

 Poznań   Klemensa Janickiego

Jeżyce kawalerka z opcją 2 pokoi

Poznań, Klemensa Janickiego

Ogłoszenie sprzedaży kawalerki z balkonem w stanie deweloperskim w Poznaniu Bezpośrednio od dewelopera Brak PCC Bez prowizji Skontaktuj się i...

39 m2
1 pokój
512 207 zł
13 134 zł/m2
 Poznań

Mieszkanie

Poznań

Sprzedam przestronne i bardzo przytulne mieszkanie 3-pokojowe (62,9 m²) na parterze w niskim bloku na Ratajach – zaledwie 2 minuty...

62 m2
3 pokoje
680 000 zł
10 968 zł/m2
 Poznań   os. Wichrowe Wzgórze

Mieszkanie

Poznań, os. Wichrowe Wzgórze

Duża kawalerka 34,10 m2 w tym mieszkalne 32 m2 z oddzielną kuchnią i balkonem. Mieszkanie mieści się na os. Wichrowe...

34 m2
1 pokój
359 000 zł
10 559 zł/m2