3 pokojowe mieszkanie Czechów 2025

Lublin

Mieszkanie
69 m2
3 pokoje

675 000 zł

Treść ogłoszenia

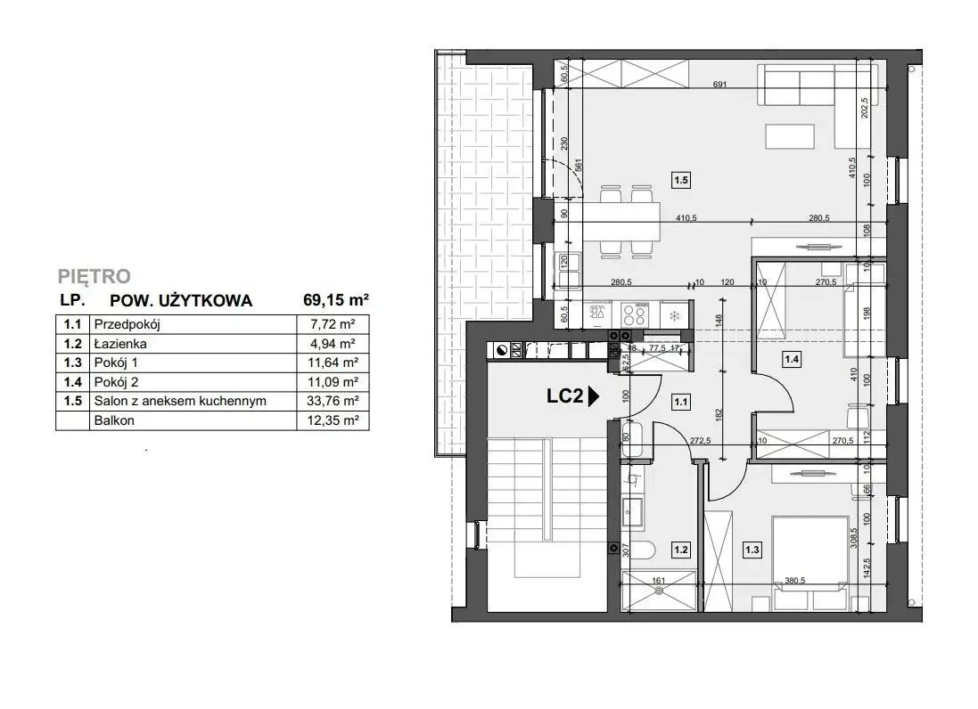
Na sprzedaż 3 pokojowe mieszkanie o powierzchni 69,15 m² na I piętrze/I  na nowym osiedlu dzielnicy Czechów - Choiny. Wystawa okien wschód, zachód.

Zestawienie pomieszczeń:
Pokój dzienny z aneksem kuchennym ( 33,76 m²) z wyjściem na balkon o powierzchni 12,35 m² 
Pokój ( 11,64 m²)
Pokój ( 11,09 m²)
Łazienka ( 4,94 m²)
Przedpokój ( 7,72 m²)

Obligatoryjnie:
Garaż z pomieszczeniem o powierzchni 32,45 m² - 70 000 zł

Atuty inwestycji:
- panele fotowoltaiczne
- CO i CW pompa ciepła (powietrze- woda)
- wentylacja z rekuperacją
- ściany tynk gipsowy i powłoka malarska
- okna PVC trzyszybowe
- parapety z konglomeratu
- wysoki standard i funkcjonalny układ pomieszczeń 
- możliwość indywidualnego zaprojektowania przestrzeni w mieszkaniu
- utrzymanie części wspólnych i prywatnych ogródków będzie w zakresie obowiązków zarządcy
- teren inwestycji w pełni zagospodarowany

Lokalizacja: Czechów Choiny, w pobliżu przystanki komunikacji miejskiej, stacja paliw, sklepy, szkoły, przedszkola, punkty usługowe.

*jeśli potrzebujesz pomocy eksperta w dobraniu finansowania zakupu nieruchomości, skontaktuj się z opiekunem oferty.
domlublin.pl

Ofertę przygotowała i prezentuje:
Patrycja Czarnik
Licencjonowany Pośrednik Nieruchomości
Franczewska Nieruchomości

Zapraszam do kontaktu oraz na prezentację nieruchomości!

Treść niniejszego ogłoszenia nie stanowi oferty handlowej w rozumieniu Kodeksu Cywilnego, ale jest zaproszeniem do współpracy. Dokładamy wszelkich starań, aby każda z ofert była rzetelnie sprawdzona oraz aktualna. Więcej unikalnych ofert w podobnych kryteriach znajdą Państwo na naszej stronie.

Lokalizacja
Lublin
dzielnica Czechów górny
lubelskie
Informacje
Powierzchnia: 69 m2
3 pokoje
1 piętro w budynku
Rok budowy: 2025
Numer oferty: 420410101
Ogrzewanie
pompa ciepła
Wyposażenie
balkon/taras
Kontakt
FRANCZEWSKA NIERUCHOMOŚCI ADRIANNA FRANCZEWSKA-KRUPA SPÓŁKA KOMANDYTOWA
Patrycja Czarnik
791 689 906

Podobne oferty

 Lublin

Mieszkanie 142 77m² 4 pokoje Taras

Lublin

Ofertą sprzedaży jest 4 pokojowe mieszkanie o pow. 147m2 na 2 piętrze bloku z windą - stan deweloperski, zlokalizowane na...

142 m2
4 pokoje
899 000 zł
6 331 zł/m2
 Lublin

2 Pokoje 37m² KALINOWSZCZYZNA 1 piętro.

Lublin

Oferuję na sprzedaż dwupokojowe mieszkanie o pow. 37 m2 usytuowane na pierwszym piętrze czteropiętrowego w bloku z lat 70 tych....

37 m2
2 pokoje
339 500 zł
9 176 zł/m2
 Lublin

Mieszkanie 2 pokoje Nadbystrzycka

Lublin

 Mieszkanie  o pow. 54,41 m2. w idealnej lokalizacji dla studenta!Mieszkanie dwupokojowe z balkonem  zlokalizowane na wyższym  parterze w bloku przy...

54 m2
2 pokoje
577 000 zł
10 685 zł/m2