2 pokojowe mieszkanie i kw 2026

Lublin , Daliowa

Mieszkanie
40 m2
2 pokoje

421 050 zł

Treść ogłoszenia

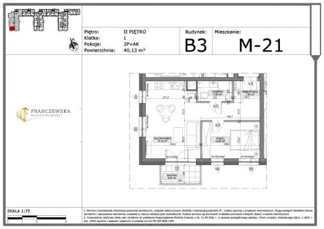
Mieszkanie o powierzchni 40,10 m² położone na drugim piętrze w budynku z wystawą okien na zachód.

Na nieruchomość składają się:
- Pokój dzienny z aneksem kuchennym o pow. 19,10 m² z wyjściem na balkon o pow. 3,31 m²
- Pokój o pow. 10,09 m²
- Łazienka o pow. 3,35 m²
- Przedpokój 3,86 m²

ZALETY INWESTYCJI:
- wszystkie mieszkania posiadają ogrzewanie podłogowe,
- certyfikowany plac zabaw,
- miejsca postojowe na rowery,
- budynki w niskiej zabudowie,
- nowoczesne formy grzewcze i budowlane,
- cicha i spokojna okolica,
- dobra komunikacja z centrum miasta,
- w pobliżu tereny zielonej i ścieżki rowerowe, punkty usługowe, przedszkole, żłobek, sklepy, poczta, strefa fitness

LOKALIZACJA:
Bardzo dobrze rozwinięta infrastruktura osiedla: plac zabaw, sklepy, centra handlowe (Ikea, Olimp), szkoły, przedszkola, przychodnia zdrowia, apteka, przystanek autobusowy, dobry dojazd do obwodnicy

MEDIA: kotłownia gazowa połączona z pompą ciepła wspomagająca ogrzewanie wody, prąd, woda.
Termin zakończenia prac budowlanych: I kwartał 2026

Dodatkowo istnieje możliwość zakupu:
Miejsce postojowe podziemne: 40 000zł
Komórka lokatorska 3 000zł/m²

Ofertę przygotował i prezentuje:
Patrycja Czarnik 791689906
Licencjonowany Pośrednik Nieruchomości
Franczewska Nieruchomości

Treść niniejszego ogłoszenia nie stanowi oferty handlowej w rozumieniu Kodeksu Cywilnego, ale jest zaproszeniem do współpracy. Zespół ekspertów z Franczewska Nieruchomości dokłada starań, aby każda z ofert była rzetelnie sprawdzona oraz aktualna.
Usługa jest wykonywana w profesjonalny sposób i zapewnia Państwu pełne bezpieczeństwo. Więcej unikalnych ofert w podobnych kryteriach znajdą Państwo na naszej stronie.
Lokalizacja
Lublin
dzielnica Ponikwoda
lubelskie
Informacje
Powierzchnia: 40 m2
2 pokoje
3 piętra w budynku
Rok budowy: 2026
Numer oferty: 424468
Media
kanalizacja
Wyposażenie
balkon/taras
Kontakt
FRANCZEWSKA NIERUCHOMOŚCI ADRIANNA FRANCZEWSKA-KRUPA SPÓŁKA KOMANDYTOWA
Patrycja Czarnik
791 689 906

Podobne oferty

 Lublin

Tatary 3 pokoje 46m²

Lublin

Sprzedam mieszkanie zlokalizowane w spokojnej części dzielnicy Tatary w pobliżu WORD, Stokrotki i Biedronki. Mieszkanie znajduje się na osiedlu z...

45 m2
3 pokoje
329 000 zł
7 311 zł/m2
 Lublin   Obrońców Lublina

Trzypokojowe mieszkanie przy ul. Obrońców Lublina

Lublin, Obrońców Lublina

Z przyjemnością przedstawiamy Państwu wyjątkową ofertę sprzedaży mieszkania, które spełni oczekiwania nawet najbardziej wymagających klientów. Lokalizacja: Obrońców Lublina Powierzchnia: 56,5...

56 m2
3 pokoje
678 600 zł
12 118 zł/m2
 Lublin

Mieszkanie 3 pokojowe z balkonem w Centrum Miasta

Lublin

Zapraszam do kontaktu telefonicznego, zapoznaj się z aktualnymi promocjami.Prestiżowa inwestycja w centrum Lublina, z pięknym widokiem na Stare Miasto i...

76 m2
3 pokoje
908 208 zł
11 950 zł/m2