Widokowa pod domki i pensjonat media plan

Niedzica , Osiedle Pod Taborem

Działka
3160 m2

1 750 000 zł

Treść ogłoszenia

WYJĄTKOWA OFERTA TYLKO U NAS!

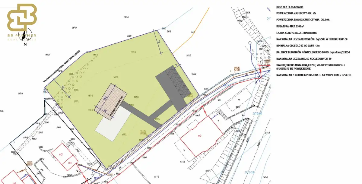
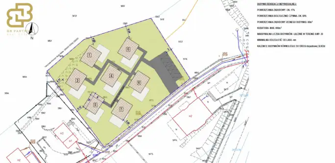
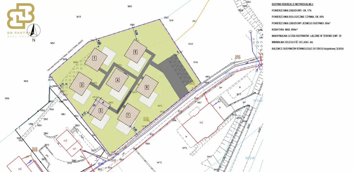
Gotowe 4 koncepcje zagospodarowania terenu: domki pod wynajem, dwie koncepcje na pensjonat oraz dom jednorodzinny.

Działka (31,60a) widokowa w Niedzicy z panoramą na góry, w cichej i spokojnej okolicy pod lasem.

Zgodnie z miejscowym planem przedmiotowa nieruchomość położona jest w obszarze oznaczonym symbolem 8.MP - tereny zabudowy pensjonatowej.

Przeznaczenie dopuszczalne: budownictwo mieszkaniowe jednorodzinne, usługi gastronomiczne realizowane jako część wbudowana lub na zasadach określonych w ustaleniach szczegółowych.

Niedzica to malownicza miejscowość położona w południowej Polsce, w województwie małopolskim, niedaleko granicy ze Słowacją. Znajduje się tam słynny zamek Dunajec w Niedzicy, który przyciąga turystów z całego kraju i zagranicy. Działka widokowa w takiej lokalizacji oferuje niesamowite widoki na góry i otaczającą przyrodę, co może być bardzo atrakcyjne dla potencjalnych inwestorów.

W okolicy: Zamek Dunajec, Jezioro Czorsztyńskie, Zamek w Czorsztynie, Jezioro Sromowieckie, zapora wodna, trasy rowerowe, stoki narciarskie.

Z uwagi na swoje położenie, działka ta jest idealna zarówno dla osób poszukujących miejsca na prywatny dom jednorodzinny, jak i dla tych, którzy planują budowę obiektu noclegowego. Cisza i spokój oraz bliskość natury tworzą przyjazne otoczenie dla relaksu i rekreacji.

Urządzenia infrastruktury technicznej: elektrycznej, wodnej, kanalizacyjnej i teletechnicznej przebiegają od strony południowej w pasie wewnętrznej drogi dojazdowej.
Kształt zbliżony do prostokąta o wymiarach 60m x 50 m.

Cena działki: 1.750.000 pln

Zapraszam do kontaktu!

Łukasz Barłowski
Pośrednik Nieruchomości
Nr licencji 13144

BB Partner Real Estate
Tel. +48 733 737 000
[Email protected]

Oferta ma charakter informacyjny i nie stanowi oferty w rozumieniu kodeksu cywilnego oraz innych właściwych przepisów prawnych.


 
Lokalizacja
Niedzica
małopolskie
Informacje
Powierzchnia: 3160 m2
Numer oferty: BB696573318
Ogrodzenie
brak
Kontakt
BB Partner Barłowski Bobiec Spółka Jawna
Łukasz Barłowski
+48 733 737 000

Podobne oferty

 Niedzica   Osiedle Pod Taborem

Piękna działka pod domki i pensjonat 4 koncepcje

Niedzica, Osiedle Pod Taborem

WYJĄTKOWA OFERTA TYLKO U NAS!Gotowe 4 koncepcje zagospodarowania terenu: domki pod wynajem, dwie koncepcje na pensjonat oraz dom jednorodzinny.Działka (31,60a)...

3160 m2
2 200 000 zł
696 zł/m2
 Niedzica   Osiedle Pod Taborem

Widokowa pod domki i pensjonat media plan

Niedzica, Osiedle Pod Taborem

WYJĄTKOWA OFERTA TYLKO U NAS!Gotowe 4 koncepcje zagospodarowania terenu: domki pod wynajem, dwie koncepcje na pensjonat oraz dom jednorodzinny.Działka (31,60a)...

3160 m2
1 750 000 zł
554 zł/m2
 Niedzica   Osiedle Pod Taborem

Widokowa pod domki i pensjonat media plan

Niedzica, Osiedle Pod Taborem

WYJĄTKOWA OFERTA TYLKO U NAS!Gotowe 4 koncepcje zagospodarowania terenu: domki pod wynajem, dwie koncepcje na pensjonat oraz dom jednorodzinny.Działka (31,60a)...

3160 m2
1 750 000 zł
554 zł/m2