3 oddzielne pokoje Czechów Południowy

Lublin

Mieszkanie
56 m2
3 pokoje

489 000 zł

Treść ogłoszenia

Sprzedam trzypokojowe mieszkanie do remontu położone na Czechowie (osiedle Moniuszki).
Nieruchomość znajduje się na 8 piętrze w 10-piętrowym wieżowcu z dwiema windami.
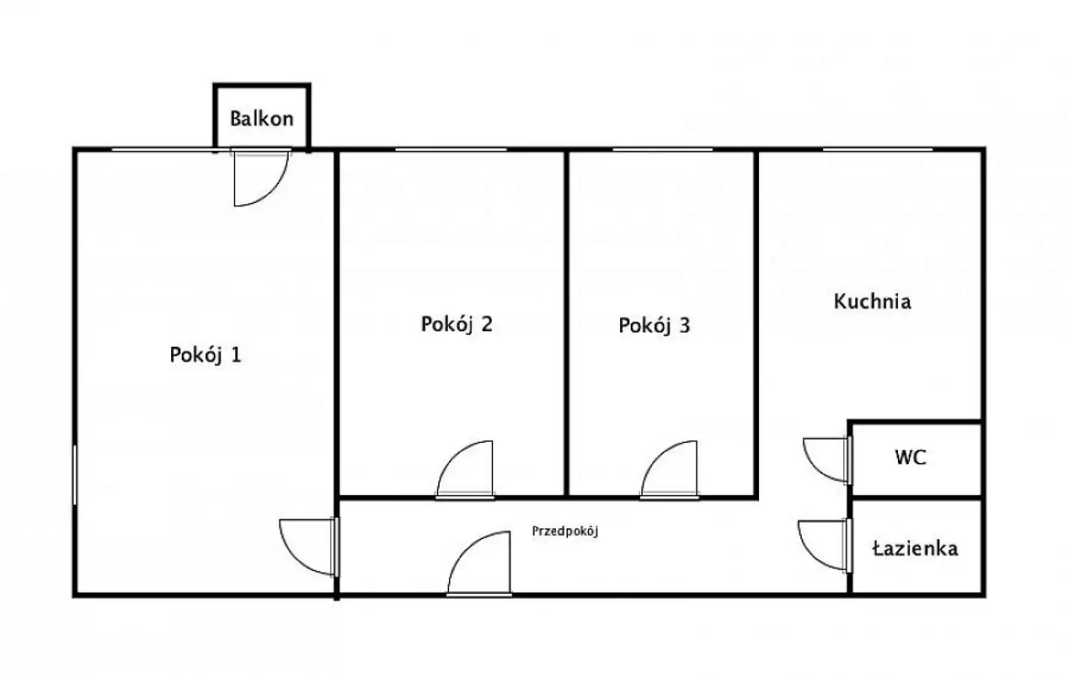
Na powierzchni 56,6 m² znajdują się:
Pokój o powierzchni ok. 20 m²,
Pokój o powierzchni ok. 10 m²,
Pokój o powierzchni ok. 8 m²
Oddzielna kuchnia z oknem o powierzchni ok. 8,5 m²
Łazienka o powierzchni ok. 2,5 m²
WC o powierzchni ok. 1 m²
Przedpokój o powierzchni ok. 9 m²
Do mieszkania przynależy balkon oraz piwnica ok. 2,8 m².
Na podłogach panele i terakota.
Mieszkanie narożne z wystawą okien na północ i wschód.
Okna PCV.
Czynsz wynosi 750 zł (zawiera zaliczkę na wodę, C.O. fundusz remontowy, wywóz śmieci i sprzątanie klatki schodowej).
Opłaty dodatkowe to prąd i gaz.
Ciepła woda oraz ogrzewanie z sieci miejskiej.
Lokalizacja jest jednym z największych atutów nieruchomości (w pobliżu szkoła, przedszkole, liczne sklepy).
Pod blokiem znajduje się duży, ogólnodostępny parking dla mieszkańców.

Świetna inwestycja pod wynajem - możliwość wydzielenia 5 pokoi (patrz zdjęcia).
Zapraszam na prezentację.
Marcin Stępniak 571-241-152


:: Oferta wysłana z programu mediaRent (media-rent.eu) ::
Lokalizacja
Lublin
dzielnica Czechów
lubelskie
Informacje
Powierzchnia: 56 m2
3 pokoje
10 pięter w budynku
Rok budowy: 1977
Numer oferty: 5273/BNK/MS-240829
Zalety
domofon
Dodatkowe zalety
piwnica
Wyposażenie
balkon/taras
Kontakt
mai3ja_bnkwadrat
Marcin Stępniak
571241152

Podobne oferty

 Lublin

Kawalerka 36 m² BRONOWICE.

Lublin

Na sprzedaż kawalerka o powierzchni 36,47 m2 w Lublinie. Mieszkanie znajduje się na czartym piętrze bloku. Na powierzchni 36,47 m2...

36 m2
2 pokoje
335 000 zł
9 306 zł/m2
 Lublin   Chęcińskiego

Na sprzedaż 2 pokoje ( możliwość 3) 47m² CZECHÓW.

Lublin, Chęcińskiego

Oferuję do sprzedaży dwupokojowe mieszkanie o pow. 47 m2 usytuowane na pierwszym piętrze w wieżowcu zlokalizowanym w Lublinie przy ul....

47 m2
2 pokoje
429 000 zł
9 128 zł/m2
 Lublin

3 pokoje blisko uczelni

Lublin

Prezentujemy Państwu ofertę sprzedaży mieszkania o pow. 60 m2.Nieruchomość znajduje się na VII piętrze w dziesięciopiętrowym budynku przy ulicy Nadbystrzyckiej...

60 m2
3 pokoje
575 000 zł
9 583 zł/m2