Balkon Komórka Parking Metro Monitoring

Warszawa , Łukowa

Mieszkanie
50 m2
2 pokoje

699 000 zł

Treść ogłoszenia

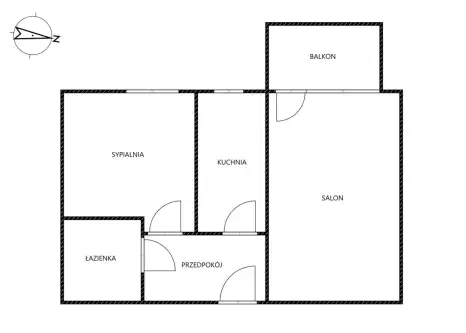
Na sprzedaż: 2-pokojowe mieszkanie z balkonem - ul. Łukowa, os. Służew Nad Dolinką, Warszawa
Mieszkanie o powierzchni 49,4 m², położone na 3. piętrze z 10 w bloku z 1978 roku po termomodernizacji.
To idealna propozycja dla osób szukających mieszkania w wyjątkowo zielonej, spokojnej i świetnie skomunikowanej części Mokotowa, z szybkim dostępem do metra.

Przemyślany układ i komfortowa przestrzeń
W skład mieszkania wchodzą:
duży salon,
sypialnia,
osobna kuchnia,
łazienka z WC,
przedpokój,
balkon o powierzchni ok. 6 m².
Układ mieszkania jest funkcjonalny i umożliwia komfortowe zagospodarowanie przestrzeni. Mieszkanie jest częściowo umeblowane, a przed sprzedażą zostanie opróżnione z prywatnych rzeczy i nadmiarowych mebli.

Stan techniczny
Mieszkanie jest w stanie do odświeżenia, jedynie łazienka wymaga generalnego remontu.
Blok przeszedł gruntowną termomodernizację ok. 10 lat temu. W ramach prac m.in. docieplono budynek, odnowiono elewację, klatki schodowe oraz części wspólne, a także wymieniono windy.
Do mieszkania przynależy komórka lokatorska, a dla mieszkańców dostępny jest duży parking.

Opłaty
Czynsz: 890 zł (w tym: woda, ogrzewanie, opłaty administracyjne, fundusz remontowy, gaz),
Dodatkowe opłaty: prąd według zużycia,
Ogrzewanie i ciepła woda: miejskie,
Forma własności: pełna własność.

Lokalizacja
Osiedle Służew Nad Dolinką to jedna z najbardziej cenionych, zielonych i rodzinnych części Mokotowa, z pełną infrastrukturą w zasięgu kilku minut.
W pobliżu:
liczne sklepy: Lidl, Biedronka, Carrefour, Auchan, Leclerc, Żabka, Starbucks, McDonald’s, apteki, kawiarnie, lokale gastronomiczne,
szkoły: SP nr 107, SP nr 49, SP nr 46, przedszkola,
uczelnie: SGGW (1,5 km), Uczelnia Łazarskiego (2,5 km), Wyższa Szkoła Nauk Medycznych (2,5 km),
metro - 10 minut pieszo,
Galeria Westfield Mokotów - 3 km,
Sadyba - 3 km,
obiekty sportowe i rekreacyjne: park wodny, siłownie, dom kultury, Filmoteka Narodowa.

Zielone otoczenie
W bliskiej okolicy:
Dolinka Służewiecka - 600 m,
Rezerwat Przyrody Skarpa Ursynowska - 1 km,
Park Enklawa - 1,3 km,
Fort VIII Służew - 800 m,
Park Pieńkowskiego - 2 km,
Park Arkadia - 2,5 km,
liczne ścieżki spacerowe, rowerowe, place zabaw i tereny rekreacyjne.

Dlaczego warto?
Świetny, funkcjonalny układ pomieszczeń
Duży balkon
Budynek po gruntownej termomodernizacji
Spokojna, zielona i ceniona lokalizacja
Metro w zasięgu kilku minut pieszo
W pełni rozwinięta infrastruktura - wszystko „pod ręką”
Komórka lokatorska w cenie
Duży parking dostępny dla mieszkańców
Dostępne od zaraz

Zadzwoń i umów się na prezentację - mieszkania w tej okolicy znikają bardzo szybko!

Lokalizacja
Warszawa
dzielnica Mokotów
mazowieckie
Informacje
Powierzchnia: 50 m2
2 pokoje
11 pięter w budynku
Rok budowy: 1978
Numer oferty: 479028
Dodatkowe zalety
piwnica
Wyposażenie
balkon/taras
Kontakt
Pozysk Nieruchomości
Adam Brzeziński
791276207

Podobne oferty

 Warszawa

Po generalnym remoncie Przestronne Jasne

Warszawa

MDP Partners przedstawia:Przestronne, jasne i funkcjonalne 2-pokojowe mieszkanie o powierzchni 50m2 świeżo po remoncie generalnym, zlokalizowane na warszawskich Nowych Włochach.Kameralna...

47 m2
2 pokoje
841 000 zł
17 894 zł/m2
 Warszawa   Długorzeczna

kameralny budynek w pobliżu Zalewu Zegrzyńskiego

Warszawa, Długorzeczna

Na sprzedaż 4-pokojowe mieszkanie z dużym balkonem (27,7m) w bardzo kameralnym budynku (tylko 10 mieszkań) w gotowej inwestycji na pograniczu...

65 m2
4 pokoje
725 340 zł
11 159 zł/m2
 Warszawa   Esej

2 pokoje na Bielanach do zamieszkania

Warszawa, Esej

Przedstawiamy Państwu mieszkanie o powierzchni 43m2, bezpośrednio do zamieszkania, na strzeżonym, ogrodzonym osiedlu na Chomiczówce. Mieszkanie składa się z :-pokoju...

43 m2
2 pokoje
740 000 zł
17 209 zł/m2