Narożne 3-pokoje z ogródkiem 65 m² Czerwone Maki

Kraków , Jana Kantego Federowicza

Mieszkanie
55 m2
3 pokoje

755 000 zł

Treść ogłoszenia

Zakup mieszkania bez prowizji i podatku pcc.
Inwestycja jest gotowa, zapraszam na prezentację.


Oferuję do sprzedaży gotowe mieszkanie 3-pokojowe w 3-piętrowym budynku z windą zlokalizowanym na Ruczaju.
Inwestycja ulokowana jest na kameralnym i cichym osiedlu z doskonałym dostępem do komunikacji miejskiej i pełnej infrastruktury a także wygodnym dojazdem do pozostałych dzielnic Krakowa.


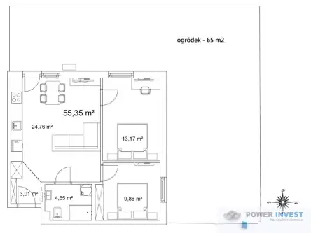
Mieszkanie znajduje się na parterze. Lokal ma powierzchnię 55,35 m² powierzchni użytkowej i składa się z:

- salonu z aneksem kuchennym
- dwóch sypialni
- łazienki
- przedpokoju
- ogródka o powierzchni 65 m²


Mieszkanie jest w stanie deweloperskim, do własnej aranżacji*
* do każdego zakupionego mieszkania oferujemy bezpłatną wycenę wykończenia "pod klucz" w różnych wariantach cenowych


Lokalizacja:

- doskonały dostęp do komunikacji miejskiej (200 m do przystanku autobusowego "Bunscha", 1 przystanek autobusowy do zajezdni tramwajowo-autobusowej "Czerwone Maki")
- w pobliżu liczne supermarkety - Lidl, Market Point, kompleks handlowy Atut Czerwone Maki, siłownia, restauracje, kwiaciarnia
- 4 przystanki komunikacją miejską do Kampusu UJ
- w sąsiedztwie tereny zielone oraz rekreacyjne
- cicha i spokojna okolica, w sąsiedztwie niska zabudowa mieszkalna
- w okolicy bogate zaplecze dydaktyczne - żłobki i przedszkola, szkoła podstawowa
- na terenie osiedla budynek usługowy


Dodatkowe informacje:

- w każdym mieszkaniu ogrzewanie podłogowe we wszystkich pomieszczeniach, brak grzejników
- klimatyzacja wraz z jednostkami zewnętrzną oraz wewnętrzną w salonie
- cichobieżna winda w budynku
- okna 3-szybowe z filtrami antysmogowymi
- plac zabaw na terenie osiedla
- pierwszorzędny standard wykończenia części wspólnych z użyciem wysokiej jakości materiałów budowlanych
- w garażu podziemnym nie ma platform, wszystkie miejsca są wyznaczone na płycie garażowej
- osiedle monitorowane


Do każdego mieszkania przynależy miejsce postojowe w garażu podziemnym lub miejsce zewnętrzne - zakup obligatoryjny (ceny od 36 000 zł).


Nasi eksperci finansowi z Power Finance chętnie pomogą w uzyskaniu najlepszego kredytu na rynku.

Przedstawiona oferta ma charakter informacyjny i nie stanowi oferty handlowej w rozumieniu Art.66 par.1 Kodeksu Cywilnego.

Zapraszam na prezentację,
Angelina Rojkowicz



Ogłoszenie wysłane z programu dla biur nieruchomości ASARI CRM (asaricrm.com)



Lokalizacja
Kraków
dzielnica Ruczaj
małopolskie
Informacje
Powierzchnia: 55 m2
3 pokoje
3 piętra w budynku
Rok budowy: 2025
Numer oferty: 27502/7649/OMS
Garaż
miejsce parkingowe
Zalety
domofon
teren ogrodzony
Okolica
centrum handlowe
przedszkole
plac zabaw
szkoła podstawowa
restauracja
kościół
Kuchnia
w aneksie
Przeznaczenie
mieszkalny
Dodatkowe zalety
monitoring
Kontakt
POWER HOLDING Sp. z o.o.
Angelina Rojkowicz
+48 575 222 841

Podobne oferty

 Kraków   Piaszczysta

Ostatnie mieszkanie 3 pok. Gotowe do odbioru

Kraków, Piaszczysta

ZAKUP OD DEWELOPERA, BEZ PROWIZJI, BEZ PODATKU PCC. Gotowe do odbioru, ostatnie mieszkanie w tej inwestycji.  Lokalizacja:  15 minut na...

68 m2
3 pokoje
942 150 zł
13 855 zł/m2
 Kraków   Osiedle Bohaterów Września

Nowa inwestycja 3 pokoje bez prowizji i PCC

Kraków, Osiedle Bohaterów Września

Oferta bezpośrednio od dewelopera - brak prowizji oraz podatku PCC.Przestawiam Państwu 2-pokojowe mieszkanie w szeroko rozwiniętej okolicy Mistrzejowic, znajdujące się...

63 m2
3 pokoje
770 064 zł
12 223 zł/m2
 Kraków   os. Bohaterów Września

2 pokoje Mistrzejowice ok. 3 200 zł - rata kredytu

Kraków, os. Bohaterów Września

Mieszkanie 2-pokojowe (34,84 m2) z balkonem na 2 piętrze.  Przykładowa rata kredytu na takie mieszkanie to około 3200 zł. Nie...

34 m2
2 pokoje
567 892 zł
16 703 zł/m2