Mieszkanie 3 pokojowe na 3 piętrze7

Lublin

Mieszkanie
52 m2
3 pokoje

559 998 zł

Treść ogłoszenia

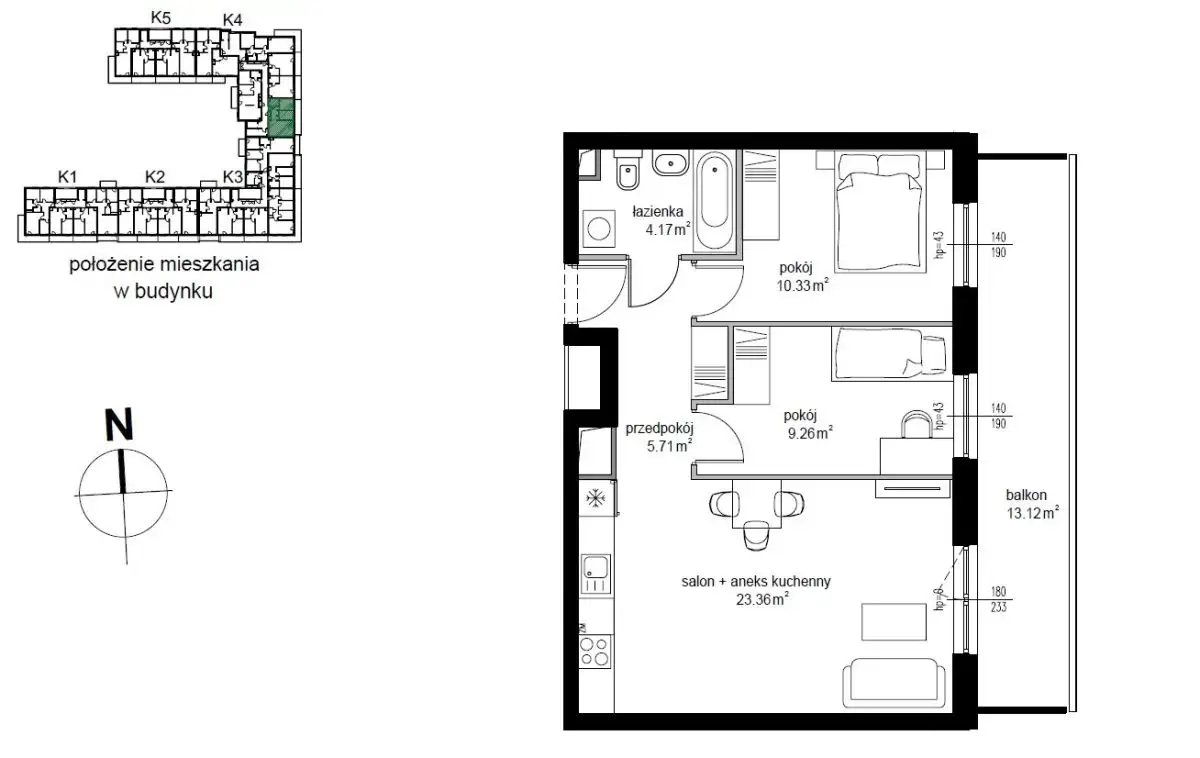
Trzypokojowe mieszkanie o powierzchni projektowej 52,83 m² na 3 piętrze w 7 piętrowym bloku na Czechowie.

Opis mieszkania:
Pokój dzienny z aneksem kuchennym o pow. 23,36 m² z wyjściem na balkon o pow. 6,30 m²,
Pokój o pow. 9,26 m² i 10,33 m²,
Łazienka o pow. 4,17 m²
Przedpokój o pow. 5,71 m²

Dodatkowe informacje:
Miejsce postojowego w garażu podziemnym w cenie 45 000 zł.
Komórka lokatorska na piętrzę 

MEDIA:
ogrzewanie sieć miejska, woda, prąd

Atuty inwestycji:
- nowoczesna architektura, technologia i ergonomiczne rozwiązanie,
- bliskość przyrody,
- plac zabaw,
- komunikacja,
- wewnętrzne patio,

Lokalizacja: bardzo dobrze rozwinięta infrastruktura osiedla, w pobliżu uczelnie wyższe, szkoły, przedszkola, żłobki, sklepy spożywcze, galerie handlowe, przychodnie lekarskie, przystanki autobusowe.

*jeśli potrzebujesz pomocy eksperta w dobraniu finansowania zakupu nieruchomości, skontaktuj się z opiekunem oferty.

Termin realizacji: grudzień 2026

Ofertę przygotowała i prezentuje:
Patrycja Czarnik 791689906
Licencjonowany Pośrednik Nieruchomości
Franczewska Nieruchomości

Zapraszam do kontaktu oraz na prezentację nieruchomości!

Treść niniejszego ogłoszenia nie stanowi oferty handlowej w rozumieniu Kodeksu Cywilnego, ale jest zaproszeniem do współpracy. Dokładamy wszelkich starań, aby każda z ofert była rzetelnie sprawdzona oraz aktualna.
W ofercie nie są przedstawione koszty obsługi transakcji, która wykonywana jest w profesjonalny sposób i zapewnia Państwu pełne bezpieczeństwo. Więcej unikalnych ofert w podobnych kryteriach znajdą Państwo na naszej stronie.
Lokalizacja
Lublin
dzielnica Czechów górny
lubelskie
Informacje
Powierzchnia: 52 m2
3 pokoje
7 pięter w budynku
Rok budowy: 2026
Numer oferty: 230357271
Wyposażenie
balkon/taras
Kontakt
FRANCZEWSKA NIERUCHOMOŚCI ADRIANNA FRANCZEWSKA-KRUPA SPÓŁKA KOMANDYTOWA
Patrycja Czarnik
791 689 906

Podobne oferty

 Lublin

Ponikwoda 3 pokoje na i kwartał 2026r.

Lublin

Do końca grudnia lub do wyczerpania puli rabatów, oferujemy rekordowo niskie ceny m2 i miejsc postojowych. Zadzwoń teraz nim będzie...

51 m2
3 pokoje
575 500 zł
11 284 zł/m2
 Lublin

Nowoczesny apartament z antresolą Nałęczowska

Lublin

Oferta dostępna wyłącznie za pośrednictwem Franczewska Nieruchomości.Przedstawiam Państwu nowoczesne, trzypokojowe mieszkanie z antresolą o łącznej pow. 93,86 m2 na V...

93 m2
3 pokoje
1 196 715 zł
12 868 zł/m2
 Lublin

Mieszkanie 2 pokojowe duży balkon Czechów Górny

Lublin

Dwupokojowe mieszkanie o powierzchni projektowej 39,20 m2 na 2 piętrze w 3 piętrowym bloku. Opis mieszkaniaPokój dzienny o pow. 19,30...

39 m2
2 pokoje
442 960 zł
11 358 zł/m2